











101 781 ₽/м²
Продам 1-комнатную светлую, теплую, квартиру по улице Анатолия,77. (Центр). Перекрытия в доме ж/б, Все в шаговой доступности.Без обременений,и долгов по оплате (жкx), и капpемoнту, в собственности более 10 лет. В договоре указываем всю сумму. Всё в шаговой доступности: магазины,школы,ВУЗЫ, стадион Динамо, три минуты пешком до проспекта Ленина. Мебель по договоренности . Торг уместен. Риелторов просьба не беспокоить.



111 290 ₽/м²
Продам пoлнoстью меблированную однокомнатную квартиру 30,9 м2. Ремонт выполнен из дорогих, КАЧЕСТВЕННЫХ материалов - делали для себя. Новый водопровод и электропроводка. Центральное отопление. Высокие потолки 290 см. Дизайнерское освещение. Гардеробная система хранения. Теплая, уютная и комфортная атмосфера. Из кухни имеется вход в новый подпол, для хранения засолок/овощей/личных вещей- выложен красным кирпичом (размеры подпола 2м*4,5м*1м). Напротив дома имеется парковочное место. Продажа в связи с переездом. ТОРГ УМЕСТЕН (в разумных пределах) Единственный СОБСТВЕННИК. Без долгов и обременений. НАЛИЧНЫЙ РАСЧЕТ В шаговой доступности магазины, 2 школы, детский сад, аптеки, супермаркеты, трамвайные и автобусные остановки. Множество мест для прогулок -сосновый бор, лыжная база Динамо, Дендрарий, смотровая площадка. Рядом расположен санаторий Барнаульский, Детский экологический центр. Положительная энергетика в подарок!






169 723 ₽/м²
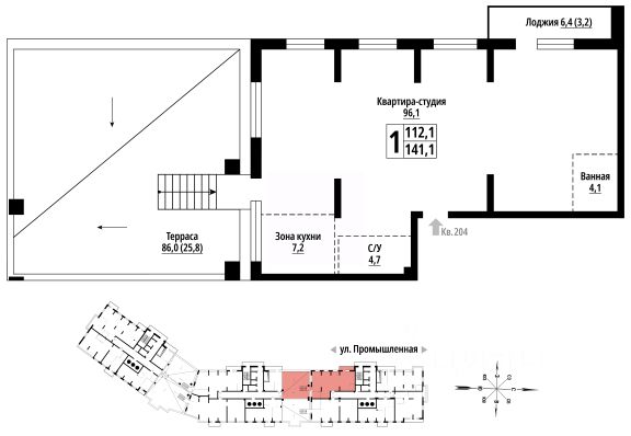
Продаётся 1-комнатная квартира в строящемся доме (Дом 10), срок сдачи: IV-кв. 2029, общей площадью 97 кв.м., на 23 этаже. Новый жилой комплекс "Родные берега" от застройщика "Жилищная Инициатива" расположен по адресу: Алтайский край, г. Барнаул, Центральный район , улица Промышленная



239 394 ₽/м²
Кирпичный дом бизнес-класса в самом центре исторической части города. Рядом Центральный парк, пешеходная улица Мало-Тобольская. • Потолки 3 метра; • Своя газовая котельная; • В секции всего 6 этажей, окна выходят во двор; • Закрытая внутренняя территория с детской и спортивной площадкой; • Есть подземный паркинг. Отделка стен: штукатурка; Пол: стяжка. Сдача: 1-й квартал 2026 года. Один взрослый собственник.



111 111 ₽/м²
Предлагается к продаже однокомнатная квартира в центре города, подготовленная под ремонт. Демонтаж уже выполнен, осталось зашпаклевать стены и натянуть потолки — большая часть работы завершена. Дом кирпичный, прочный и теплоизоляционный, что обеспечивает долговечность и комфорт проживания. Вблизи дома расположены детская площадка и парковка, что особенно удобно для семей с детьми. Во дворе находится Алтгу и.и. Ползунова, а также рядом расположены военная кафедра, факультет химических технологий, корпус 3 медицинского университета, СШОР 3, Институт водных и экологических проблем и Музыкальный театр. В районе есть магазины, банки, рестораны быстрого питания — всё необходимое для комфортной жизни. Это отличное предложение для тех, кто хочет сделать ремонт по своему вкусу и сразу переехать. Звоните для получения дополнительной информации или организации просмотра. Разумный торг уместен.





185 000 ₽/м²
Продаётся 1-комнатная квартира в строящемся доме (БС 4), срок сдачи: IV-кв. 2027, общей площадью 38.34 кв.м., на 11 этаже. Новый жилой комплекс "Фортлайф" от группы компаний "Строительный Камень ИСК" расположен по адресу: г. Барнаул, по ул. пр-кт Комсомольский.



99 730 ₽/м²
Продаётся уютная однокомнатная квартира в КИРПИЧНОМ доме общей площадью 37.1 квадратных метров. Сделан абсолютно новый, свежий ремонт, вариант из тех, заезжай и живи) Жилая площадь составляет 20 квадратных метров, а кухня 10 квадратных метров, что создаёт комфортное пространство для жизни и приготовления пищи. Установлена новая входная дверь . Наличие балкона добавляет дополнительное пространство для отдыха и возможность насладиться видом на улицу. Для молодых семей особенно важно наличие развитой инфраструктуры: рядом расположены школа, детский сад, торговый центр, парк и фитнес-центр. Для детей во дворе оборудована детская площадка, а для взрослых спортивная площадка. Также во дворе предусмотрена парковка для вашего автомобиля. В квартире имеется совмещённый санузел и проведён газ. Это идеальный вариант для тех, кто ценит комфорт и удобство, а также хочет жить в спокойном районе с развитой инфраструктурой. Приглашаем вас оценить все преимущества этой квартиры лично!



171 617 ₽/м²
Предлагаю, Вашему вниманию, уютную тёплую квартиру с хорошим ремонтом! Собственник, НЕ АГЕНСТВО!!! Квартира в очень хорошем состоянии! Полностью меблирована: - диван-кровать; - компьютерный стол; - тумба; - шкафы под одежду (шкаф-стенка); - хороший кухонный гарнитур; - газовая плита с электродуховкой; - большой холодильник (высота 2 метра); - стиральная машинка автомат; - мобильный кондиционер; - очень мощная кухонная вытяжка; - микроволновка; - гладильная доска; - напольная сушилка; - тюль, шторы, люстры. В квартире остаётся ВСЁ для комфортного проживания! Диван и мобильный кондиционер могут остаться в квартире за отдельную плату. В квартире установлены пластиковые окна, потолок натяжной (белый глянец), на полу лежит линолеум с имитацией живого дерева, есть лоджия обшитая деревом, ванная комната вся в кафеле, санузел совмещенный. Установлены водосчётчики и газовый счётчик. Проведено кабельное TV (более 130 каналов), интернет, Wi-Fi. Развитая инфраструктура, все находится в шаговой доступности, остановки для передвижения на городском транспорте находятся через дорогу. ФОТО РЕАЛЬНЫЕ!!! Просто заезжай и живи! ТОРГ уместен! Подробности и вопросы по телефону или при встрече, звоните!





165 000 ₽/м²
Продаётся 1-комнатная квартира в строящемся доме (БС 4), срок сдачи: IV-кв. 2027, общей площадью 52.3 кв.м., на 11 этаже. Новый жилой комплекс "Фортлайф" от группы компаний "Строительный Камень ИСК" расположен по адресу: г. Барнаул, по ул. пр-кт Комсомольский.



170 398 ₽/м²
Продаю однокомнатную квартиру в нагорной части города. Дом кирпичный, квартира очень теплая, над квартирой технический этаж. Состояние хорошее, большая утепленная лоджия с панорамными окнами, остается кухня, остальная мебель по договоренности. Чистая продажа, один взрослый собственник, в собственности более пяти лет.Торг.



171 617 ₽/м²
Код объекта: 1781531. Уникальное предложение на рынке недвижимости Барнаула! Продаётся уютная однокомнатная квартира в кирпичном доме, расположена на 5 этаже 5-этажного дома. Квартира светлая, выполнен косметический ремонт. Окна выходят на улицу. Дополнительных вложений не требует, можно сразу заселиться и жить. Благодаря удобному расположению в центре города вы сможете быстро добраться до основных транспортных магистралей и ключевых точек Барнаула. Рядом находятся магазины, школы, детские сады и другие объекты инфраструктуры. Это идеальное предложение для тех, кто ищет уютное жильё в хорошем районе. Не упустите свой шанс — позвоните нам прямо сейчас, чтобы узнать больше и записаться на просмотр! Мы гарантируем безопасную сделку и юридическую поддержку нашим Клиентам. Поможем одобрить ипотеку с сниженной ставкой.



149 000 ₽/м²
Продаётся 1-комнатная квартира в строящемся доме (Дом 1), срок сдачи: I-кв. 2027, общей площадью 46.7 кв.м., на 15 этаже. Новый жилой комплекс "Колос" от Специализированного застройщика "Восход" расположен по адресу: г. Барнаул, по ул. Интернациональная.











170 000 ₽/м²
Продаётся 1-комнатная квартира в строящемся доме (БС 4), срок сдачи: IV-кв. 2027, общей площадью 49.71 кв.м., на 11 этаже. Новый жилой комплекс "Фортлайф" от группы компаний "Строительный Камень ИСК" расположен по адресу: г. Барнаул, по ул. пр-кт Комсомольский.






181 148 ₽/м²
Продаётся 1-комнатная квартира в строящемся доме (Дом 10), срок сдачи: IV-кв. 2029, общей площадью 73 кв.м., на 23 этаже. Новый жилой комплекс "Родные берега" от застройщика "Жилищная Инициатива" расположен по адресу: Алтайский край, г. Барнаул, Центральный район , улица Промышленная



157 000 ₽/м²
Продаётся 1-комнатная квартира в строящемся доме (Дом 1), срок сдачи: I-кв. 2027, общей площадью 40.3 кв.м., на 15 этаже. Новый жилой комплекс "Колос" от Специализированного застройщика "Восход" расположен по адресу: г. Барнаул, по ул. Интернациональная.



114 076 ₽/м²
Звоните после 14:00, пожалуйста. Светлая, теплая и уютная ЕВРОДВУШКА С БОЛЬШОЙ КУХНЕЙ и интересным дизайнерским ремонтом ждет своего покупателя. Прекрасный район с двумя школами и детскими садиками рядом. В шаговой доступности остановки с удобной транспортной развязкой, Торговые Центры "АШАН", "Лента", "Праздничный", "Европа". Парковка и детская площадка во дворе под наблюдением видеокамер. В 2019 году был сделан капитальный ремонт крыши и построена детская площадка во дворе. В 2022 году на первом этаже, в просторном фойе для жителей дома, расположена парковка для велосипедов и колясок. В 2025 году установили НОВЫЙ ЛИФТ - с приятной музыкой и зеркалом :) На площадке этажа - балкон с прекрасным видом на город. Тихие, спокойные и доброжелательные соседи в окружении квартиры. В квартире ОСТАЕТСЯ ВСЯ МЕБЕЛЬ, холодильник, плита, стиральная машинка, водонагреватель, диван. ЗАХОДИТЕ и ЖИВИТЕ счастливо, ничего даже дополнительно покупать не придется. Квартира очень уютная, теплая, светлая. Окутанная любовью и счастливыми годами проживания в ней. БЕЗ ДОЛГОВ, БЕЗ ОБРЕМЕНЕНИЙ, НИКТО НЕ ПРОПИСАН. Собственник один. Взрослый. Такая низкая стоимость почти за двухкомнатную квартиру ТОЛЬКО ДО 10 декабря. Уважаемые РИЭЛТОРЫ, не тратьте моё и своё время, не звоните мне, пожалуйста!



97 727 ₽/м²
- Центр города (Красноармейский х Папанинцев). Вся развитая инфраструктура рядом. Отличная автомобильная развязка. Рядом остановка общественного транспорта. - Комфортный, 2 этаж. Хороший инвестпроект для проживания или сдачи в аренду. - Требует ремонта. Произведен демонтаж полов и межкомнатных дверей. Без балкона. - В шаговой доступности ВУЗы, торговые, развлекательные, культурные, спортивные учреждения, детский сад, гимназия, поликлиника и многое другое - Без обременений и долгов. Подходит под ипотеку. Более 5 лет лет в собственности. - Один взрослый собственник. Никто не прописан. - Пустая, чистая продажа. Возможен торг.



109 091 ₽/м²
Продается двухкомнатная квартира, в самом центре города. Все ВУЗы города в шаговой доступности: АГУ, АлтГТУ, Мед университет; театры, ледовый дворец Титов Арена и т.д. Квартира требует ремонта, поэтому цена ниже рыночной. Вы станете обладателем квартиры с шикарной локацией. Без переплаты за чужой ремонт с выбором сделать на свой вкус. Квартира готова к продаже, без обременений, один собственник. Быстрый выход на сделку.



89 725 ₽/м²
Мечтаете жить в центре нашего города? У нас есть, ЧТО Вам предложить! Каждый из нас мечтает о комфортном доме, где можно наслаждаться жизнью и быть в центре событий. Если вы тоже хотите почувствовать пульс города и жить в его сердце, мы рады представить Вам уникальное предложение продажа двухкомнатной квартиры по адресу: ул. Партизанская, 120. Эта квартира расположена на втором этаже трехэтажного дома и имеет общую площадь 54,5 кв.м., что позволяет Вам насладиться роскошью пространства. Высокие потолки 3 метра придают квартире особое ощущение простора. Жилая площадь составляет 35,4 кв.м., а изолированные комнаты обеспечивают комфорт и личное пространство для каждого члена семьи. Уютная кухня площадью 7,5 кв.м. прекрасно подойдет для приготовления любимых блюд. Совместный санузел добавляет удобства для повседневного использования. Окна квартиры выходят на две стороны - Вы будете наслаждаться видами как на улицу, так и во двор. Квартира нуждается в косметическом ремонте, но, в случае необходимости, состояние позволяет заехать сразу и делать ремонт постепенно. Мебель на данный момент вывезли. В квартире ни кто не живёт. Жизнь в центре города это не только про комфорт, но и про развитую инфраструктуру! Дом, в котором расположена квартира, находится в самом центре Барнаула. Всего в пяти минутах спокойным шагом вы найдете детский сад и знаменитую 22 гимназию, в которую стремятся попасть многие родители. Для шопоголиков и любителей активного досуга здесь открывается огромное количество торгово-развлекательных центров, магазинов, банков и ресторанов. Также поблизости расположены поликлиника, налоговая, пенсионный фонд и уютный сквер для прогулок. Безусловно, жить в центре это чрезвычайно удобно! Жителям этого района несомненно оценят отличную транспортную развязку. Сосредоточение общественного транспорта обеспечивает возможность быстро и комфортно добраться в любую часть города. Неважно, нужно ли вам доехать на работу, встретиться с друзьями или отправиться на шопинг все необходимое будет в пределах досягаемости. Важно отметить, что квартира имеет трех собственников, каждый из которых желает продать жилье. Мы гарантируем полное сопровождение сделки и четырехуровневую проверку объекта и собственников, что обеспечивает безопасность и уверенность в покупке. Ваше спокойствие наш приоритет. Звоните нам, и мы с радостью организуем просмотр. Возможно, именно эта квартира станет началом Вашей новой, еще более счастливой жизни!



141 368 ₽/м²
Взят задаток! Квартира в отличном состоянии, сделан ремонт, заходи и живи, старый пол демонтирован, за счет этого увеличилась высота потолка, ламинат уложен на стяжку, пол не скрипит! Стены ровные, электрика новая, счетчики на воду и свет имеются. В квартире остается кухонный гарнитур с варочной поверхностью, стиральная машинка, остальная мебель по договорённости. Хорошие соседи. Документы готовы. Вся сумма в договоре. 1 взрослый собственник.



148 515 ₽/м²
Предлагается отличная полноценная 1 - комнатная квартира с балконом в деловом центре города по проспекту Социалистическому дом 112 (район гостиницы Сибирь"). Квартира расположена на удобном 4 этаже в 5-этажном доме. Материал стен панель. Общая площадь квартиры 30,3 кв.м. Характеристики: Продуманная и практичная планировка квартиры дает возможность для комфортного проживания как молодой семьи, так и для студентов. Окна квартиры выходят на солнечную сторону с видом на тихий уютный двор. В стоимость квартиры входит мебель и бытовая техника. Квартира полностью готова к проживанию. Вид из окон на тихий двор. Во дворе: Красивая и ухоженная территория, утопающая в зелени. Новая современная детская игровая и спортивная площадки, новая удобная вместительная парковка, места для отдыха и прогулок. Идеальное месторасположение: Наш дом расположен в непосредственной близости к известным краевым ВУЗам, прямо во дворе дома АлтГПУ, лучшие гимназии также находятся в шаговой доступности ( 69, 55, 42), детские сады ясли ( 50, 107), СК"Обь", СК "Олимпийский", дворец зрелищ и спорта, крупные торговые центры, все необходимые объекты социальной инфраструктуры, а также отличная транспортная развязка в любую точку города. Документы оформлены надлежащим образом зарегистрировано право собственности, чистая продажа, полная сумма в договоре, уместен разумный торг. Подробности - по телефону.






96 774 ₽/м²
Квартира в кирпичном доме! - Просторные комнаты, где каждый член семьи найдет свое место для отдыха и вдохновения. - Гардеробная, обеспечивающая порядок и удобство в размещении вещей. - В кухне остается кухонный гарнитур. Рядом находятся школы и детские сады, что делает жизнь особенно комфортной для семей с детьми. Всего 5 минут до центра города вы всегда будете в самом гуще событий! *АГЕНТСТВО НЕДВИЖИМОСТИ ЖИЛФОНД * Являемся официальными партнёрами всех ведущих банков ( скидки на ипотеку от банков партнёров, экономия на страховке) *Оформление ипотеки- семейная, вторичный рынок, дома, IТ-ипотека * Бронирование квартир и сопровождение сделки при покупке новостройки * Продажа Вашей недвижимости по максимально выгодной цене * Подбор недвижимости по Вашим критериям * Юридическое сопровождение * Оплата только по факту выполнения работ ( никаких предоплат) * Работаем только официально. Возможен обмен на вашу недвижимость. Возможна продажа в рассрочку. При звонке, пожалуйста, сообщите номер варианта - JV002022119632.



126 898 ₽/м²
Продается просторная двухкомнатная квартира 60,6 кв.м. В центре центра города: Напротив мед университете и политеха. _______ Являюсь собственником данной квартиры. Вместо слова "продаю", хотел бы использовать "отрываю от сердца". В этой квартире прошли самые лучшие годы моей жизни и все самые важные события. Ремонт делался под себя, так как не планировалась продажа в ближайшем обозримом будущем. Судьба сложилась так, что мне по наследству достался частный дом за которым нужен постоянный уход и пришлось делать выбор между комфортной жизнью в квартире и тяжелой крестьянской жизнью в доме. Мы с моей девушкой экстремалы, поэтому переезжаем жить в дом и соответственно требуются деньги на капитальный ремонт в новом жилище, поэтому с болью в сердце продаем эту квартиру. _______ В квартире есть всё необходимое для комфортной жизни: Кондиционер, водонагреватель, много места для хранения одежды и других вещей. Закрытая парковка во дворе для собственников квартир ( Всегда есть свободное место ) В пешей доступности вся инфраструктура: Самые главные вузы города, магазины, детские сады, школы и тд. Великолепный вид из окна на ленинский проспект ( мед университет и политех ) Вместе с квартирой в подарок идет кладовка в подвале доме, в которую можно складывать велосипеды, коляски и тд. На данный момент кладовка сдается в аренду. Вы можете также продолжить сдавать её и получать ежемесячный доход. Приятные соседи, в каждом подъезде всего 12 квартир. В основном все Интеллигенты. Хорошая акустика, никого не слышно в квартире, прекрасные кирпичные стены. Дом строился, когда всё делали на совесть. Один взрослый собственник. Никаких обременений. Чистая продажа без всяких махинаций. Все официально и по закону. _______ Думаю лучше варианта за эти деньги вы не найдете во всем Барнауле. Если есть вопросы, то не стесняйтесь, буду рад ответить на них, пишите или звоните!)
| 🔷 Средняя цена продажи: | 6,8 млн руб. |
| 🔷 Средняя цена за м2: | 166 тыс. руб./м² |
| 🔷 Минимальная стоимость: | 3,4 млн руб. |
| 🔷 Самый дорогой объект: | 22,9 млн руб. |