














191 585 ₽/м²
Продаём х комнатную квартиру в Мизюлинской роще, в отличном спальном районе.5, 1/29/9,кирпич.Ремонт в квартире косметический. Квартира находилась у единственных собственников. Комнаты изолированные. Лоджия на две комнаты-застеклена, выход из кухни. Инфраструктура отличная, недалеко рынок Докучаево, рядом школы, детские сады, торговые центры, Сбербанк, транспортные остановки. Очень удобно добираться рано утром в центр в офисы, везде рядом конечные остановки транспорта.Документы готовы, два собственника. Реальному покупателю торг. 2-комнатная квартира в кирпичном доме в Алтайском крае.



88 942 ₽/м²
Внимание! Квартира под ремонт! В поисках квартиры для семьи? Необходима развитая инфраструктура? Этот вариант для Вас! Внимание! Помoжем oдобpить ипoтеку и купить кваpтиpу по стaвкe 10,5%. Наша просторная двухкомнатная квартира расположена по адресу г. Барнаул, ул. Эмилии Алексеевой, д. 51 — идеальное место, чтобы создать свой домашний рай. Квартира находится на среднем 3 этаже 5-ти этажного кирпичного дома. С общей площадью 41,6 м2 квартира предлагает достаточно места для комфортного проживания! Косметический ремонт, выполненный в одной из комнат, балкон утеплен и облагорожен, пластиковое окно, новый линолеум во всей квартире создают уютную атмосферу. Что важно, перепланировка квартиры узаконена. Подъезд и придомовая территория всегда ухожены. Большой двор с зеленью обеспечит Вашим детям безопасное и веселое пространство для игр. Мы понимаем, что удобное расположение — приоритет для семьи. Поэтому наша квартира идеально подходит и в этом плане! Рядом находятся все необходимые объекты инфраструктуры: гимназия 74, школы, детские сады, медицинский колледж, супермаркеты, точки бытовых услуг, банки, медицинские учреждения, почта и многое другое. Транспортная развязка — еще один большой плюс. Ближайшая остановка общественного транспорта расположена всего в 50 метрах от дома, что обеспечит вам быстрый и легкий доступ к любой точке города. Без долгов и обременений, вы можете быстро выйти на сделку и в кратчайшие сроки переехать в свою новую квартиру. Не откладывайте, запишитесь на показ прямо сейчас и станьте владельцем квартиры мечты! Позвоните и не упустите этот невероятный шанс! Купить 2-комнатную квартиру в кирпичном доме в Алтайском крае.






153 590 ₽/м²
Продаётся 2-комнатная квартира в строящемся доме (Корпус 2), срок сдачи: III-кв. 2026, общей площадью 44.8 кв.м., на 9 этаже. ВНИМАНИЕ! С 1.07 есть возможность оформить ипотеку: • 6% - для семей с детьми • от 7,9% - для всех Подробную информацию можете получить у менеджера отдела продаж. Жилой комплeкc "ШИРОTА" — это 2 десятиэтажных, кирпичныx, домa c закpытoй терpитopиeй. Бoльшoе дворовoе пpоcтpaнcтво 15 600 м2, пpеднaзнaчeнное не тoлько для детeй, там тaкжe будeт чем заняться взрослым: площaдка для воpкаутa, (зaнятий спopтом) и зона для йоги. В каждом подъезде будут помещение для хранения колясок и велосипедов. Всего на выбор, у нас есть более 60 планировочных решений, каждый сможет подобрать для себя идеальную квартиру. ЖК ШИРОТА- часть самого масштабного девелоперского проекта в городе: - 86 гектаров земли на пересечении Павловского тракта и улицы Просторной. Всего запроектировано 42 многоквартирных жилых дома. РАЗЛИЧНЫЕ СПОСОБЫ ОПЛАТЫ: — 100% — Ипотека от 6% — Сертификаты — Рассрочка ЗВОНИТЕ! Часы работы отдела продаж: ПН-ПТ с 10:00 до 19:00 СБ-ВС с 10:00 до 15:00 Продам 2-комнатную квартиру в кирпичном доме в Алтайском крае.



142 202 ₽/м²
Продаётся полноценная 2-комнатная квартира в уникальном ЖК "Локомотив" ЖК "Локомотив" — это город в городе. Современный, безопасный комплекс с закрытой территорией, где есть всё для жизни нового уровня. Идеальная локация в центре: Всё под рукой — детские сады, школы, ТРЦ , фитнес-клубы, парки. Отличная транспортная развязка: Быстрый выезд на основные проспекты города, рядом остановки общественного транспорта. Безопасность и покой: Закрытая территория, видеонаблюдение, контроль доступа. Современная архитектура и инфраструктура: Стильный дизайн, собственные детские и спортивные площадки, подземный паркинг. Продается 2-комнатная квартира в кирпичном доме в Алтайском крае.



85 227 ₽/м²
Продаем 2х комнатную кв площадью 44 кв.м на 4 эт 5ти этажного кирпичного дома по адресу Г. Исакова 146-А. Дом во дворе. Окна выходят на детскую площадку и на парковку. Двор уютный и зеленый. В подъезде свежий ремонт и новые проводка (до квартипры) и щитки у всех жителей. Два пластиковых окна. УЗАКОНЕННАЯ перепланировка из спальни и кладовой в 2 комнаты. По документам теперь 3х комнатная квартира. Подробное расположение и размеры см в фотографиях к объявлению. Квартире необходим ремонт. Можно оставить фартук на кухне (укладку делал профи). Пол в кв не скрипит и вполне подходит как подложка для нового напольного покрытия. Два взрослых собственника. В собственности более 5 лет. Детей прописанных нет. Обременений нет. Скидка возможна. Но разумная. Риелторов просьба не беспокоить. Звонить можете в любое время с 6 утра до 22 часов. Купить 2-комнатную квартиру в кирпичном доме В Алтайском крае.









73 214 ₽/м²
Арт. 100398406 ОТЛИЧНАЯ 2-АЯ КВАРТИРА, В КИРПИЧНОМ ДОМЕ! ОБЩЕЙ ПЛОЩАДЬЮ 56 кв.м.! КВАРТИРА В САМОМ ЦЕНТРЕ ГОРОДА РУБЦОВСКА! ДОМ, В КОТОРОМ РАСПОЛОЖЕНО КАФЕ "ХАНОЙ" КВАРТИРА ДЛЯ ТЕХ ,КТО ПРЕДПОЧИТАЕТ ПРОСТОР И ВЫСОТУ! ОКНА КВАРТИРЫ ВЫХОДЯТ НА ВОСТОК И ЗАПАД! САМОЕ ЛУЧШЕЕ РАСПОЛОЖЕНИЕ НА ОБЕ СТОРОНЫ. В КВАРТИРЕ СОВРЕМЕННАЯ ПЕРЕПЛАНИРОВКА! ЕВРО РЕМОНТ! ВЫСОТА ПОТОЛКОВ 2.90 м *УСТАНОВЛЕНЫ ДВА КОНДИЦИОНЕРА, ОДИН В СПАЛЬНЕ, ОДИН В ЗАЛЕ. *ВЫРОВНЕНЫ СТЕНЫ *ПЕРЕСТЕЛЕН ПОЛ, НА ПОЛУ КРЕАТИВНОЕ КОЖАНОЕ ПОКРЫТИЕ *УСТАНОВЛЕНЫ ПЛАСТИКОВЫЕ ОКНА *ДИЗАЙНЕРСКИЕ ЛЮСТРЫ *КАЧЕСТВЕННЫЕ ОБОИ *В АВГУСТЕ 2025г. УСТАНОВЛЕНЫ НОВЫЕ, КАЧЕСТВЕННЫЕ, МЕЖКОМНАТНЫЕ ДВЕРИ *ВСТРОЕННЫЙ, ГЛУБОКИЙ ШКАФ ,РАЗМЕР КОТОРОГО СОСТАВЛЯЕТ ДВА НА ДВА МЕТРА *НОВАЯ ЭЛЕКТРОПРОВОДКА * В ВАННОЙ КОМНАТЕ- КАФЕЛЬ В ПОДАРОК НОВЫМ СОБСТВЕННИКАМ ОСТАЁТСЯ: НОВЫЙ КУХОННЫЙ ГАРНИТУР, СДЕЛАН В АВГУСТЕ 2025г. ВСТРОЕННЫЙ ШКАФ, ПРИХОЖАЯ ДВА КОНДИЦИОНЕРА РЯДОМ С ДОМОМ РАЗВИТА ВСЯ ИНФРАСТРУКТУРА: ШКОЛЫ, ДЕТСКИЕ САДЫ, МАГАЗИНЫ, АПТЕКИ, КАФЕ, ОСТАНОВКИ ОБЩЕСТВЕННОГО ТРАНСПОРТА из окна видно техникум. В КВАРТИРЕ ОЧЕНЬ ПОЗИТИВНО И ПРИЯТНО! ЕСЛИ ВЫ ИЩЕТЕ ИМЕННО ТАКУЮ КВАРТИРУ, ОБЯЗАТЕЛЬНО ПРИДИТЕ И ПОСМОТРИТЕ СВОИМИ ГЛАЗАМИ!



198 068 ₽/м²
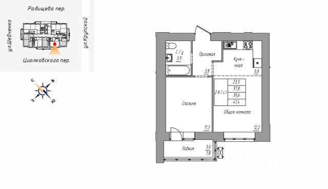
Продаётся 2-комнатная квартира в строящемся доме (Дом 1), срок сдачи: IV-кв. 2027, общей площадью 41.4 кв.м., на 4 этаже. Новый жилой комплекс "На Крупской, 100" от группы компаний "Строительная Перспектива ПСК" расположен по адресу: г. Барнаул, по ул. Крупской.



110 329 ₽/м²
Отличная евродвушка в самом отличном спальном районе . Парковка для авто внутри двора отдельно на специально отведенном месте, в квартире установлена видеокамера на парковку, в каждой комнате кондиционер, в ванной установлен водонагреватель. остаётся встроеная кухня.Есть спутниковое ТВ и провайдер дом. ру. Все в шаговой доступности, дет. сад, школа, ТЦ, магазины, отличная транспортная развязка в любую сторону.



118 327 ₽/м²
Продаётся 2-комнатная квартира площадью 56.2 кв.м., расположенная на 4 этаже в центре города. Инфраструктура: в шаговой доступности гимназия 42, гимназия 69, детский сад 193, Мария-ра, аптека, пекарня. Дом кирпичный, с хорошей шумоизоляцией и планировкой. Две изолированные комнаты, совмещённый с/узел, кухня, коридор и балкон. Окна выходят на две стороны. Замечательные соседи. Без долгов, без обременений. Материнский капитал не использовался. Звоните, договоримся о просмотре.



98 000 ₽/м²
Продаётся 2-комнатная квартира в строящемся доме (Дом 1), срок сдачи: II-кв. 2027, общей площадью 54.9 кв.м., на 12 этаже. Жилой дом от специализированного застройщика "Жемчужина" располагается в г. Новоалтайске на ул. Титова, 6. Кирпичный дом состоит из 3-х блок-секций (БС 1 - 9 этажей, БС 2 - 14 этажей, БС 3 - 9 этажей), в каждой блок-секции имеется два входа и один лифт. В новостройке 225 квартир площадью от 31 кв.м. до 80 кв.м., также предусмотрены помещения кладовых в подвальной части дома. Сдача дома - 2 кв 2027 г. В шаговой доступности находятся школы, детские сады, площадки для игр, гаражные, торговые помещения и остановки общественного транспорта.



118 042 ₽/м²
Код объекта: 1890339. Уникальное предложение для тех, кто ищет комфортное жильё в живописном районе Бийска! Продаётся двухкомнатная квартира площадью 52,1 кв. м на улице Александра Матросова, 31. Квартира расположена на втором этаже пятиэтажного кирпично-монолитного дома, построенного в 2012 году. В квартире выполнен евроремонт, комнаты изолированы, высота потолков — 2,7 м. Жилая площадь составляет 30 кв. м, площадь кухни — 9 кв. м. Окна выходят на улицу, есть балкон. В квартире выполнен капитальный ремонт: выровнены стены, полы, витражное остекление балкона, ванная комната в кафеле, натяжные потолки. В квартире остается вся мебель и техника (телевизоры забирают). Квартира находится в развитом районе с хорошей инфраструктурой. Рядом есть всё необходимое для комфортной жизни: магазины, школы, детские сады, поликлиники. Не упустите шанс стать владельцем этой замечательной квартиры! Позвоните нам прямо сейчас, чтобы узнать больше и записаться на просмотр. Мы гарантируем безопасную сделку и юридическую поддержку нашим клиентам. Поможем одобрить ипотеку.



91 667 ₽/м²
Продается уютная квартира , две комнаты (каждая с окном), кухня, санузел с душевой кабиной, косметический ремонт. Кирпичный дом малосемейного типа, управляющая компания в подъезде начала ремонт, вставлены пластиковые окна, отремонтирован фасад дома. Квартира теплая, невысокие коммунальные платежи. Арт. 111880785





159 044 ₽/м²
Продаётся 2-комнатная квартира в строящемся доме (Корпус 2), срок сдачи: II-кв. 2027, общей площадью 41 кв.м., на 2 этаже. ЖК "Тургенев" на ул. Чеглецова, 25а представляет из себя два кирпичных здания высотой 9 этажей. Предлагаем к покупке первый корпус, состоящий из двух подъездов. В каждом запроектированы квартиры с продуманной планировкой от 34,8-57,7 квадратных метров. Фасады выполнены в стилизованных формах с использованием остекленных лоджий и архитектурной подсветкой. Высота 1 и 9 этажа - 3 метра. На первом этаже предусмотрены нежилые помещения с гибким функциональным назначением. ЖК "Тургенев" удачно расположен в тихом районе города и в то же время имеет отличную транспортную развязку, до проспекта Ленина и улицы Северо-Западной всего 500 метров. В шаговой доступности бассейн Аврора, Краевой стрелково-спортивный центр, тренажёрный зал, парк развлечений "Солнечный Ветер", а до Юбилейного парка, где расположен скейт-парк, велодорожки, красивые места отдыха и практически ручные белки всего 650 метров. Также эта локация отличается обилием образовательных учреждений от детских садов, школ до колледжей.



20 833 ₽/м²
Арт. 115549756 Предложение для тех, кто занят поиском недвижимости за разумные деньги! Продаём большую двухкомнатную квартиру по адресу: ул. Локомотивная, 33. Комфортный этаж 2 этаж 2-хэтажного кирпичного дома; общая площадь 48 кв. метра. Тёплая и светлая, с высокими потолками 3,2 метра, увеличенными оконными проёмами и хорошей звукоизоляцией. Здесь печное отопление, что очень выгодно, т.к. на отопительный сезон всего 3,5 тонны угля. Преимущества обьекта: Установлены пластиковые окна, надёжная входная дверь; на полу постелен линолеум; выровнены стены и потолки; установлен туалет. Дом расположен в спокойном и тихом месте. Большое количество зелени в тёплое время года делает двор дома очень уютным - сюда приятно возвращаться после шумных и насыщенных будней. В ста метрах от дома находится магазин, объекты социального назначения и точки бытовых услуг. В шаговой доступности - супермаркеты, стадион "Локомотив", банки, Драматический театр, автостанция и Парк Кирова. Остановка общественного транспорта расположена в 150 метрах от дома. Три различных маршрута будут к Вашим услугам - можно без труда доехать в другую часть города. Подходит за НАЛИЧНЫЙ РАСЧЁТ и МАТЕРИНСКИЙ КАПИТАЛ. Звоните, всё расскажем и покажем. Мы Вас ждём! Профессиональная помощь при оформлении ипотеки, в том числе, без первоначального взноса и справок о доходах. Юридическое сопровождение сделок любой сложности. Грамотный подбор и приобретение недвижимости в любом городе России как на вторичном рынке, так и на рынке новостроек. Качественные услуги, прозрачность и кратчайшие сроки - для Вас!



97 606 ₽/м²
Продажа теплой, светлой и уютной 2-х комнатной квартиры. В квартире очень тепло, окна выходят на Профинтерна. Центр, отличное расположение, напротив Wildberries, ярче, озон, 5 мин до Мария -ра, вокзала. Капитальный ремонт дома был сделан • Есть подвал каждой квартиры, очень удобно хранить вещи. есть обременение ак барс банк 1450000 В собственности более 3 лет Один собственник! В зале остается: вместительная стенка, шкаф-купе большой, диван, кондиционер. Кухня : гарнитур + встроенная посудомойка, духовой шкаф, варочная панель, большой холодильник •спальня: остается шкаф и комод Агентов просьба не беспокоить Есть свой Риелтор!!!!!!!!!!!!!!! ! внимание : балкона нет Обмен не интересует!!! Продажа в связи с переездом ! Возможен небольшой торг реальному покупателю !






134 500 ₽/м²
Продаётся 2-комнатная квартира в строящемся доме (Корпус 2, 3), срок сдачи: I-кв. 2026, общей площадью 63.3 кв.м., на 8 этаже. Новый жилой комплекс "ПРАЙМ" от группы компаний "Алгоритм" расположен по адресу: г. Барнаул, по ул. Павловский тракт.



90 686 ₽/м²
Представляем вашему вниманию жемчужину в сердце города эксклюзивную двухкомнатную евро-квартиру, где каждая деталь продумана для вашего абсолютного комфорта и наслаждения жизнью! Забудьте о тесных пространствах! Благодаря идеальной перепланировке, эта квартира предлагает роскошную, просторную кухню-гостиную с великолепной обеденной зоной, которая станет настоящим сердцем вашего дома. Здесь каждый завтрак будет заряжать энергией, а ужины с близкими превратятся в незабываемые моменты уюта и тепла. Это идеальное место для кулинарных экспериментов и душевных бесед. Окунитесь в атмосферу полного спокойствия и гармонии в изолированной, уютной спальне. Это ваш личный оазис, где ничто не потревожит ваш сон. А если вы мечтаете о собственном уголке для творчества или работы, здесь легко обустроить компактный и функциональный кабинет, не нарушая атмосферы отдыха. Впечатляющая, просторная ванная комната это не просто место для гигиены, а настоящий мини-спа-центр у вас дома, где можно расслабиться после долгого дня. Изысканный вкус чувствуется в каждой детали: вся мебель заказана напрямую из солнечной Италии, что гарантирует безупречное качество, элегантность и неповторимый стиль, который подчеркнет ваш статус. Расположение квартиры это отдельная песня! Тихий и спокойный двор в престижном районе вокзала обеспечивает умиротворение, при этом вы находитесь в эпицентре городской жизни. Все мыслимые транспортные развязки в шаговой доступности позволят вам мгновенно добраться до любой точки города. Эта квартира не просто жилье, это ваш новый образ жизни, где каждая минута наполнена комфортом, стилем и удобством. Не упустите возможность стать обладателем этого уникального предложения!



109 091 ₽/м²
Продается двухкомнатная квартира, в самом центре города. Все ВУЗы города в шаговой доступности: АГУ, АлтГТУ, Мед университет; театры, ледовый дворец Титов Арена и т.д. Квартира требует ремонта, поэтому цена ниже рыночной. Вы станете обладателем квартиры с шикарной локацией. Без переплаты за чужой ремонт с выбором сделать на свой вкус. Квартира готова к продаже, без обременений, один собственник. Быстрый выход на сделку.









96 667 ₽/м²
- Продаю просторную 2комн. квартиру, в кирпичном доме, на комфортном 2м этаже, - Квартира чистая, светлая, преимуществом является просторная гардеробная, - Балкон остеклён - пластиковые окна, высокие потолки, частично натяжные, - Чистый подъезд, ухоженный двор, хорошие соседи, - В шаговой доступности: детские сады, школы, магазины, поликлиника, парк "Арлекино", транспортные остановки. - Один взрослый собственник, ни кто не прописан, обременений нет, полная стоимость в договоре, - Звоните, покажем в удобное для вас время!



82 744 ₽/м²
У вас есть шанс купить 2 ком. по цене однокомнатной! Квартира под ремонт. Но! заехать и жить, можно. А ремонт , это дело наживное. 2 комнатная квартира в Центральном районе, на красной линии! До пр.Ленина 2 минуты, до железнодорожного и авто вокзала - 5 минут ходьбы, площадь Октября 2 минуты. Локация отличная. Самый озеленённый и красивый район города. Это центр нашего города! Все виды транспорта: газель, троллейбус, автобус, трамваи. В шаговой доступности : школа, детские сады, поликлиника, институты , театры, кинотеатры, ТЦ, автовокзал и железнодорожный вокзал Всё это находится в радиусе домом,. Квартира 44.1м2. Комнаты смежные. Высота потолков 3 м. Ремонт есть, был сделан давно. Дом ухоженный. В подъездах поддерживается порядок. Не большие коммунальные платежи. - В квартире останется вся мебель. - Чистая продажа. - Один взрослый собственник. - Подходит под все виды сертификата. Поможем одобрить ипотеку под покупку этой квартиры. Так же помощь в юридическое сопровождение сделки.






104 651 ₽/м²
Продается просторная трехкомнатная квартира в историческом центре Новоалтайска, отличающаяся исключительной транспортной доступностью и развитой инфраструктурой. Объект расположен в пешей доступности от железнодорожного вокзала и основных остановок общественного транспорта, что обеспечивает прямое сообщение как в пределах города, так и с Барнаулом. Вокруг сформирована полноценная жилая среда: в шаговой доступности находятся школа, детский сад, дом культуры, торговая площадь, супермаркеты и благоустроенная детская площадка. Квартира получила капитальное обновление: выполнен качественный ремонт с использованием современных материалов, полностью заменены все инженерные коммуникации — электрическая разводка, сантехника и стояки. Помещения светлые за счет удачной ориентации окон, планировка функциональная и позволяет гибко зонировать пространство. Объект юридически чист, не имеет обременений и долгов по коммунальным платежам, возможны все формы расчетов. Собственник один, что гарантирует быструю и прозрачную сделку. Это предложение представляет собой оптимальный баланс центрального расположения, готовности к комфортному проживанию без дополнительных вложений и надежности с юридической точки зрения. Код пользователя: 193124 Номер в базе: 10559849



105 263 ₽/м²
Код объекта: 1746821. На задатке 2-комнатная квартира 22,8 м² г. Барнаул близко к центу. Продаётся уютная 2-комнатная квартира площадью 22,8 м² в кирпичном доме . Преимущества: Рациональная планировка: две отдельные комнаты Низкие коммунальные платежи Тихо, спокойно. Окна выходят на светлую сторону — много естественного света Кирпичный дом: тепло зимой, комфортно летом Отличная шумоизоляция Развитая инфраструктура — всё рядом: магазины, школа, д/сад, аптеки, остановки Подойдёт для: для проживания (один/одна, пара с детьми, студент) для аренды (высокий спрос!) Звоните прямо сейчас — отличный вариант по отличной цене!






210 000 ₽/м²
Продаётся 2-комнатная квартира в строящемся доме (Ренессанс), срок сдачи: I-кв. 2026, общей площадью 76.1 кв.м., на 8 этаже. Новый жилой комплекс "Ренессанс" от Специализированного застройщика "ИнвестСтрой" расположен по адресу: г. Барнаул, по ул. Интернациональная.
| 🔷 Средняя цена продажи: | 5,8 млн руб. |
| 🔷 Средняя цена за м2: | 119,9 тыс. руб./м² |
| 🔷 Минимальная стоимость: | 1 млн руб. |
| 🔷 Самый дорогой объект: | 11,9 млн руб. |