


157 000 ₽/м²
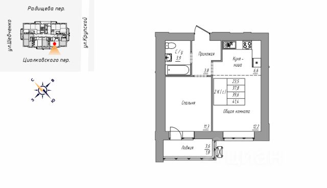
Продаётся 2-комнатная квартира в строящемся доме (Шевченко, 135), срок сдачи: I-кв. 2026, общей площадью 48.53 кв.м., на 8 этаже. ЖК Дружба представляет собой комплексную застройку, возводимую по монолитно-каркасной технологии с заполнением из крупных каменных блоков и панелей. Дом 124 по улице Крупской сдан в 3 квартале 2018 года. Цветовое решение, выбранное для объекта, напоминает российский триколор. В доме предусмотрено 148 одно- и двухкомнатных квартир от 23 кв. м, 2 подъезда. Квартиры сданы под чистовую отделку: стены из газобетона, оштукатурены. Пол без отделки. Согласно проекта, в квартира застекленные балконы, смежный санузел. Объект на Крупской 118 - это второй дом квартала "Дружба". 16-ти этажный многоквартирный дом с объектами общественного назначения на первом этаже, а так же с предусмотренной подземной парковкой на 41 машино-место. Застройщиком выполнится благоустройство придомовой территории: детские площадки, зоны отдыха. Дом расположен в центре города, рядом с ведущими ВУЗами. В шаговой доступности: детские сады, школы, медицинские учреждения и торгово-развлекательные центры. 2-комнатная квартира от застройщика в районе Железнодорожный в городе Барнаул.

















































































