
166 188 ₽/м²
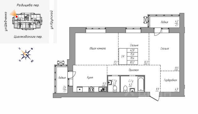
Продаётся 5-комнатная квартира в строящемся доме (Меланж), срок сдачи: IV-кв. 2026, общей площадью 130.16 кв.м., на 8 этаже. Меланж - дом рядом с парком. Эстетика городской жизни Эстетика городской жизни - значит иметь возможность слушать пение птиц, наслаждаться зеленью деревьев, заниматься спортом на свежем воздухе или отправиться на прогулку в любое время. Это не просто архитектурное решение, а отличный повод изменить свои ежедневные привычки, сделать жизнь более интересной и наполненной. Внутреннее благоустройство С помощью зданий будет сформирована закрытая территория. Это разделит пространство на общественное и частное, изолирует двор от городского шума и суеты, превратит его в безопасное и приятное место для отдыха жителей. Двор без машин, игровые площадки и зелёное зонирование - атрибуты более высокого качества жизни в домах комфорт класса. Архитектура В фасаде будут использованы благородные и "тёплые" материалы - кирпич. Это придаст зданию эстетическую привлекательность, практичность и долговечность. Архитектура дома, не только сохранит историю и традиции, но и подчеркнет его особую изысканность и индивидуальность на фоне современной застройки. Планировки для каждого Каждая планировка квартиры - тщательно продуманное решение, основанное на индивидуальных сценариях жизни будущих жильцов. Квартиры с окном в ванной, гостиная с шестиметровыми витражами или уютные апартаменты с отдельным входом направлены на формирование неповторимого образа жизни будущих владельцев недвижимости.





























































