


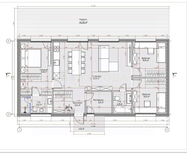
Код объекта: 1914532. Уникальное предложение для тех, кто ищет комфортное жильё в тихом районе! Продаются дома в новом развивающемся микрорайоне села Фирсово "Счастье парк" в 10 минутах езды от города. Дом сдаётся в 2026 году , имеет три комнаты, общая площадь составляет 98,3 кв. м, жилая — 44 кв. м, площадь кухни — 30 кв. м. Высота потолков — 3,3 м, что создаёт ощущение простора и свободы. Дом подключён ко всем необходимым коммуникациям: электричество, водоснабжение, газ, канализация. Отопление газовое обеспечивает эффективное и экономичное отопление. Участок площадью 8 соток имеет статус индивидуального жилищного строительства, подъезд к участку — щебенчатый. Дом идеально подойдёт для тех, кто хочет построить свой собственный уютный уголок вдали от городской суеты. Ремонт в состоянии white box позволяет новым владельцам реализовать свои дизайнерские идеи и создать уникальное пространство по своему вкусу. Не упустите возможность стать владельцем этого прекрасного дома! Звоните нам прямо сейчас, чтобы узнать больше и записаться на просмотр. Мы гарантируем безопасную сделку и юридическую поддержку нашим клиентам. Поможем одобрить ипотеку с сниженной ставкой. Подходит под все виды ипотеки.






















































































