Мы используем куки-файлы. Соглашение об использовании
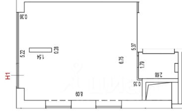
Помещение свободного назначения, 54,8 м²
Площадь54,8 м²
Этаж1 из 15
ПомещениеСвободно
В аренду предлагается современное коммерческое помещение, расположенное в активно развивающемся районе Барнаула — ЖК Адалин на Семёнова. Адрес: улица В. Т. Христенко, 2, Центральная аллея комплекса! Рядом остановка! Характеристики помещения: Площадь 54,2 м² — оптимальна для размещения аптек, кондитерских, кофеен, цветочных магазинов, пунктов выдачи заказов, шоу-румов и предприятий бьюти-индустрии и другое Витражные окна обеспечивают естественное освещение и делают помещение заметным и привлекательным. Высота потолков 3 метра создаёт ощущение простора и позволяет разместить рекламные конструкции. Электроснабжение 380 В, 15 кВт — достаточно для большинства коммерческих нужд. Преимущества локации: В непосредственной близости от жилого комплекса Адалин на Семёнова с развитой инфраструктурой: магазинами, кафе, офисными центрами и жилыми домами.Удобное транспортное сообщение и лёгкий доступ к основным магистралям города. Это помещение предоставляет арендатору уникальную возможность привлечь внимание большого числа клиентов благодаря своему стратегическому расположению. Чтобы получить подробную информацию и организовать просмотр, звоните прямо сейчас.
lock

Войдите или зарегистрируйтесь
для просмотра информации

Просматривайте условия сделки и всю информацию об объекте
Сохраняйте фильтры в поиске и не вводите заново
Доступ к избранному с любого устройства
Неограниченное добавление в избранное
Позвоните автору
Вам ответят на все вопросы
Остались вопросы по объявлению?
Позвоните владельцу объявления и уточните необходимую информацию.
  • Инфраструктура
  • Похожие рядом
  • Общая площадь54,8 м²
Естественная вентиляция
Центральное отопление
Сигнализация
Помощь надёжных риелторов
Риелтор партнёр Циан поможет купить или продать любую недвижимость
70 144 ₽/мес.

Прямая аренда (от года), минимальный срок аренды 12 месяцев, доступны арендные каникулы, обеспечительный платёж 10000 ₽, предоплата за 1 месяц

935 $/мес.
797 /мес.
Цена за метр
15 360 ₽ в год
Налог
УСН
Комиссия
нет
Коммунальные платежи
включены
Эксплуатационные расходы
включены
Агентство недвижимости