Мы используем куки-файлы. Соглашение об использовании
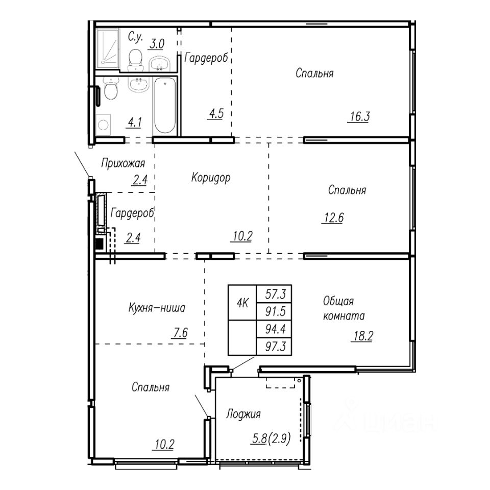
Общая площадь94,4 м²
Этаж17 из 22
Год сдачи2027
ДомНе сдан
ОтделкаБез отделки
Продаётся 4-комнатная квартира в строящемся доме (Корпус 1), срок сдачи: IV-кв. 2027, общей площадью 94.4 кв.м., на 17 этаже. Жилой комплекс с богатой инфраструктурой района, расположенный в непосредственной близости к парку Целинников на улице Антона Петрова.

О квартире

Тип жилья

Новостройка

Общая площадь

94,4 м²

Высота потолков

2,7 м

Отделка

Без отделки

О доме

Количество лифтов

3 пассажирских

Пандус

Есть

Понравилась квартира — узнайте о ней больше

Застройщик ответит на все вопросы

Отделка в ЖК

  • Без отделки

3D-тур

Посмотрите 3D-тур, чтобы оценить объект
Похоже на то, что вы ищете?

Акции в ЖК «Дом культуры»

Узнайте про персональные условия и дополнительные скидки при покупке квартиры у застройщика
Ипотечный калькулятор
  • Базовая
  • Семейная
  • ИТ-ипотека
  • 20%
  • 30%
  • 40%
  • 50%
лет
  • 10 лет
  • 20 лет
  • 30 лет
Загружаем предложения от застройщика и банков

Расположение

Корпус проверен наш.дом.рф
Обновлено 23 апреля 2026
  • Нет в реестре проблемных объектов
  • Застройщик не банкрот
  • Есть эскроу счёт
  • Актуальные фото стройки

Ещё квартиры в жилом комплексе

30 квартир в продаже · Сдача в 4 кв. 2027
Агентство недвижимости
Сити Трейд
  • 7 лет 6 месяцев на Циане
  • 11 800 000 ₽
    Цена за метр
    125 000 ₽/м²
    Условия сделки
    долевое участие (214-ФЗ)
    Агентство недвижимости
    Сити Трейд