Мы используем куки-файлы. Соглашение об использовании
С мебелью

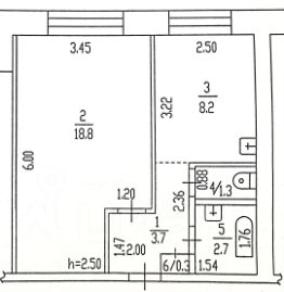
Продается 1-комн. квартира, 35 м²

Общая площадь35 м²
Жилая площадь18,8 м²
Площадь кухни8,2 м²
Этаж4 из 9
Год постройки1993
Продается уютная однокомнатная квартира в Барнауле по адресу: улица Папанинцев, 121А. Общая площадь квартиры составляет 35 кв. м, жилая площадь 18.8 кв. м, кухня 8.2 кв. м. Квартира расположена на 4 этаже 9-этажного кирпичного дома, построенного в 1993 году. Высота потолков 2.6 метра. Окна выходят во двор, обеспечивая тишину и спокойствие. В квартире выполнен ремонт. Удобная планировка позволяет обустроить пространство по своему вкусу. Кухня достаточно просторная для комфортного приготовления пищи. Санузел раздельный, что добавляет удобства в повседневной жизни. Дом находится в хорошем состоянии, на этаже имеется пассажирский лифт, что значительно облегчает перемещение. Для жителей предусмотрена наземная парковка, поэтому у вас не возникнет проблем с местом для автомобиля. Район, в котором расположена квартира, развит и обладает всем необходимым для комфортной жизни. В шаговой доступности находятся гимназии 22, 122 и детские сады, что особенно важно для семей с детьми. Рядом также расположены магазины, ТЦ Сити-Центр, спортзал X-Fit, школьный стадион. Хорошая транспортная доступность позволяет без труда добраться до любого района города. Квартира продается без обременений, возможна продажа в ипотеку. Все документы готовы к сделке, поэтому процесс покупки будет максимально простым и быстрым. Приглашаем вас на просмотр этой замечательной квартиры! Записывайтесь на удобное для вас время и оцените все преимущества лично.
Позвоните автору
Вам ответят на все вопросы

О квартире

Тип жилья

Вторичка

Общая площадь

35 м²

Жилая площадь

18,8 м²

Площадь кухни

8,2 м²

Высота потолков

2,6 м

Санузел

1 раздельный

Вид из окон

Во двор

Ремонт

Косметический

Продаётся с мебелью

Да

О доме

Год постройки

1993

Мусоропровод

Да

Количество лифтов

1 пассажирский

Тип дома

Кирпичный

Тип перекрытий

Железобетонные

Парковка

Наземная

Подъезды

4

Отопление

Центральное

Аварийность

Нет

Спросите умного помощника
Получите экспертное мнение о жилье

Расположение

Ипотечный калькулятор
  • 20.1%
  • 30%
  • 40%
  • 50%
лет
  • 10 лет
  • 20 лет
  • 30 лет
Загружаем предложения от застройщика и банков
5 200 000 ₽
Цена за метр
148 571 ₽/м²
Условия сделки
свободная продажа
Ипотека
возможна
Агентство недвижимости