Мы используем куки-файлы. Соглашение об использовании
С мебелью
Общая площадь114,2 м²
Жилая площадь65 м²
Площадь кухни25 м²
Этаж16 из 16
Год постройки2020
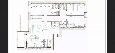
Код объекта: 1782383. Добро пожаловать в ваш будущий дом, где каждая деталь продумана для вашего комфорта и уюта! Территория комплекса порадует вас ухоженным ландшафтом с пышной зеленью, живописными кустарниками и яркими цветами. Для вашего удобства предусмотрена просторная парковка, а для самых маленьких жителей современная и безопасная детская площадка. Любители активного отдыха оценят зону отдыха с беседками, теннисным столом и спортивными тренажерами. В подъезде вас встретит уютный холл с зоной для отдыха, а также вас всегда будет ждать консьерж или охрана, обеспечивая безопасность и спокойствие. Войдя в квартиру, вы окажетесь в просторной кухне-гостиной, где гармонично сочетаются зоны для приготовления пищи и отдыха. Здесь же расположен гостевой санузел с отдельно стоящей раковиной, гигиеническим душем и вместительным шкафом, где скрывается прачечная. Отдельного внимания заслуживает просторная гардеробная, позволяющая сразу оставить верхнюю одежду и обувь, сохраняя чистоту в жилых зонах. Уникальная планировка квартиры включает две независимые теплые лоджии, доступ к которым возможен как из кухни, так и из гостиной это действительно интересное и функциональное решение. Далее, пройдя по просторному коридору, вы попадете в мастер-спальню. Здесь вас ждет объединенный санузел с отдельно стоящей ванной, раковиной, унитазом и биде. Продолжая движение по коридору, вы обнаружите вторую закрытую гардеробную, а также второй санузел с душевой кабиной, раковиной, унитазом и гигиеническим душем. Для детей предусмотрены две просторные спальни. Продуманная планировка квартиры разделяет тихие спальные зоны на "правое" и "левое" крыло, отделяя их от кухни-гостиной и гостевого санузла коридором, что обеспечивает максимальную приватность и тишину. В жаркие дни комфортную температуру в квартире будут поддерживать три кондиционера. Особого внимания заслуживает дизайнерский ремонт, выполненный с использованием высококачественной бытовой техники и мебели от ведущих мировых производителей, что особенно ценно в наше время. Позвоните нам прямо сейчас, чтобы узнать больше и записаться на просмотр! Мы гарантируем безопасную сделку и юридическую поддержку нашим Клиентам. Поможем одобрить ипотеку с сниженной ставкой.
Позвоните автору
Вам ответят на все вопросы

О квартире

Тип жилья

Вторичка

Общая площадь

114,2 м²

Жилая площадь

65 м²

Площадь кухни

25 м²

Высота потолков

2,6 м

Санузел

1 совмещенный, 2 раздельных

Балкон/лоджия

2 лоджии

Вид из окон

На улицу и двор

Ремонт

Дизайнерский

Продаётся с мебелью

Да

О доме

Год постройки

2020

Строительная серия

Индивидуальный проект

Количество лифтов

2 пассажирских, 2 грузовых

Тип дома

Кирпичный

Тип перекрытий

Железобетонные

Парковка

Наземная

Подъезды

3

Отопление

Индивидуальный тепловой пункт

Аварийность

Нет

Спросите умного помощника
Получите экспертное мнение о жилье

Расположение

Ипотечный калькулятор
  • 20.1%
  • 30%
  • 40%
  • 50%
лет
  • 10 лет
  • 20 лет
  • 30 лет
Загружаем предложения от застройщика и банков
30 000 000 ₽
Цена за метр
262 697 ₽/м²
Условия сделки
свободная продажа
Ипотека
возможна
Агентство недвижимости
На Циан
5 лет
Объектов в работе
19