Мы используем куки-файлы. Соглашение об использовании
Общая площадь77,12 м²
Этаж2 из 15
Год сдачи2026
ДомНе сдан
ОтделкаБез отделки
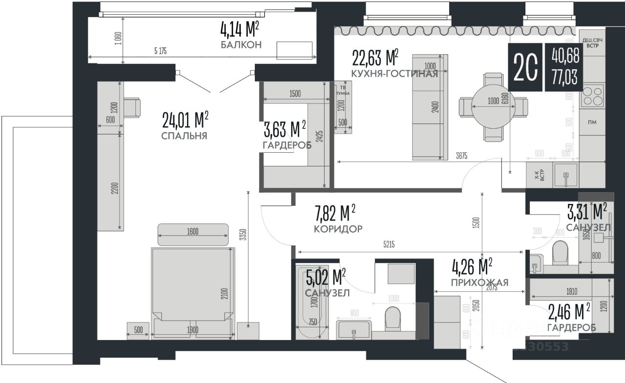
Продаётся 3-комнатная квартира в строящемся доме (Дом 36в (блок-секция 3)), срок сдачи: III-кв. 2026, общей площадью 77.12 кв.м., на 2 этаже. Новый жилой комплекс "Opera Residence" от Специализированного застройщика "Легион" расположен по адресу г. Барнаул, Сибирский проспект.

О квартире

Тип жилья

Новостройка

Общая площадь

77,12 м²

Высота потолков

3,3 м

Отделка

Без отделки

О доме

Количество лифтов

2 пассажирских

Пандус

Есть

Понравилась квартира — узнайте о ней больше

Застройщик ответит на все вопросы

Отделка в ЖК

  • Без отделки
Похоже на то, что вы ищете?

Акции в ЖК «Opera Residence (Опера Резидэнс)»

Узнайте про персональные условия и дополнительные скидки при покупке квартиры у застройщика

Материнский капитал

Ипотечный калькулятор
  • Базовая
  • Семейная
  • ИТ-ипотека
  • 20%
  • 30%
  • 40%
  • 50%
лет
  • 10 лет
  • 20 лет
  • 30 лет
Загружаем предложения от застройщика и банков

Расположение

Корпус проверен наш.дом.рф
Обновлено 19 мая 2026
  • Нет в реестре проблемных объектов
  • Застройщик не банкрот
  • Есть эскроу счёт
  • Актуальные фото стройки

Ещё квартиры в жилом комплексе

60 квартир в продаже · Сдача в 3 кв. 2026
Агентство недвижимости
ID 72530553
  • 5 лет на Циане
  • 16 580 800 ₽
    Цена за метр
    215 000 ₽/м²
    Условия сделки
    долевое участие (214-ФЗ)
    Агентство недвижимости
    ID 72530553