Мы используем куки-файлы. Соглашение об использовании

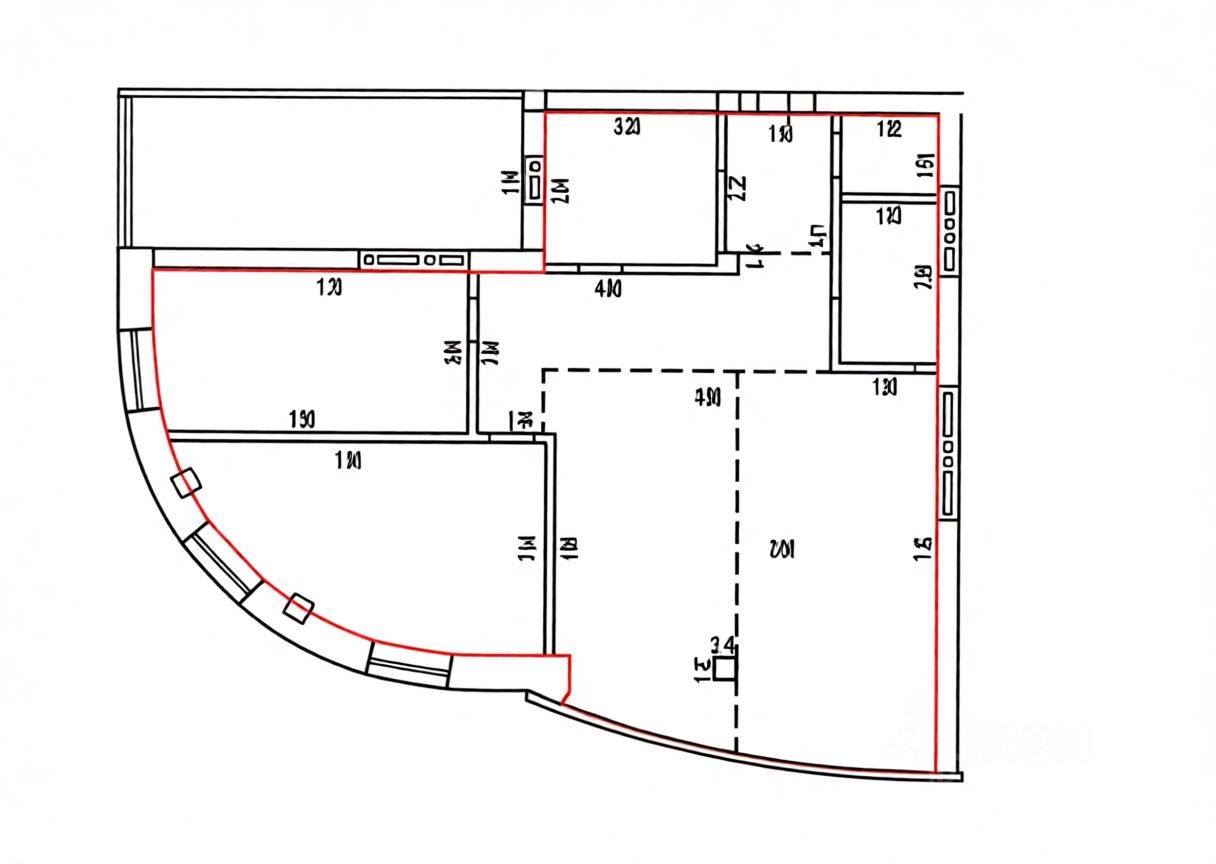
Продается 4-комн. квартира, 124,4 м²

Общая площадь124,4 м²
Жилая площадь83 м²
Площадь кухни17 м²
Этаж10 из 18
Год постройки2025
Арт. 129158139 Видовая 4-комнатная квартира 124,4 м² в ЖК "Жемчужина" | Центр | Премиум Продаётся просторная 4-комнатная квартира площадью 124,4 м² на 10 этаже в доме премиум-класса ЖК "Жемчужина", адрес: ул. Партизанская, 76. Панорамные виды на город и Нагорный парк — редкое сочетание центра и природы. О доме: Дом сдан и введён в эксплуатацию Премиальный жилой комплекс Частично заселён — комфортно для проживания Современная архитектура и статусное окружение Локация: Исторический и общественно-деловой центр города: бизнес-центры и госучреждения ведущие учебные заведения музеи, театры, культурные объекты развитая городская инфраструктура Все преимущества центра — в шаговой доступности. Планировка и виды: Свободная планировка — создайте пространство под себя Просторная кухня-гостиная с панорамным остеклением вид на Нагорный парк и центр города Из спален — вид на проспект Красноармейский Вечером — впечатляющая панорама ночного города и иллюминации Высота потолков — 3,3 м Возможности планировочных решений: 3 санузла или 2 санузла + гардеробная Квартира без ремонта, что позволяет реализовать любое дизайнерское решение без компромиссов. Юридическая чистота: Без долгов и обременений Материнский капитал не использовался Быстрый выход на сделку Показ — по предварительной договорённости. Звоните — с удовольствием расскажем подробности и организуем просмотр. Такие видовые квартиры в центре города — редкое предложение.
Позвоните автору
Вам ответят на все вопросы

О квартире

Тип жилья

Вторичка

Общая площадь

124,4 м²

Жилая площадь

83 м²

Площадь кухни

17 м²

Высота потолков

3,3 м

Санузел

1 совмещенный, 1 раздельный

Вид из окон

На улицу

Ремонт

Без ремонта

О доме

Год постройки

2023

Строительная серия

Индивидуальный проект

Количество лифтов

1 грузовой

Тип перекрытий

Нет информации

Отопление

Нет информации

Аварийность

Нет

Спросите умного помощника
Получите экспертное мнение о жилье

Расположение

Ипотечный калькулятор
  • Базовая
  • Семейная
  • ИТ-ипотека
  • 20%
  • 30%
  • 40%
  • 50%
лет
  • 10 лет
  • 20 лет
  • 30 лет
Загружаем предложения от застройщика и банков
Помощь риелтора
Проверенный риелтор поможет купить или продать квартиру
18 999 000 ₽
Цена за метр
152 725 ₽/м²
Условия сделки
свободная продажа
Ипотека
возможна
Агентство недвижимости
Документы проверены
На Циан
7 лет
Объектов в работе
127