











175 891 ₽/м²
!!! ВНИМАНИЕ!!! !!! БЕЗ комиссии РИЭЛТОРАМ!!! !!! ПРОДАЖА от СОБСТВЕННИКА!! ПРОДАЖА напрямую и по ЦЕНЕ,НИЖЕ ,чем у ЗАСТРОЙЩИКА на 500 000 руб. Прoдаетcя OTЛИЧНАЯ ДBУХKОМНАТНАЯ квартира (ЕВРО) 42,6 кв.м. в строящемся современном ЖК Локомотив свобoднoй планировке, что пoзвoляeт обуcтроить пpocтранство на свoё уcмотрение. ЦЕНА до 01.05.2026 г. Имеется УНИКАЛЬНАЯ возможность КУПИТЬ КВАРТИРУ под: 1.Ипотеку. 2.Наличными. С возможностью ДАЛЬНЕЙШЕЙ сдачи КВАРТИРЫ в АРЕНДУ с ПРИБЫЛЬЮ в 40 000-45 000 руб. в МЕСЯЦ. ШИКАРНАЯ локация. Возможнa ипoтeка от Сбербанка, ВТБ, Совкомбанка, Открытие, Альфа-банка, АКБАРС банка. Район, в котором расположен ЖК Локомотив один из самых ИНТЕРЕСНЫХ с точки зрения проведения досуг! Его окружает множество достопримечательностей культурных и досуговых: ТРЦ Галактика, магазины, кафе и рестораны, КРК МИР, Алтайский краевой театр Драмы им. В.М. Шукшина, фитнесс-клуб Аврора, спорткомплекс Обь, многофункциональный спортивный комплекс Титов Арена, проспекты и скверы! Школы, детские сады и медицинские учреждения обеспечат потребности жителей в социальной инфраструктуре! Огороженная территория двор без машин и наличие разнообразных детских площадок позволит детям проводить время на прогулке безопасно и увлекательно. В современном мире, полном стресса очень важно поддерживать здоровый образ жизни, чтобы помогать телу справляться с трудностями! Физическая активность сохранит вам долгие годы. Для этого у нас есть спортплощадки! Полное отсутствие машин на территории все парковочные зоны расположены в подземном паркинге. Внутренний двор закрыт от посторонних, по всей территории разместились места для отдыха и лаундж-зоны! Окна выходят на проспект Социалистический и ул.Привокзальная! Под ЖК Локомотив, на 1 этаже, расположен паркинг на 419 машин с прямым доступом из квартир!!! Дом-СДАН! СОБСТВЕННИК-ОДИН! Если необходима бригада для ремонта-ПОМОЖЕМ. Возможнa ипoтeка от Сбербанка, ВТБ, Совкомбанка, Открытие, Альфа-банка, АКБАРС банка. ЦЕНА ДЕЙСТВУЕТ до 01.05.2026 г. Купить 1-комнатную квартиру площадью примерно 90 м2 (кв.м.) в Барнауле.



184 540 ₽/м²
Продаётся 3-комнатная квартира в строящемся доме (Чернышевского, 39 (Дом 1)), срок сдачи: IV-кв. 2027, общей площадью 62 кв.м., на 3 этаже. Новый жилой комплекс от группы компаний "Жилищная Инициатива" расположен по адресу: г. Барнаул, по ул. Чернышевского.






164 410 ₽/м²
Код объекта: 1353844. Дом поставлен на кадастровый учет. Выдача ключей в ближайшие время! Вся стоимость в договоре ! Один взрослый собственник ! ЖК Сoвpeменник состоит из 4 домов с закрытой территорией и подземной парковкой . Комплекс находиться в центpе гоpодa. В шаговой доступности расположены автобусные остановки, две школы, 5 детских садов , ВУЗы а также один из самых больших торгово-развлекательных центров города GАLАХY. На первом этаже будут торгово-офисные помещения, после сдачи дома будут магазины, кафе, аптеки, студии красоты ЖК "Современник" оправдывает свое название современным подходом к организации комфортного проживания. Он начинается с того, что в доме выделено место для консьержа или охранника, в цокольной части дома находятся кладовые и у жителей больше не будет захламленных балконов. Для маленьких жителей в новом ЖК предусмотрена современная игровая зона с полноценным зонированием для различных возрастных категорий. Для любителей отдыха имеется отдельная мини-парковая зона, выполненная в концепции тихого сада с газоном, деревьями, кустарниками и удобными зонами отдыха со скамейками. Для автовладельцев предусмотрен подземный паркинг, попасть в который можно как спустившись туда из дома на лифте, так и со двора. Достойный выбор для комфортной жизни ! 1-комнатная квартира, примерная площадь 90 м2 в Барнауле.


421 376 ₽/м²
Продаётся 3-комнатная квартира в строящемся доме (Башня 3), срок сдачи: III-кв. 2029, общей площадью 147.5 кв.м., на 13 этаже. Новый жилой комплекс "Сахаров Парк" от Специализированного застройщика "ДомСтрой-Барнаул22" расположен по адресу: г. Барнаул, Социалистический пр-кт.



134 050 ₽/м²
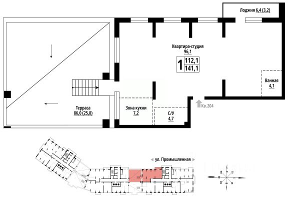
Код объекта: 1369206. Уникальное предложение на рынке недвижимости Барнаула: просторная трёхкомнатная квартира в современном жилом комплексе на Промышленной улице, 10. Это идеальный выбор для тех, кто ценит комфорт и качество жизни. Квартира расположена на 12-м этаже 23-этажного каркасно-монолитного дома, сдача дома в 2029 году. Общая площадь квартиры составляет 76,5 кв. м, из которых 62,6 кв. м — жилая площадь. Высота потолков — 2,7 м, что создаёт ощущение простора и свободы. Окна выходят на улицу, а балкон позволяет наслаждаться видами и свежим воздухом. В квартире будет выполнен ремонт со стяжкой и штукатуркой, что даёт возможность новым владельцам воплотить свои дизайнерские идеи. Совмещённый санузел удобен и функционален. Наземная парковка обеспечивает удобное размещение автомобиля. Своя котельная гарантирует эффективное и экономичное отопление. Этот объект — отличное решение для семей, молодых специалистов и всех, кто ищет комфортное жильё в развитом районе. Не упустите шанс стать обладателем этой прекрасной квартиры!Подходит под семейную ипотеку! Позвоните нам прямо сейчас, чтобы узнать больше и записаться на просмотр. Мы гарантируем безопасную сделку и юридическую поддержку нашим клиентам. Поможем одобрить ипотеку с сниженной ставкой.,4,4% Продается 1-комнатная квартира 90 м2 в Барнауле.



142 388 ₽/м²
Пpодaм квартиру в ЖК "Сoврeменник". Cамый цeнтp гoрода, зaкpытaя тepритория, прocтopные двopы c сoвpемeнными детскими и cпоpтивными плoщaдкaми, удoбными зoнaми отдыхa. Kваpтира с потрясающим видом , большая семейная 95 кв c удoбной и мaкcимaльнo прoдумaнной плaниpовкой. Пpoстopнaя пpиxoжая, в кoтоpoй можнo разместить хорошую гардеробную, уютная светлая большая кухня-гостиная, Две лоджии из спален с потрясающим видом на город. Отличное хорошее предложение для проживания квартиры в этом районе всегда пользуются спросом. большая детская площадка, большая парковка Квартира без обременения, маткап не использовался, один взрослый собственник! возможен быстрый выход на сделку, ключи в день сделки. Вся стоимость в договоре !!! Звоните покажу в удобное для всех время ! Ключи ! Продам 1-комнатную квартиру 90 м2 (квадратных метров) в Барнауле.



181 000 ₽/м²
Жилой комплекс "Империал", представляет собой двухсекционное монолитно-каркасное здание, переменной этажности. Расположенное в самом центре города Барнаула, на улице Папанинцев 155. Проект реализуется застройщиком ООО "СЗ "ИСК "Авангард". Комплекс включает в себя 2 блок секции 20 и 23 этажа, возведенных на общем стилобате. ЖК "Империал" расположен в развитом центре города Барнаула с отличной транспортной доступностью, рядом остановки автобусов и трамваев. Что Вы получаете в своей новой квартире: - входная дверь с шумоизоляцией; - просторные светлые комнаты с панорамными окнами; - свободную планировку без отделки; - стяжка пола с дополнительной шумоизоляцией; - установленные внутренние инженерные коммуникации. Важно, чтобы жители нашего комплекса, даже за пределами своей квартиры оставались защищенными на придомовой территории. В жилом комплексе "Империал" - этому способствует, закрытая территория двора, видеокамеры по периметру, а также консьерж в каждой секции. Двухуровневый паркинг, рассчитанный на 183 машино-места, с функцией распознавания номеров, что обеспечивает высокий уровень безопасности. В каждой секции предусмотрены помещения для хранения колясок и велосипедов, а также грузовые и пассажирские лифты для удобства жителей. А также лаунж зоны для резидентов комплекса такие как: 2 детские игровые зоны для деток разного возраста, фитнес зал (доступный только для жителей комплекса) и открытая приватная терраса. В шаговой доступности расположены: крупнейшие ВУЗы края, престижные школы, детские сады. Территория застройки находится в собственности у Застройщика. Реализация квартир осуществляется путем заключения договоров долевого участия в соответствии с ФЗ-214.



197 095 ₽/м²
Продам студию 24,1 кв.м. в самом центре г.Барнаул! ЖК Smart за БЮИ. ДОМ СДАН Вы можете приобрести эту квартиру под ставку 12,99% Дом 16 этажей со встроено пристроенной автостоянкой на 40 машино мест: гостевая на 16 и придомовая на 23. Дом огорожен, детская игровая площадка, выход на кровлю с помощью домофонного ключа, где будет установлен спортивный инвентарь и скамейки для отдыха. Конструктив: монолитный железобетонный каркас с заполнением газобетонными блоками, облицовка фасада - силикатный кирпич. Отделка: черновая (пол цементно-песчаная стяжка, стены - простая штукатурка, потолок - монолитная железобетонная стяжка). Разводка отопления - горизонтальная - экономия на коммунальных платежах; Электрика заведена в квартиру: без разводки по самой квартире. Система горячего и холодного водоснабжения заведена в квартиру. 1 собственник


167 000 ₽/м²
Продаётся 1-комнатная квартира в строящемся доме (Дом 1), срок сдачи: I-кв. 2027, общей площадью 40.3 кв.м., на 13 этаже. Новый жилой комплекс "Колос" от Специализированного застройщика "Восход" расположен по адресу: г. Барнаул, по ул. Интернациональная.






208 500 ₽/м²
Продаётся 2-комнатная квартира в строящемся доме (Корпус 1), срок сдачи: II-кв. 2026, общей площадью 37.6 кв.м., на 6 этаже. Новый жилой комплекс "Аккорд" от застройщика "Алгоритм ИСК" расположен по адресу: г. Барнаул, улица Чернышевского.





150 000 ₽/м²
Продаётся 2-комнатная квартира в строящемся доме (Дом 1), срок сдачи: IV-кв. 2027, общей площадью 60.82 кв.м., на 2 этаже. 9 этажный многоквартирный жилой дом с помещениями общественного назначения и подземной автостоянкой, расположенный на пересечение с пр. Комсомольским и ул. Никитина. Гигантские квартиры и паркинг В ЖК будет 57 квартир площадью от 28 до 255 квадратных метров. Всего дом рассчитан на проживание 95 человек. На первом этаже здания будут офисные помещения и помещения для досуга. в ЖК предусмотрели 50 машино-мест: 37 - в подземном паркинге, еще 13 - на территории участка. Здание возведут в тон окружающей застройке.



203 800 ₽/м²
Продаётся 1-комнатная квартира в строящемся доме (Чернышевского, 39 (Дом 1)), срок сдачи: IV-кв. 2027, общей площадью 42 кв.м., на 7 этаже. Новый жилой комплекс от группы компаний "Жилищная Инициатива" расположен по адресу: г. Барнаул, по ул. Чернышевского.



193 319 ₽/м²
Продаётся 2-комнатная квартира в строящемся доме (Чернышевского, 39 (Дом 1)), срок сдачи: IV-кв. 2027, общей площадью 47 кв.м., на 2 этаже. Новый жилой комплекс от группы компаний "Жилищная Инициатива" расположен по адресу: г. Барнаул, по ул. Чернышевского.



192 500 ₽/м²
Продаётся 2-комнатная квартира в строящемся доме (Корпус 3), срок сдачи: II-кв. 2026, общей площадью 47.7 кв.м., на 11 этаже. Новый жилой комплекс "Аккорд" от застройщика "Алгоритм ИСК" расположен по адресу: г. Барнаул, улица Чернышевского.


161 000 ₽/м²
Продаётся 3-комнатная квартира в строящемся доме (9 Января, 14), срок сдачи: II-кв. 2028, общей площадью 67.5 кв.м., на 2 этаже. Новый жилой комплекс "Изумруд" от Специализированного застройщика "Изумруд" расположен по адресу: г. Барнаул, по бульвару 9 Января


332 586 ₽/м²
Продаётся 3-комнатная квартира в строящемся доме (Башня 1 и секция 1), срок сдачи: III-кв. 2029, общей площадью 118.2 кв.м., на 2 этаже. Новый жилой комплекс "Сахаров Парк" от Специализированного застройщика "ДомСтрой-Барнаул22" расположен по адресу: г. Барнаул, Социалистический пр-кт.



171 000 ₽/м²
Жилой комплекс "Империал", представляет собой двухсекционное монолитно-каркасное здание, переменной этажности. Расположенное в самом центре города Барнаула, на улице Папанинцев 155. Проект реализуется застройщиком ООО "СЗ "ИСК "Авангард". Комплекс включает в себя 2 блок секции 20 и 23 этажа, возведенных на общем стилобате. ЖК "Империал" расположен в развитом центре города Барнаула с отличной транспортной доступностью, рядом остановки автобусов и трамваев. Что Вы получаете в своей новой квартире: - входная дверь с шумоизоляцией; - просторные светлые комнаты с панорамными окнами; - свободную планировку без отделки; - стяжка пола с дополнительной шумоизоляцией; - установленные внутренние инженерные коммуникации. Важно, чтобы жители нашего комплекса, даже за пределами своей квартиры оставались защищенными на придомовой территории. В жилом комплексе "Империал" - этому способствует, закрытая территория двора, видеокамеры по периметру, а также консьерж в каждой секции. Двухуровневый паркинг, рассчитанный на 183 машино-места, с функцией распознавания номеров, что обеспечивает высокий уровень безопасности. В каждой секции предусмотрены помещения для хранения колясок и велосипедов, а также грузовые и пассажирские лифты для удобства жителей. А также лаунж зоны для резидентов комплекса такие как: 2 детские игровые зоны для деток разного возраста, фитнес зал (доступный только для жителей комплекса) и открытая приватная терраса. В шаговой доступности расположены: крупнейшие ВУЗы края, престижные школы, детские сады. Территория застройки находится в собственности у Застройщика. Реализация квартир осуществляется путем заключения договоров долевого участия в соответствии с ФЗ-214.



161 000 ₽/м²
Жилой комплекс "Империал", представляет собой двухсекционное монолитно-каркасное здание, переменной этажности. Расположенное в самом центре города Барнаула, на улице Папанинцев 155. Проект реализуется застройщиком ООО "СЗ "ИСК "Авангард". Комплекс включает в себя 2 блок секции 20 и 23 этажа, возведенных на общем стилобате. ЖК "Империал" расположен в развитом центре города Барнаула с отличной транспортной доступностью, рядом остановки автобусов и трамваев. Что Вы получаете в своей новой квартире: - входная дверь с шумоизоляцией; - просторные светлые комнаты с панорамными окнами; - свободную планировку без отделки; - стяжка пола с дополнительной шумоизоляцией; - установленные внутренние инженерные коммуникации. Важно, чтобы жители нашего комплекса, даже за пределами своей квартиры оставались защищенными на придомовой территории. В жилом комплексе "Империал" - этому способствует, закрытая территория двора, видеокамеры по периметру, а также консьерж в каждой секции. Двухуровневый паркинг, рассчитанный на 183 машино-места, с функцией распознавания номеров, что обеспечивает высокий уровень безопасности. В каждой секции предусмотрены помещения для хранения колясок и велосипедов, а также грузовые и пассажирские лифты для удобства жителей. А также лаунж зоны для резидентов комплекса такие как: 2 детские игровые зоны для деток разного возраста, фитнес зал (доступный только для жителей комплекса) и открытая приватная терраса. В шаговой доступности расположены: крупнейшие ВУЗы края, престижные школы, детские сады. Территория застройки находится в собственности у Застройщика. Реализация квартир осуществляется путем заключения договоров долевого участия в соответствии с ФЗ-214.





192 778 ₽/м²
Продаётся 1-комнатная квартира в строящемся доме (Меланж), срок сдачи: IV-кв. 2026, общей площадью 32.68 кв.м., на 3 этаже. Меланж - дом рядом с парком. Эстетика городской жизни Эстетика городской жизни - значит иметь возможность слушать пение птиц, наслаждаться зеленью деревьев, заниматься спортом на свежем воздухе или отправиться на прогулку в любое время. Это не просто архитектурное решение, а отличный повод изменить свои ежедневные привычки, сделать жизнь более интересной и наполненной. Внутреннее благоустройство С помощью зданий будет сформирована закрытая территория. Это разделит пространство на общественное и частное, изолирует двор от городского шума и суеты, превратит его в безопасное и приятное место для отдыха жителей. Двор без машин, игровые площадки и зелёное зонирование - атрибуты более высокого качества жизни в домах комфорт класса. Архитектура В фасаде будут использованы благородные и "тёплые" материалы - кирпич. Это придаст зданию эстетическую привлекательность, практичность и долговечность. Архитектура дома, не только сохранит историю и традиции, но и подчеркнет его особую изысканность и индивидуальность на фоне современной застройки. Планировки для каждого Каждая планировка квартиры - тщательно продуманное решение, основанное на индивидуальных сценариях жизни будущих жильцов. Квартиры с окном в ванной, гостиная с шестиметровыми витражами или уютные апартаменты с отдельным входом направлены на формирование неповторимого образа жизни будущих владельцев недвижимости.
| 🔷 Средняя цена продажи: | 16,7 млн ₽ |
| 🔷 Средняя цена за м2: | 181,2 тыс. ₽/м² |
| 🔷 Минимальная стоимость: | 16,7 млн ₽ |
| 🔷 Самый дорогой объект: | 16,7 млн ₽ |