

















165 000 ₽/м²
Продаётся 1-комнатная квартира в строящемся доме (Дом 1), срок сдачи: I-кв. 2027, общей площадью 39.7 кв.м., на 12 этаже. Новый жилой комплекс "Колос" от Специализированного застройщика "Восход" расположен по адресу: г. Барнаул, по ул. Интернациональная.



190 007 ₽/м²
Код объекта: 1369243. Шикарная, просторная квартира от застройщика в новом ЖК Вышка. Самодостаточный зеленый квартал, который объединил в себе возможности городской жизни и приватность природы. Эстетичный квартал в статусной локации с комплексной внутренней инфраструктурой, которая отвечает всем требованиям и желаниям городского образа жизни. Собственная аллея, бассейн, детский сад, фитнес-центр, кофейня и Трасса Здоровья в пешей доступности. Помогу с оформлением документов и ипотеки!ЗВОНИТЕ!!! В комплексе представлен ассортимент квартир для любого сценария жизни: от квартир с собственной террасой, окном в ванной и камином до пентхаусов. Особое внимание уделяется автовладельцам, ведь здесь представлен подземный паркинг с доступом прямо из подъезда, с естественным витражным остеклением для хранения автомобиля. Для удобства автовладельцев в паркинге также предусмотрены электрозарядки и автомоечный комплекс. АН Города, официальный партнер строительной компании Мой Дом.. Номер в базе: 10849266. Код пользователя: 140069. Район: Центральный. 1-комнатной квартиры первичка в районе Центральный в городе Барнаул.






202 000 ₽/м²
Жилой комплекс "Империал", представляет собой двухсекционное монолитно-каркасное здание, переменной этажности. Расположенное в самом центре города Барнаула, на улице Папанинцев 155. Проект реализуется застройщиком ООО "СЗ "ИСК "Авангард". Комплекс включает в себя 2 блок секции 20 и 23 этажа, возведенных на общем стилобате. ЖК "Империал" расположен в развитом центре города Барнаула с отличной транспортной доступностью, рядом остановки автобусов и трамваев. Что Вы получаете в своей новой квартире: - входная дверь с шумоизоляцией; - просторные светлые комнаты с панорамными окнами; - свободную планировку без отделки; - стяжка пола с дополнительной шумоизоляцией; - установленные внутренние инженерные коммуникации. Важно, чтобы жители нашего комплекса, даже за пределами своей квартиры оставались защищенными на придомовой территории. В жилом комплексе "Империал" - этому способствует, закрытая территория двора, видеокамеры по периметру, а также консьерж в каждой секции. Двухуровневый паркинг, рассчитанный на 183 машино-места, с функцией распознавания номеров, что обеспечивает высокий уровень безопасности. В каждой секции предусмотрены помещения для хранения колясок и велосипедов, а также грузовые и пассажирские лифты для удобства жителей. А также лаунж зоны для резидентов комплекса такие как: 2 детские игровые зоны для деток разного возраста, фитнес зал (доступный только для жителей комплекса) и открытая приватная терраса. В шаговой доступности расположены: крупнейшие ВУЗы края, престижные школы, детские сады. Территория застройки находится в собственности у Застройщика. Реализация квартир осуществляется путем заключения договоров долевого участия в соответствии с ФЗ-214. Продам 1-комнатную квартиру первичка в районе Центральный в городе Барнаул.






215 050 ₽/м²
Продаётся 1-комнатная квартира в строящемся доме (Чернышевского, 39 (Дом 1)), срок сдачи: IV-кв. 2027, общей площадью 33 кв.м., на 5 этаже. Новый жилой комплекс от группы компаний "Жилищная Инициатива" расположен по адресу: г. Барнаул, по ул. Чернышевского.









221 964 ₽/м²
В продаже 1-комнатная квартира в ЖК Вечера. Дом бизнес-класса, состоит из 6 блок секций разной этажности: от 6 до 10 этажей, кирпичный, своя газовая котельная. Двор без машин с детскими площадками и спортивным комплексом. Окна выходят во двор в сторону Социалистического проспекта. Один взрослый собственник. Быстрый выход на сделку.












173 697 ₽/м²
Продаётся 1-комнатная квартира в строящемся доме (6-я Нагорная, 15Г/12), срок сдачи: II-кв. 2026, общей площадью 40.3 кв.м., на 5 этаже. Новый жилой комплекс "Шервуд" от группы компаний "Союз" расположен по адресу: г. Барнаул, по ул. 6-я Нагорная.






215 300 ₽/м²
Продаётся 1-комнатная квартира в строящемся доме (Чернышевского, 39 (Дом 1)), срок сдачи: IV-кв. 2027, общей площадью 32 кв.м., на 1 этаже. Новый жилой комплекс от группы компаний "Жилищная Инициатива" расположен по адресу: г. Барнаул, по ул. Чернышевского.





















170 000 ₽/м²
Продаётся уютная однокомнатная квартира общей площадью 40.3 квадратных метров, расположенная на седьмом этаже двадцати трёхэтажного дома по адресу город Барнаул, 6-я Нагорная улица, дом 15г/12. Данный вариант отлично подойдёт тем, кто ценит комфорт и удобство жилой площади: жилая часть составляет приятные 15 квадратных метров, а кухня занимает целых 11 квадратных метров, предоставляя достаточно места как для приготовления пищи, так и для совместных семейных ужинов. Район обладает развитой инфраструктурой для комфортной жизни: рядом расположены продуктовые магазины Семья и минимаркет, что позволит вам всегда иметь под рукой необходимые продукты. Аптека Эконом обеспечит вас всем необходимым для здоровья и благополучия детей, а их воспитание и развитие поддержат близлежащие детские сады Рыжий кот, другие дошкольные учреждения и детский центр. Для любителей начать день с бодрящего кофе или приятно провести вечер за чашечкой чая поблизости находятся кофейня Бодрый день и пекарня Хлебушка. Приобретая эту квартиру, вы выбираете гармоничное сочетание удобства расположения, комфорта жилого пространства и приятного окружения. Купить 1-комнатную квартиру первичка в районе Центральный в городе Барнаул.












174 949 ₽/м²
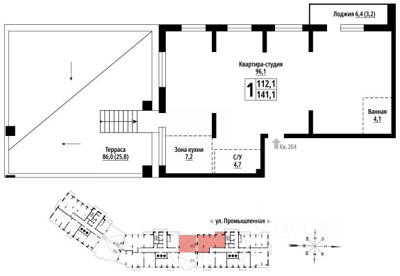
Продаётся 1-комнатная квартира в строящемся доме (Дом 10), срок сдачи: IV-кв. 2029, общей площадью 41 кв.м., на 2 этаже. Новый жилой комплекс "Родные берега" от застройщика "Жилищная Инициатива" расположен по адресу: Алтайский край, г. Барнаул, Центральный район , улица Промышленная











180 000 ₽/м²
Продаётся 1-комнатная квартира в строящемся доме (БС 4), срок сдачи: IV-кв. 2028, общей площадью 37.99 кв.м., на 3 этаже. Новый жилой комплекс "Фортлайф" от группы компаний "Строительный Камень ИСК" расположен по адресу: г. Барнаул, по ул. пр-кт Комсомольский.









164 000 ₽/м²
Продаётся 1-комнатная квартира в строящемся доме (Дом 1), срок сдачи: I-кв. 2027, общей площадью 41.2 кв.м., на 12 этаже. Новый жилой комплекс "Колос" от Специализированного застройщика "Восход" расположен по адресу: г. Барнаул, по ул. Интернациональная.



150 500 ₽/м²
Продаётся 1-комнатная квартира в строящемся доме (Дом 1), срок сдачи: I-кв. 2027, общей площадью 46.7 кв.м., на 2 этаже. Новый жилой комплекс "Колос" от Специализированного застройщика "Восход" расположен по адресу: г. Барнаул, по ул. Интернациональная.






203 800 ₽/м²
Продаётся 1-комнатная квартира в строящемся доме (Чернышевского, 39 (Дом 1)), срок сдачи: IV-кв. 2027, общей площадью 42 кв.м., на 7 этаже. Новый жилой комплекс от группы компаний "Жилищная Инициатива" расположен по адресу: г. Барнаул, по ул. Чернышевского.





185 000 ₽/м²
Продаётся 1-комнатная квартира в строящемся доме (БС 4), срок сдачи: IV-кв. 2028, общей площадью 37.99 кв.м., на 11 этаже. Новый жилой комплекс "Фортлайф" от группы компаний "Строительный Камень ИСК" расположен по адресу: г. Барнаул, по ул. пр-кт Комсомольский.



167 000 ₽/м²
Продаётся 1-комнатная квартира в строящемся доме (Дом 1), срок сдачи: I-кв. 2027, общей площадью 40.3 кв.м., на 13 этаже. Новый жилой комплекс "Колос" от Специализированного застройщика "Восход" расположен по адресу: г. Барнаул, по ул. Интернациональная.



222 000 ₽/м²
Продаётся 1-комнатная квартира в строящемся доме (Папанинцев, 155 (Блок-секция 1-2)), срок сдачи: III-кв. 2028, общей площадью 30.5 кв.м., на 18 этаже. Новый жилой комплекс "Империал" от группы компаний "Авангард" расположен по адресу: г. Барнаул, по ул. Папанинцев.






210 338 ₽/м²
Продаётся 1-комнатная квартира в строящемся доме (Чернышевского, 39 (Дом 1)), срок сдачи: IV-кв. 2027, общей площадью 36 кв.м., на 1 этаже. Новый жилой комплекс от группы компаний "Жилищная Инициатива" расположен по адресу: г. Барнаул, по ул. Чернышевского.
| 🔷 Средняя цена продажи: | 7,3 млн ₽ |
| 🔷 Средняя цена за м2: | 180 тыс. ₽/м² |
| 🔷 Минимальная стоимость: | 4,6 млн ₽ |
| 🔷 Самый дорогой объект: | 18,6 млн ₽ |