


181 000 ₽/м²
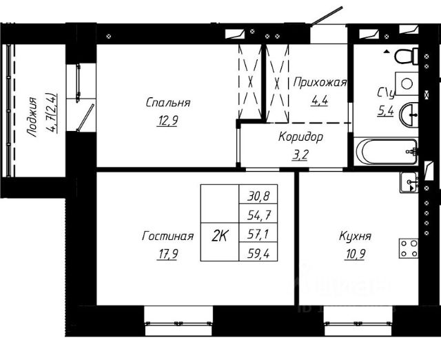
Жилой комплекс "Империал", представляет собой двухсекционное монолитно-каркасное здание, переменной этажности. Расположенное в самом центре города Барнаула, на улице Папанинцев 155. Проект реализуется застройщиком ООО "СЗ "ИСК "Авангард". Комплекс включает в себя 2 блок секции 20 и 23 этажа, возведенных на общем стилобате. ЖК "Империал" расположен в развитом центре города Барнаула с отличной транспортной доступностью, рядом остановки автобусов и трамваев. Что Вы получаете в своей новой квартире: - входная дверь с шумоизоляцией; - просторные светлые комнаты с панорамными окнами; - свободную планировку без отделки; - стяжка пола с дополнительной шумоизоляцией; - установленные внутренние инженерные коммуникации. Важно, чтобы жители нашего комплекса, даже за пределами своей квартиры оставались защищенными на придомовой территории. В жилом комплексе "Империал" - этому способствует, закрытая территория двора, видеокамеры по периметру, а также консьерж в каждой секции. Двухуровневый паркинг, рассчитанный на 183 машино-места, с функцией распознавания номеров, что обеспечивает высокий уровень безопасности. В каждой секции предусмотрены помещения для хранения колясок и велосипедов, а также грузовые и пассажирские лифты для удобства жителей. А также лаунж зоны для резидентов комплекса такие как: 2 детские игровые зоны для деток разного возраста, фитнес зал (доступный только для жителей комплекса) и открытая приватная терраса. В шаговой доступности расположены: крупнейшие ВУЗы края, престижные школы, детские сады. Территория застройки находится в собственности у Застройщика. Реализация квартир осуществляется путем заключения договоров долевого участия в соответствии с ФЗ-214. Продам 2-комнатную квартиру до 10 млн. рублей в Барнауле.














































































































