Код объекта: 1961293.
УНИКАЛЬНАЯ КВАРТИРА В ЦЕНТРЕ С ВИДОМ НА РЕЛИКТОВЫЙ ЛЕС ДЛЯ ЖИЗНИ И БИЗНЕСА
Приветствую, друзья!
Ищете не просто квартиру, а настоящий дом вашей мечты в самом сердце Барнаула? Тогда это объявление именно для вас!
Нажмите скорее , чтобы сохранить объявление у вас в избранных сообщениях.
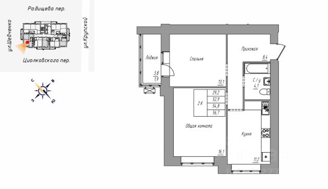
Представляю вашему вниманию уникальную квартиру-студию, которая гармонично сочетает в себе динамику центральной жизни и умиротворение природы.
Эта квартира отличный проект для инвестиций. Спрос на аренду в центре Барнаула всегда высокий, а учитывая все преимущества расположения, вы можете быть уверены в стабильном доходе. Прекрасное решение для сдачи студентам, молодым специалистам или как временное жилье для приезжих.
И идеальный выбор, для людей мечтающих жить в центре города рядом с работой и учебой, но в тоже время в тихом спальном районе. Представьте: вы живете в центре Барнаула, где все под рукой любимый офис или ВУЗ, магазины, детские центры, реликтовый сосновый бор с живописной тропой здоровья! При этом ваш район оказывается тихим, спокойным и безопасным, где так приятно слышать пение птиц.
А теперь о самой квартире это нечто особенное!
Просторная и очень тёплая: благодаря системе "тёплый пол".
Панорамное остекление лоджии: с 7-камерным стеклопакетом наслаждайтесь прекрасным видом на живописные закаты с седьмого этажа. Лес как на ладони, никаких помех!
Функциональность наше всё: здесь есть всё необходимое для комфортной жизни. Продуманная система хранения с вместительной гардеробной и шкафом-купе, плюс большая и функциональная угловая кухня, где будет приятно готовить любимые блюда.
Бонусный уголок для ваших идей! В квартире есть особое место, которое вы можете оборудовать под уютный кабинет с прекрасным видом из окна на лес, или использовать его под дополнительные системы хранения.
Не упустите шанс обрести гармонию! Те, кто хочет получить лучшее от двух миров городского комфорта и природного спокойствия - это ваш шанс обрести истинную гармонию.
Воплощайте ваши мечты в реальность! Приходите на просмотр, уверена, вы влюбитесь в эту квартиру так же, как и я!
Друзья, пишите все вопросы в сообщениях сервиса, а лучше звоните прямо сейчас!
С уважением,
Ваш персональный менеджер по недвижимости Анастасия Яковенко