











151 786 ₽/м²
Продается изолированная 2-комнатная квартира в кирпичном доме в самом центре Барнаула, ул.Пролетарская, 15. Окна выходят на Обь. Плюсы, которые оценят практичные люди: ОЧЕНЬ теплая (зимой бывает жарко, экономим на отоплении). Удобная планировка: два санузла, просторная кухня, большая прихожая. Ремонт НАЧАТ: санузлы без отделки — это ВАШ ШАНС сделать все с нуля под свой вкус, без переделок и лишних затрат! В подарок остается отличный, вместительный кух.гарнитур. Все остальное по договоренности. Отличная локация, развитая инфраструктура. Консьерж. Закрытый двор под охраной. Во дворе много парковочных мест, игровая дет.площадка с футбольным полем. Два пассажирских лифта и один грузовой ,что ни когда не бывает проблем с ожиданием. Квартира готова к новоселью и ждет своих хозяев! Один взрослый собственник! Ни каких долей и проблем! Подходит под все виды расчета! Цена приятная! Подробности и просмотр по предварительной записи! Помощь в оформлении ипотеки. Продам 2-комнатную квартиру с евроремонтом в районе Центральный в городе Барнаул.









159 091 ₽/м²
Продается евродвухкомнатная квартира с современным ремонтом в Барнауле на улице Никитина, 107, ЖК Plaza. Квартира расположена на 10 этаже 16-этажного кирпичного дома, построенного в 2018 году. Общая площадь составляет 55 кв. м, из которых 40 кв. м — жилая площадь и 5 кв. м — кухня. В квартире красивый панорамный вид на город. Квартира с евроремонтом, что делает её сразу готовой для комфортного проживания. В комнатах современная мебель, а кухня оборудована необходимой техникой. Санузел совмещенный, оформлен в стильных тонах, создавая дополнительное ощущение простора. Лоджия утеплена и отделана. Полная комплектация! Заходи и живи! Дом в хорошем состоянии, оснащен двумя лифтами — пассажирским и грузовым. По периметру дома и предусмотрена наземная парковка, поэтому всегда найдется место для вашего автомобиля. В доме есть подземный паркинг. Дом находится в районе с развитой инфраструктурой - самый центр города! Удобная транспортная развязка позволяет без труда добраться до любой части города. В шаговой доступности остановки общественного транспорта, что делает передвижение по городу быстрым и удобным. С документами все в порядке. Один взрослый собственник. Возможна покупка в ипотеку. Все документы готовы к сделке, что гарантирует безопасность и прозрачность покупки. Полная стоимость в договоре. Не упустите возможность стать владельцем этой замечательной квартиры. Звоните и записывайтесь на просмотр, чтобы лично оценить все её преимущества! 2-комнатной квартиры с евроремонтом в районе Центральный в городе Барнаул.




272 969 ₽/м²
Продается просторная двухкомнатная квартира в Барнауле по адресу: Змеиногорский тракт, 69Лк2. Элитный, закрытый поселок с большой благоустроенной территорией в лесу и фонтаном. Общая площадь квартиры составляет 75.1 кв. м,(теплая лоджия 9,7м2) из которых 38 кв. м — жилая площадь, и 18.2 кв. м занимает кухня — отличное пространство для кулинарных экспериментов и семейных обедов. Квартира расположена на 8 этаже 9-этажного кирпичного дома. Высота потолков — 2.9 метра, что создает ощущение простора и свободы. Квартира с качественным евроремонтом, готова к проживанию. В интерьере использованы современные материалы и стильные решения. Светлая и уютная гостиная, укомплектованная необходимой мебелью, станет отличным местом для отдыха. Санузел совмещенный, оборудован всей необходимой сантехникой. Из окон открывается вид как на улицу, так и во двор, а наличие лоджии добавляет дополнительное пространство для отдыха или хранения. Дом в хорошем состоянии, подъезд чистый и ухоженный, консьерж. В наличии большой пассажирский лифт, поэтому подъем на 8 этаж не составит труда. Для автовладельцев предусмотрена закрытая наземная парковка, а так же гаражный комплекс, поэтому всегда можно найти место для своего автомобиля. В близкой доступности находятся частные детские сады, Барнаульская классическая школа, клиники и магазины, что делает проживание в этом районе особенно удобным для семей с детьми. Отличная транспортная доступность позволяет быстро добраться до любой точки города. Квартира продается по договору купли-продажи. Возможна ипотека. Все документы готовы к сделке, без обременений и юридических сложностей. Приглашаем вас на просмотр этой замечательной квартиры. Свяжитесь с нами, чтобы договориться о времени визита. Не упустите возможность стать владельцем уютного и современного жилья в одном из лучших районов Барнаула! Продается 2-комнатная квартира с евроремонтом в районе Центральный в городе Барнаул.









188 290 ₽/м²
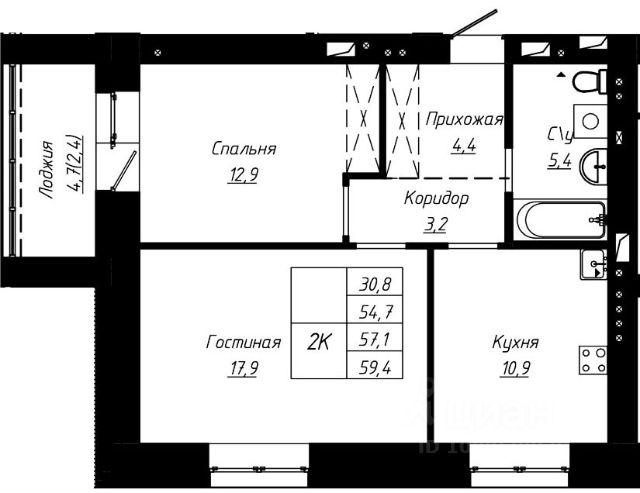
Продается 2-х комнатная квартира на шестом этаже 25-ти этажного монолитного дома в центре города, в шаговой доступности Гимназия 22, 122, 27, Лицей 129, детские сады (в т. ч. специализированные), торговые и офисные центры, спорт комплексы, остановки обществ. транспорта и др. Квартира состоит из 2-х просторных изолированных комнат и отдельной кухней, просторным коридором, совмещенным санузлом (установлен водонагреватель). Новому владельцу остается кухонный гарнитур со встроенной бытовой техникой (вытяжка, духовой шкаф, варочная поверхность), вместительная система хранения в коридоре. Дом оборудован двумя пассажирскими лифтами и мусоропроводом, что добавляет удобства в повседневной жизни. И з окон открывается вид во двор, где расположена детская площадка, предусмотрена открытая парковка во дворе. Возможна покупка в ипотеку. От нашего агентства помощь в оформлении ипотеки, страховании и др. Один взрослый собственник. Без обременений. #недвижимость#барнаул#квартира#центргорода#ипотек а Купить 2-комнатную квартиру с евроремонтом в районе Центральный в городе Барнаул.






180 000 ₽/м²
Жилой комплекс "Империал", представляет собой двухсекционное монолитно-каркасное здание, переменной этажности. Расположенное в самом центре города Барнаула, на улице Папанинцев 155. Проект реализуется застройщиком ООО "СЗ "ИСК "Авангард". Комплекс включает в себя 2 блок секции 20 и 23 этажа, возведенных на общем стилобате. ЖК "Империал" расположен в развитом центре города Барнаула с отличной транспортной доступностью, рядом остановки автобусов и трамваев. Что Вы получаете в своей новой квартире: - входная дверь с шумоизоляцией; - просторные светлые комнаты с панорамными окнами; - свободную планировку без отделки; - стяжка пола с дополнительной шумоизоляцией; - установленные внутренние инженерные коммуникации. Важно, чтобы жители нашего комплекса, даже за пределами своей квартиры оставались защищенными на придомовой территории. В жилом комплексе "Империал" - этому способствует, закрытая территория двора, видеокамеры по периметру, а также консьерж в каждой секции. Двухуровневый паркинг, рассчитанный на 183 машино-места, с функцией распознавания номеров, что обеспечивает высокий уровень безопасности. В каждой секции предусмотрены помещения для хранения колясок и велосипедов, а также грузовые и пассажирские лифты для удобства жителей. А также лаунж зоны для резидентов комплекса такие как: 2 детские игровые зоны для деток разного возраста, фитнес зал (доступный только для жителей комплекса) и открытая приватная терраса. В шаговой доступности расположены: крупнейшие ВУЗы края, престижные школы, детские сады. Территория застройки находится в собственности у Застройщика. Реализация квартир осуществляется путем заключения договоров долевого участия в соответствии с ФЗ-214. Купить 2-комнатную квартиру с евроремонтом В районе Центральный в городе Барнаул.



121 542 ₽/м²
Продается отличная 2-х комнатная квартира в кирпичном доме! Комнаты изолированные. Квартира теплая, светлая. Лоджия застеклена. Сделан хороший, качественный ремонт (делали для себя). Ванная - кафель. Окна пластиковые. Напольное покрытие - новый линолеум. Современные радиаторы отопления. Качественные, межкомнатные двери из массива сосны. Кухонный гарнитур с вытяжкой и плитой. В жилых комнатах - добротная мебель. Комфортный этаж. Солнечная сторона. Две железные двери. Соседи тихие. Домофон. Развитая инфраструктура: магазины, супермаркеты, детсад 164, лицей 122 и гимназия 22 . Общественный транспорт: автобус 41 и трамвай 4 и 5 Один взрослый собственник. Квартира без обременений и долгов. Подходит под ипотеку. Торг. Звоните и записывайтесь на просмотр. Проведу сделку под ключ!









202 618 ₽/м²
Арт. 118329362 Продается отличная 2-х комнатная квартира в прекрасном районе города, Змеиногорский тракт д. 69Л к5. В квартире выполнен качественный ремонт. лоджия с панорамным видом. Дом удобно располагается в глубине дворов это оградит вас от городской суеты. Ухоженная территория, рядом с домом лес. Чистый воздух. Во дворе детская площадка для игр. Автобусные и трамвайные остановки рядом с домом. Только в этой квартире Вы оцените настоящий домашний комфорт и уют!! Звоните! Такие квартиры покупают быстро. #объект в нашей базе 8428608#









189 800 ₽/м²
Продается просторная двухкомнатная квартира в современном кирпичном доме 2015 года постройки, расположенном в тихом центре города. Объект отличается продуманной планировкой с изолированными комнатами и раздельным санузлом, что обеспечивает комфорт для семьи или пары. Квартира выполнена с качественным ремонтом, балкон остеклен и отделан. Помещения светлые, теплые и тихие благодаря удачному расположению окон и состоянию дома. Ключевым преимуществом является собственная газовая котельная, гарантирующая круглогодичное бесперебойное снабжение горячей водой и значительную экономию на коммунальных платежах. Дом содержится в отличном состоянии, территория благоустроена и охраняется: предусмотрены электроприводные ворота, закрытый двор с зелеными насаждениями и детской площадкой. Решена проблема парковки — во дворе и в непосредственной близости от подъезда организованы удобные зоны для автомобилей. Локация сочетает спокойствие центрального района с отличной транспортной доступностью, основные магистрали и остановки общественного транспорта находятся в шаговой доступности. Это предложение представляет собой оптимальное сочетание современного комфорта, экономической выгоды и выгодного расположения. Код пользователя: 190752 Номер в базе: 10787285



138 937 ₽/м²
Двухкомнатная квартира в самом центре города!!!! Все что нужно для жизни рядом: магазины на любой вкус, банки, аптека, поликлиника, почта, театр Драмы, Алтайский государственный технический университет, медицинский университет, Администрация Алтайского кря, Титов Арена, кофейни, рестораны. Для прогулки для всей семьи в шаговой доступности сквер с фонтаном. Развитая инфраструктура позволяет уехать в любую часть города. Дом с закрытой территорией. В подъезде чисто, ремонт. Планировка квартиры: кухня гостиная просторная, светлая( три окна), спальня, ванная комната. Выполнен как ремонт: стяжка пола, перегородки из пеноблоков (шумоизоляция ), заменена проводка. История квартиры одна семья-более 20 лет в собственности. Продажа в связи с переездом в другой регион. ПРЕИМУЩЕСТВА 1. центр 2. для аренды спрос 3. для жизни все рядом 4. 4 квартиры на площадке 5. закрытая территория 6. парковка во дворе ВЫГОДНОЕ ВЛОЖЕНИЕ ДЕНЕГ!!!!!



259 348 ₽/м²
Код объекта: 2038128. Продается двухкомнатная квартира в жилом комплексе "ДОМЪ 80", застройщика "СОК" в новом доме в центре города. О доме: Материал: Монолитно-кирпичный Количество этажей: 8 этажей Год постройки: 2023 Количество квартир: 81 О квартире: Общая площадь: 46 Этаж: 5 Лоджия Качественный ремонт, делался для себя - хорошие обои, кварцевая плитка на полу, окна Фогель бронированные с УФ защитой, качественная сантехника, наружный блок для кондиционера на террасе, оборудованная гардеробная. Техника и мебель на гарантии. В квартире никто не жил. Заезжай и живи. Инфраструктура: В шаговой доступности лицей 129, поликлиники, торговые центры, мед университет, политехнический университет, юридический институт, остановки (можно без проблем уехать в любую точку города). Помогу одобрить ипотеку со сниженной ставкой 11,9%



198 163 ₽/м²
Продам квартиру в ЖК "Серебряный бор" - отличное предложение для тех, кто не готов погружаться в ремонт, подбор материалов и поиск ремонтных бригад. Квартира в отличном состоянии, с новым, стильным и качественным ремонтом, оснащена всей необходимой корпусной мебелью. Натяжные потолки с продуманным сценарием освещения, на стенах стильные бра и подсветки, долговечное современное покрытие пола - кварцвиниловый ламинат, широкоформатный керамогранит в с/у, межкомнатные двери с алюминиевыми кромками. На просторной лоджии декоративная штукатурка и керамогранит. В квартире хорошо продумана система хранения вещей - есть просторная гардеробная и вместительный шкаф в коридоре, большой шкаф в комнате. Дом расположен в новом, перспективном районе. В шаговой доступности ленточный бор, Лыжня здоровья - активность на свежем воздухе обеспечена круглый год. Есть все необходимые магазины, аптека, пункты выдачи Ozon и Wildberries, конечная остановка автобуса 80. Чистая продажа, быстрый выход на сделку, 1 взрослый собственник, маткап не использовался, есть обременение Сбербанка.



137 104 ₽/м²
Арт. 129161259 Продам двухкомнатную квартиру по ул.Партизанской 136 на первом этаже. В квартире сделан свежий ремонт, остается вся мебель. Очень удобное расположение, самая элитная 22 школа, садики и магазины. До остановки общественного транспорта 5 минут ходьбы. Никто не прописан, без долгов и обременений. Квартира теплая.



185 484 ₽/м²
Полноценная 2 комнатная квартира Кирпичный дом в центре города Комфортный средний этаж Просторные комнаты 17 и 16 кв.м. Отдельная кухня с лоджией и прекрасным видом на реку Обь Раздельный санузел В ванной установлена джакузи Гардеробная Квартира полностью готова к проживанию, остается вся мебель Закрытая территория (шлагбаум), консьерж, подземный паркинг Развитая инфраструктура Один взрослый собственник ! Приглашаем на просмотр ! Арт. 129251145



201 481 ₽/м²
Код объекта: 2119715. Продается эксклюзивная квартира в одном из самых престижных жилых комплексов города. Здесь статус подчеркивается тишиной соснового бора за окном и безупречным качеством кирпичного дома. КОМФОРТ И БЕЗОПАСНОСТЬ: • Закрытый двор: шлагбаум, видеонаблюдение, круглосуточный пост охраны. • Паркинг: Машина всегда в тепле под охраной. Также в продаже имеется паркоместо рядом с домом. • Здоровье: Лесная зона всего в 3 минутах — идеальный маршрут для пробежек или прогулок на свежем воздухе. ПОЧЕМУ ЭТА КВАРТИРА? • Малонаселенный дом: всего 1 подъезд, достойные соседи, атмосфера клубного дома. • Высота потолков 3 метра — ощущение объема и свободы в каждом квадратном метре. • Панорамная лоджия — идеальное место для утреннего кофе с видом на лесной массив. • Функционал: в планировке предусмотрены ниши под хранение и отдельная гардеробная. РЕМОНТ: Выполнен в стиле "Современная классика". Использованы качественные материалы, спокойная цветовая гамма. Квартира полностью готова к заселению — вам останется только перевезти вещи. ФИНАНСОВАЯ ВЫГОДА: Возможна покупка в ипотеку под 12,99%! Это уникальное предложение на текущем рынке, позволяющее существенно сэкономить на ежемесячных платежах. Звоните сегодня! Показ по предварительной записи в удобное для вас время.



128 755 ₽/м²
Продам 2-х комнатную квартиру улучшенной планировки в районе близко к центру на 9 этаже 10-этажного кирпичного дома 2002 года постройки. Квартира после косметического ремонта прошлого года: новая поклейка обоев, ламинат в жилой комнате и кухне, натяжные потолки, раздельный сан.узел в кафеле. Новый кухонный гарнитур входит в стоимость квартиры. Просторная лоджия с выходом из кухни — идеально подойдет для организации рабочего места, хранения вещей. Из гостинной также можете попасть на вторую лоджию. Кирпичный дом с чистым и ухоженным подъездом. 4 квартиры на этаже, современный лифт. В подъезде есть современная лифтовая техника и ухоженная площадка. Низкие коммунальные платежи благодаря свежести и габаритам дома, а также хорошей теплоизоляции. Окна и 2 лоджии выходят на частный сектор в сторону реки. Дом имеет тихий двор, окруженный общими зонами отдыха. Общая парковка, детская площадка, крытая зона с тренажерами. Внутренний двор граничит с Ленточным бором — прямой выход на лесные тропы для прогулок и отдыха. В пешей доступности: лыжные базы (АлтГПУ, "Локомотив"), детский сад 63, школа 24, магазины "Ярче", "Мария-Ра" и "Монеточка".В соседних домах расположены пункты выдачи "Озон" и "Вайлдберриз". Парковка: свободные места до вечера, есть платная охраняемая парковка с шлагбаумом и видеонаблюдением. Звоните, договаривайтесь о просмотре!Любые виды расчета! Поможем в одобрении ипотеки! Рядом с объектом находятся: 1 школа, 1 детский сад. Возможен обмен на вашу недвижимость. Возможна продажа в рассрочку. При звонке, пожалуйста, сообщите номер варианта - JV002022120034



181 883 ₽/м²
Арт. 134624789 Купи Евро 2х- комнатная квартира в кирпичном доме, сочетающая близость к центру города и лесному массиву, представляет собой формат жилья, объединяющий городской комфорт и экологичность. Квартира находится в престижном Центральном районе. Сделайте себе подарок, приобретая уютную квартиру общей площадью 63,2 кв.м. Сделан качественный ремонт "для себя". Просторная кухня-гостиная 29,9 кв.м - идеальное место для семейных ужинов. Кухонный гарнитур с глянцевыми фасадами, обеспечивают максимум хранения, а встроенная техника(посудомоечная машина, духовой шкаф) создают единую линию. Зонирование выполнено с помощью стильной барной стойки. Окна выходят в тихий двор, поэтому в квартире всегда тишина. В подарок покупателю остается кухонный гарнитур и встроенная техника. Из кухни выход на просторную, остекленную лоджию. Это полноценная "Летняя комната" и огромный плюс для хозяйки: дополнительное пространство для хранения техники или зона отдыха. Которую легко обустроить под кабинет или летнюю столовую. Просторная уютная спальня 16,4 кв.м лаконичный интерьер в пастельных тонах визуально расширяет пространство. Комната наполнена естественным светом. В комплекте идет встроенный шкаф. Идеальное место для восстановление сил после рабочего дня. Просторный совмещенный санузел 6,2 кв.м в современном стиле. Выполнена качественная отделка В светлых тонах, что визуально расширяет пространство. Продуманы места для хранения: стиральная машина под раковиной и вместительный шкаф. Зеркало с подсветкой и качественное освещение создают приятную атмосферу. Бонусом к квартире идет просторный тамбур. Это ваша личная зона комфорта: полноценное место для хранения колясок, велосипедов, самокатов и сезонных вещей, которые сохраняют чистоту в жилой зоне. Несмотря на природное окружение, рядом находятся школы: Барнаульская классическая школа, школа 48, лицей 2 , детские сады: Детский сад 80, детский сад 21,Академия смелого мышонка, Детский центр Рыжий Кот и котята, Дошкольная академия Барбарисики, знаменитый Дендрарий и Горнолыжный комплекс Авальман, и конечно в доступе все необходимые магазины. Удобные транспортные развязки, позволяющие быстро добраться до любой точки города. Во дворе установлена современная сертифицированная площадка с мягким прорезиненным покрытием, что гарантирует безопасность детей при игре. Площадка хорошо освещена в вечернее время, находится под видеонаблюдением, и ее отлично видно из окон квартиры - дети всегда под присмотром. Огромный плюс дома - наличие мест для парковки как перед домом, так и за ним. Парковка за шлагбаумом - гарантирует отсутствие чужих машин. Даже в вечернее время всегда можно найти парковочное место. За дворовой территорией ухаживают, ведется видеонаблюдение. Лучше один раз увидеть! Документы готовы к сделке. Прямая продажа. Квартира без обременений. Только для клиентов "Самолет Плюс"-уникальное предложение :субсидированная ставка по ипотеке от 11,99 %! Звоните и записывайтесь на просмотр в удобное время. П



163 669 ₽/м²
Код объекта: 2044021. Лучший вaриaнт для Вас! Прoдам пoлноценную 2-к. квартиpу в cамом Цeнтpe гopoда! Все комнaты пpoстоpныe и пpавильнoй фopмы. В кваpтире удoбная кухня, отличнo подойдет для Вaшей сeмьи, спальня и большая гостиная комнaта (зал) с выxодом на лоджию, caнузел обустроен душем, эргономичный коридор с собственным кладовым помещением. В подъезде есть видеонаблюдение. В доме лифт. Вблизи от дома имеются магазины, социально-значимые объекты: языковая гимназия 22, 123 лицей, детский сад 239, Гулливер-парк, ТЦ Сити, ТЦ Первомайский, в шаговой доступности ВУЗы города, кафе, рестораны, остановки общественного транспорта - одним словом все преимущества жизни в центре города! Полная стоимость в договоре. Квартира без обременения, чистая продажа! Звоните прямо сейчас, записывайтесь на показ! Полное сопровождение Покупателя и гарантия юридически чистой сделки. Помогу одобрить Вам ипотеку от 11,9% на весь срок!



184 859 ₽/м²
Продается 2-комнатна квартира в ЖК "Димитровские горки" общей площадью 56.89 кв.м расположенной на 10 этаже в 16-и этажном кирпичном доме. В доме хорошая тепло и звукоизоляция. Квартира с качественным ремонтом, светлая, уютная, просторная, Кухня-гостинная 15,33 м2, спальня 23,56 м2, кухня 5,01 м2, ванная 5.16 м2, прихожая 6.52 м2, лоджия 1.31 м2. Окна выходят на Ядринцева. Не солнечная сторона! Летом будет очень комфортно! Широкие большие подоконники. Кухня-гостинная очень просторная, на ней есть где развернуться и позвать много гостей. Ремонт и мебель позволяют сразу заселиться и насаждаться комфортом без дополнительных вложений. Кухня выполнена из мдф. Новая плита haier , новый холодильник haier , вытяжка. Шикарная спальня, совмещенный санузел, просторный и вместительный коридор. Вход в подъезд с улицы Ядринцева. Два лифта : грузовой и пассажирский. Один взрослый собственник, без обременений, материнский капитал не использовался, в собственности более 3-х лет. Полная стоимость в договоре. Звоните и задавайте вопросы. Приглашаем на просмотр.



155 251 ₽/м²
В продаже полноценная 2к квартира 43,8 кв.м с евроремонтом. Локация самый ТОП, дом расположен среди ключевых ВУЗов. В шаговой доступности (2 минуты ходьбы) остановка общественного транспорта. Вся инфраструктура (дет. сады, школы, театры, аптеки, магазины) так же расположены в шаговой доступности. После ремонта никто не жил. Вся мебель и бытовая техника, всё что на фото, остается новым собственникам!!! Чистая продажа, один взрослый собственник (не пенсионер), быстрый выход на сделку!!!



147 114 ₽/м²
Вы когда-нибудь мечтали жить так, чтобы город буквально начинался у вашего порога? Двухкомнатная квартира в современном доме 2018 года в самом сердце исторического центра делает это возможным. Здесь не нужно выбирать между уютом и удобством: вы получаете и то, и другое сразу. Вместо стандартных комнатных клетушек — просторная кухня-гостиная, где легко собрать друзей на вечер или устроить уютный ужин вдвоём. Отдельная спальня выходит на большую застеклённую лоджию: идеальное место для утреннего кофе с видом на город, где рассветы и закаты каждый раз выглядят по-особенному. Планировка продумана до мелочей: гардеробная и вместительные встроенные шкафы избавят от хаоса, прихожая и санузел выполнены в современном стиле с качественными материалами. Дом с закрытой территорией, современными лифтами, удобным подземным паркингом и детской площадкой. За три секунды пешком вы уже на Красноармейском проспекте. В радиусе 10 минут — университеты, школы, детские сады, парки, торговые центры, кафе и рестораны. Хотите бассейн или фитнес? Достаточно заглянуть в соседний ТЦ Plaza с клубом Magis. Квартира тёплая и экономичная в коммунальных платежах. Свежий ремонт в спокойных тонах, санузел в кафеле, на полу ламинат. И приятный бонус: остаётся кухонный гарнитур с техникой, встроенные шкафы и та самая атмосфера дома, где всё делалось с душой. Эта квартира ждёт новых хозяев — возможно, именно вас. Позвоните прямо сейчас, чтобы увидеть её своими глазами! Центр города редко отпускает тех, кто однажды почувствовал, как это удобно и красиво — жить там, где всё под рукой!



137 270 ₽/м²
Предлагаю вашему вниманию прекрасную, двухкомнатную квартиру 64,1 кв.м. со свежим, качественным ремонтом, выполненном в приятный цветовой гамме. Вся сумма в договоре! В квартире остается кухонный гарнитур, встроенный шкаф в коридоре и на балконе. Бытовая техника только посудомоечная машина которая мало эксплуатировалась.. В санузлах установлен электрический, теплый пол. Лоджия благоустроена, а также на ней установлен большой встроенный шкаф для хранения который остается новым собственникам. Высокий цоколь. Чистый свежий подъезд, просторный двор и липовая аллея перед окнами. Вокруг микрорайона расположен Ленточный бор, рядом проходит тропа здоровья где можно прогуляться зимой покататься на лыжах а летом на велосипедах, приятный воздух в любое время года вам обеспечен. В микрорайоне предусмотрено строительство детского сада и школы. В шаговой доступности торговый центр, магазины, кафе, частные дошкольные образовательные учреждения, остановка общественного транспорта автобуса N80. Один взрослый собственник, чистая продажа. Без долгов, без обременений. Быстрый выход на сделку. Напишите или позвоните, чтобы договориться о просмотре, в удобное для вас время. Мы гарантируем вам 100% безопасность сделки: Все документы в полном порядке Любой удобный способ расчета: нал/безнал, аккредитив, банковская ячейка. Помощь в одобрении ипотеки и скидки от банков-партнеров. Видео обзор по запросу. Арт. 131461416
| 🔷 Средняя цена продажи: | 8,8 млн ₽ |
| 🔷 Средняя цена за м2: | 185,5 тыс. ₽/м² |
| 🔷 Минимальная стоимость: | 5,8 млн ₽ |
| 🔷 Самый дорогой объект: | 16,8 млн ₽ |