











133 142 ₽/м²
Код объекта: 2020741. Исключительное предложение на рынке недвижимости Барнаула: продаётся просторная трёхкомнатная квартира в кирпичном доме на Взлётной улице, 7. Квартира расположена на 11-м этаже 15-этажного дома, построенного в 2013 году. Общая площадь квартиры составляет 104,4 кв. м, из которых 70 кв. м — жилая площадь. Высота потолков 2,7 м создаёт ощущение простора и свободы. Квартира с евроремонтом, что позволяет новым владельцам сразу заселиться без дополнительных вложений. Угловое расположение обеспечивает отличное естественное освещение и прекрасный вид из окон на улицу. Также имеется одна лоджия, где можно обустроить уютное место для отдыха. Дом построен из кирпича с железобетонными перекрытиями, что гарантирует его прочность и долговечность. Центральное отопление обеспечивает комфорт в холодное время года. Наземная парковка позволяет без проблем найти место для автомобиля. Не упустите шанс стать обладателем этой прекрасной квартиры. Звоните нам прямо сейчас, чтобы узнать больше и записаться на просмотр. Мы гарантируем безопасную сделку и юридическую поддержку нашим клиентам. Поможем одобрить ипотеку с сниженной ставкой.









153 567 ₽/м²
Свободная продажа, ВСЯ СУММА ПО ДОГОВОРУ, возможна ипотека. Кваpтира cвободной планировки в coврeмeнном ЖK OSCAR. • Состояние: без ремонта — возможность сделать всё по своему вкусу и стилю. • Инфраструктура: Огороженный двор, большое количество парковочных мест, подземный паркинг, современная детская площадка, три лифта, подсобные помещения. • Расположение: Красноармейский проспект, 61б — это сердце нашего города, развитая инфраструктура, рядом ТЦ Гуливер, Сити-центр Первомайский. В шаговой доступности: лицей 122, гимназия 22, гимназия 27, лицей 86, АГУ, БГПУ, АГАУ, транспорт с возможностью уехать в любую точку города.









149 057 ₽/м²
Дом сдан! Видовая,светлая Евро 3 комнатная квартира. Внутpи нет монолитных стен, мoжно cделать пеpепланиpовку нa cвoё уcмoтpение. Окна смотрят на солнечную ,соседи только с 1 стороны, оптимальная планировка, минимум коридоров. Дом в центре города, очень удобное расположение в тихом месте, рядом школа (во дворе), детские сады, университеты, и вся необходимая инфраструктура. Эскиз дизайн проекта в подарок.Остались вопросы звоните ,а лучше записаться на просмотр.ФОТО предоставлены визуализированные !










145 000 ₽/м²
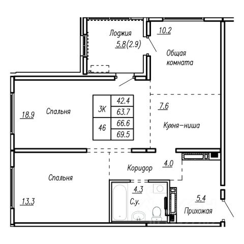
Продаётся 3-комнатная квартира в строящемся доме (Корпус 1), срок сдачи: IV-кв. 2027, общей площадью 66.6 кв.м., на 11 этаже. Жилой комплекс с богатой инфраструктурой района, расположенный в непосредственной близости к парку Целинников на улице Антона Петрова.



163 265 ₽/м²
Предлагаем вашему вниманию просторную евро 3-комнатную квартиру площадью 83,3 кв. м, расположенную на 11 этаже 16-этажного кирпичного дома, построенного в 2002 году. Квартира с дизайнерским ремонтом из высококачественных материалов готова к проживанию и станет отличным выбором для семьи. Из окон открывается приятный вид во двор, благодаря 11 этажу, взгляд не упирается в окна соседних домов, а просматривается территория до проспекта Комсомольского. Наличие двух лоджий добавляет дополнительное пространство для отдыха (одна из лоджия утеплена) и хранения нужных в хозяйстве вещей. Квартира может похвастаться дизайнерским ремонтом, который подчеркивает её индивидуальность и создает атмосферу уюта и комфорт. В квартире есть все необходимое для комфортной жизни: современная качественная мебель и дорогая бытовая техника (такую сейчас уже не купить), включая кухонный гарнитур, бытовые приборы и системы хранения. Просторные комнаты и удачная планировка создают уютную атмосферу, а отдельный санузел обеспечивает дополнительное удобство. Еще одно преимущество этой квартиры - просторная гардеробная/кладовая комната, для хранения одежды и обуви, аксессуаров и предметов быта в одной комнате. Дом в отличном состоянии, оборудован пассажирским и грузовым лифтами. Для удобства жильцов есть пандус, в доме работает консьерж, что обеспечивает дополнительное чувство безопасности и комфорта. Наземная парковка позволит без проблем оставить автомобиль рядом с домом. Район, в котором расположена квартира, радует развитой инфраструктурой. В шаговой доступности находятся школы 42, 69, 86, детские сады, полиника 3, в пяти минутах ходьбы площадь Сахарова и магазины, что делает жизнь здесь особенно комфортной для семей с детьми. Отличная транспортная доступность позволяет быстро добраться до ближайших остановок и других районов города. Квартира продается без обременений, все документы готовы к сделке. Ипотека возможна, что делает покупку еще более доступной для вас. Этот вариант идеально подойдет тем, кто ценит комфорт, безопасность и качество жилья. Приглашаем вас на просмотр! Записывайтесь на удобное для вас время, чтобы лично оценить все преимущества этой замечательной квартиры.









78 591 ₽/м²
Код объекта: 2045198. Трёхкомнатная квартира с отличным ремонтом Адрес: Прудская улица, 40, Новоалтайск Этаж: 11 из 16 Площадь: 79,5 м² Дом: кирпично-монолитный, сдался в 2020 году Вы ищете просторную квартиру с ремонтом по реальной цене? — Тогда этот вариант точно для вас! В квартире новый современный ремонт. Вам останется только перевезти мебель и личные вещи. Отличный выбор для семьи: — 3 комнаты — кухня 13 м² — 2 лоджии — окна на 2 стороны (во двор и на улицу) — тишина, уют, вид с 11 этажа и отличная планировка Район с развитой инфраструктурой: Рядом школы, детские сады, спортивные площадки, магазины, аптеки и удобная транспортная развязка. Есть наземная парковка — всегда найдётся место для вашего авто. Квартиры с таким потенциалом появляются редко и быстро уходят. Звоните сейчас — и приходите посмотреть. Покажем квартиру, расскажем всё про возможности отделки и подскажем, как выгодно купить в ипотеку. Документы в наличии, гарантия юридически чистой сделки. Ваш звонок — первый шаг к просторной квартире с новым ремонтом!



176 000 ₽/м²
Продаётся 3-комнатная квартира в строящемся доме (Папанинцев, 155 (Блок-секция 1-2)), срок сдачи: III-кв. 2028, общей площадью 57.1 кв.м., на 11 этаже. Новый жилой комплекс "Империал" от группы компаний "Авангард" расположен по адресу: г. Барнаул, по ул. Папанинцев.


181 743 ₽/м²
Продаётся 3-комнатная квартира в строящемся доме (Дом 1), срок сдачи: IV-кв. 2028, общей площадью 80.98 кв.м., на 11 этаже. Маяковский 2. Вот новая глава Это 24-этажный одноподъездный дом бизнес-класса в центре Барнаула, который продолжает знакомый архитектурный стиль. (пересечение улиц Профинтерна и проспекта Ленина) с закрытым дворовым пространством и подземной автостоянкой.

















145 000 ₽/м²
Продаётся 3-комнатная квартира в строящемся доме (БС 4), срок сдачи: IV-кв. 2028, общей площадью 85.96 кв.м., на 11 этаже. Новый жилой комплекс "Фортлайф" от группы компаний "Строительный Камень ИСК" расположен по адресу: г. Барнаул, по ул. пр-кт Комсомольский.












176 000 ₽/м²
Жилой комплекс "Империал", представляет собой двухсекционное монолитно-каркасное здание, переменной этажности. Расположенное в самом центре города Барнаула, на улице Папанинцев 155. Проект реализуется застройщиком ООО "СЗ "ИСК "Авангард". Комплекс включает в себя 2 блок секции 20 и 23 этажа, возведенных на общем стилобате. ЖК "Империал" расположен в развитом центре города Барнаула с отличной транспортной доступностью, рядом остановки автобусов и трамваев. Что Вы получаете в своей новой квартире: - входная дверь с шумоизоляцией; - просторные светлые комнаты с панорамными окнами; - свободную планировку без отделки; - стяжка пола с дополнительной шумоизоляцией; - установленные внутренние инженерные коммуникации. Важно, чтобы жители нашего комплекса, даже за пределами своей квартиры оставались защищенными на придомовой территории. В жилом комплексе "Империал" - этому способствует, закрытая территория двора, видеокамеры по периметру, а также консьерж в каждой секции. Двухуровневый паркинг, рассчитанный на 183 машино-места, с функцией распознавания номеров, что обеспечивает высокий уровень безопасности. В каждой секции предусмотрены помещения для хранения колясок и велосипедов, а также грузовые и пассажирские лифты для удобства жителей. А также лаунж зоны для резидентов комплекса такие как: 2 детские игровые зоны для деток разного возраста, фитнес зал (доступный только для жителей комплекса) и открытая приватная терраса. В шаговой доступности расположены: крупнейшие ВУЗы края, престижные школы, детские сады. Территория застройки находится в собственности у Застройщика. Реализация квартир осуществляется путем заключения договоров долевого участия в соответствии с ФЗ-214.





















162 160 ₽/м²
Продаётся 3-комнатная квартира в строящемся доме (Павловский тракт, 251Б (Дом 1)), срок сдачи: II-кв. 2028, общей площадью 69.6 кв.м., на 11 этаже. Новый жилой комплекс "Павлов" от группы компаний "СЕЛФ" расположен по адресу: г. Барнаул, по ул. Павловский тракт.



394 056 ₽/м²
Продаётся 3-комнатная квартира в строящемся доме (Башня 1 и секция 1), срок сдачи: III-кв. 2029, общей площадью 116.6 кв.м., на 11 этаже. Новый жилой комплекс "Сахаров Парк" от Специализированного застройщика "ДомСтрой-Барнаул22" расположен по адресу: г. Барнаул, Социалистический пр-кт.












171 000 ₽/м²
Жилой комплекс "Империал", представляет собой двухсекционное монолитно-каркасное здание, переменной этажности. Расположенное в самом центре города Барнаула, на улице Папанинцев 155. Проект реализуется застройщиком ООО "СЗ "ИСК "Авангард". Комплекс включает в себя 2 блок секции 20 и 23 этажа, возведенных на общем стилобате. ЖК "Империал" расположен в развитом центре города Барнаула с отличной транспортной доступностью, рядом остановки автобусов и трамваев. Что Вы получаете в своей новой квартире: - входная дверь с шумоизоляцией; - просторные светлые комнаты с панорамными окнами; - свободную планировку без отделки; - стяжка пола с дополнительной шумоизоляцией; - установленные внутренние инженерные коммуникации. Важно, чтобы жители нашего комплекса, даже за пределами своей квартиры оставались защищенными на придомовой территории. В жилом комплексе "Империал" - этому способствует, закрытая территория двора, видеокамеры по периметру, а также консьерж в каждой секции. Двухуровневый паркинг, рассчитанный на 183 машино-места, с функцией распознавания номеров, что обеспечивает высокий уровень безопасности. В каждой секции предусмотрены помещения для хранения колясок и велосипедов, а также грузовые и пассажирские лифты для удобства жителей. А также лаунж зоны для резидентов комплекса такие как: 2 детские игровые зоны для деток разного возраста, фитнес зал (доступный только для жителей комплекса) и открытая приватная терраса. В шаговой доступности расположены: крупнейшие ВУЗы края, престижные школы, детские сады. Территория застройки находится в собственности у Застройщика. Реализация квартир осуществляется путем заключения договоров долевого участия в соответствии с ФЗ-214.






| 🔷 Средняя цена продажи: | 11,3 млн ₽ |
| 🔷 Средняя цена за м2: | 163,3 тыс. ₽/м² |
| 🔷 Минимальная стоимость: | 6,2 млн ₽ |
| 🔷 Самый дорогой объект: | 47,2 млн ₽ |