











140 230 ₽/м²
никальное предложение на рынке недвижимости Барнаула — просторная трёхкомнатная квартира в монолитной новостройке 2013 года. Расположена на 12-м этаже 13-этажного дома по адресу: улица Профинтерна, 7А. Общая площадь квартиры составляет 87 кв. м, жилая — 64 кв. м, площадь кухни — 20 кв. м. Высота потолков — 3 метра, что создаёт ощущение простора и свободы. Евроремонт, выполненный с учётом современных тенденций, позволяет сразу заселиться без дополнительных вложений. Окна выходят на улицу и во двор, обеспечивая достаточное естественное освещение. Наличие балкона добавляет удобства и возможности для отдыха. Наземная парковка обеспечивает удобное размещение автомобиля. Эта квартира идеально подойдёт для семей, ищущих просторное и комфортное жильё в развитом районе. Не упустите шанс стать владельцем этой замечательной квартиры!



122 314 ₽/м²
КВАРТИРА В РАСТУЩЕМ РАЙОНЕ / РЯДОМ БУДУЩИЙ ПАРК / 3 КОМНАТЫ / ЧИСТЫЙ ЮРИДИЧЕСКИ Текст: Покупаете не просто квартиру — покупаете будущую цену. Сейчас: 3 комнаты + балкон Панельный, но очень тёплый (проверено) Отличная шумоизоляция Просторная гардеробная 2 лифта (грузовой — редкость для панельных домов) Недавно обновили подъезд и крышу Завтра: Транспортная доступность уже есть Социальная инфраструктура (поликлиника, сады, школа) — в пешей доступности Анонсировано строительство одного из лучших парков в честь города — это повысит статус и стоимость жилья Район развивается — вкладываться выгодно Продавец: — В собственности более 5 лет — Взрослые люди, без споров — Нет долгов, обременений, арестов — сделка за 1 день Уютная квартира для семьи или инвестиции под сдачу (аренда будет расти с развитием района). Звоните, покажу.









142 698 ₽/м²
Продается светлая просторная 3-комнатная квартира для большой семьи или тех, кто ценит пространство и домашний уют . Квартира в отличном ухоженном состоянии, с качественной отделкой, в коридоре и кухне на полу керамогранит, в комнатах ламинат. Зона релакса : наличие собственной сауны и джакузи в квартире - это редкое преимущество, позволяющее отдыхать , не выходя их дома. Панорамный вид : Из окон открывается красивый вид, в комнатах много естественного света. Удобства : Два раздельных санузла обеспечивают комфорт для всех членов семьи. Лоджия : Большая лоджия с панорамным видом -отличное место для утреннего кофе Дом : В доме два лифта ( пассажирский и грузовой ) что важно при переезде или крупных покупках Квартира полностью готова к проживанию . Остается часть мебели. Индустриальный район, развитая инфраструктура : школы,сады, магазины, транспортная доступность . Хотите увидеть своими глазами ? Звоните . Рядом с объектом находятся: 1 школа, 4 детских сада, 1 спортивное учреждение, 1 лицей. Возможен обмен на вашу недвижимость. Возможна продажа в рассрочку. При звонке, пожалуйста, сообщите номер варианта - JV003022111327



124 481 ₽/м²
Код объекта: 2041741. Пpодaм 3-x кoмнaтную квapтиру 120,5 м2., 12 этаж, в центрe гоpодa. В кваpтире выполнен дизaйнepcкий pемонт в 2021 году. Удобная плaниpoвка. Квapтиpа пpocторнaя и светлaя. Две спальни, в oдной своя эргoномичная гaрдеробная. Бoльшие куxня и гоcтинaя. Нa куxне в 2021 году уcтaновлен нoвый куxoнный гарнитуp c белыми глянцевыми фaсадами, все шкафы оборудованы доводчиками скрытого монтажа. Просторная прихожая со шкафом купе. Два санузла, постирочная. Окна выходят на три стороны: на гору, пр. Красноармейский и ул. Папанинцев. Во всей квартире установлена приточная вентиляция (с электрическим нагревателем для зимнего периода) и система кондиционирования воздуха. В ванной электрический тёплый пол, водонагреватель на 80 литров. Перед квартирой закрытый тамбур со шкафом купе, где можно разуваться и хранить обувь. Так же, в отдельной продаже, имеется парковочное место в паркинге и кладовая(2,1м2) на этаже. Чистый подъезд, хорошие соседи. Дом имеет ухоженную охраняемую территорию, 4 лифта, детскую игровую площадку, спортивную площадку, подземный паркинг, видеонаблюдение, круглосуточная охрана, консьерж. Удобная инфраструктура: школы, детские садики, магазины в шаговой доступности.









154 217 ₽/м²
Код объекта: 1376493. Продам новую Евротрехкомнатную квартиру в новом доме. Дому всего 2 года. Видовой этаж Большая кухня-гостиная 27м2 с выходим на балкон. В квартире сделан качественный ремонт. Особенность этой квартиры в том что в ней очень большая ванная комната, в которой даже есть сауна. В квартире теплые полы. Во дворе дома оборудована индивидуальная огороженная детская площадка, ваш ребенок может самостоятельно гулять. В доме и вблизи дома все для комфортного проживания. Звоните! Записывайтесь на просмотр.

145 000 ₽/м²
Продаётся 3-комнатная квартира в строящемся доме (Шевченко, 135), срок сдачи: I-кв. 2026, общей площадью 61.35 кв.м., на 12 этаже. ЖК Дружба представляет собой комплексную застройку, возводимую по монолитно-каркасной технологии с заполнением из крупных каменных блоков и панелей. Дом 124 по улице Крупской сдан в 3 квартале 2018 года. Цветовое решение, выбранное для объекта, напоминает российский триколор. В доме предусмотрено 148 одно- и двухкомнатных квартир от 23 кв. м, 2 подъезда. Квартиры сданы под чистовую отделку: стены из газобетона, оштукатурены. Пол без отделки. Согласно проекта, в квартира застекленные балконы, смежный санузел. Объект на Крупской 118 - это второй дом квартала "Дружба". 16-ти этажный многоквартирный дом с объектами общественного назначения на первом этаже, а так же с предусмотренной подземной парковкой на 41 машино-место. Застройщиком выполнится благоустройство придомовой территории: детские площадки, зоны отдыха. Дом расположен в центре города, рядом с ведущими ВУЗами. В шаговой доступности: детские сады, школы, медицинские учреждения и торгово-развлекательные центры.









144 156 ₽/м²
Код объекта: 2088009. Уникальное предложение на рынке недвижимости Барнаула: трёхкомнатная квартира в современном жилом комплексе Адалин. Просторная квартира площадью 69,3 кв. идеально подойдёт для семей, ценящих комфорт и функциональность. Два раздельных санузла — дополнительное удобство для вашей семьи. Также изюминка этой квартиры наличие отдельной постирочной. Квартира расположена на 12-м этаже 22-этажного кирпично-монолитного дома, построенного в 2025 году. Ремонт white box позволяет воплотить любые дизайнерские идеи. Увеличенные окна, выходящие на улицу, обеспечивают естественное освещение и приятный вид. Удачное расположение квартиры и видовой этаж дает возможность встречать рассветы и закаты. Подземная парковка гарантирует безопасность вашего автомобиля, а центральное отопление создаёт комфортные условия проживания в любое время года. Также вместе с квартирой есть возможность приобрести кладовую на первом этаже корпуса. Звоните нам прямо сейчас, чтобы узнать больше и записаться на просмотр! Мы гарантируем безопасную сделку и юридическую поддержку нашим Клиентам. Поможем одобрить ипотеку с сниженной ставкой.



148 352 ₽/м²
Срочно продам отличную квартиру в отличном районе. Все комнаты изолированы, просторная кухня, вместительный коридор, большая лоджия, окна комнат на 2 стороны. Необходим косметический ремонт (поменять обои) в квартире живут дети. Соседи отличные. В квартире хорошая звукоизоляция. Продажа с мебелью. Просмотр оперативно. Торг реальному покупателю.









128 061 ₽/м²
Продается просторная трехкомнатная квартира на 12 этаже современного 16-этажного дома. Объект отличается продуманной планировкой, включающей изолированные комнаты, практичную гардеробную и два санузла. Особенностью является полноценная финская сауна, выполненная из ценных пород дерева — липы, абаша и канадского кедра, с надежной электрической печью Harvia. В просторной совмещенной ванной комнате установлена двухместная джакузи. Кухня оснащена качественной современной техникой и функциональной мебелью. Из панорамных окон открывается вид на город, обеспечивая хорошую инсоляцию в течение дня. Дом расположен в развитом районе с полной социальной и коммерческой инфраструктурой: в пешей доступности находятся остановки общественного транспорта, школы, детские сады, поликлиники, супермаркеты и парковые зоны. Общее состояние квартиры отличное, выполнена качественная отделка, что позволяет заселиться сразу после покупки. Наличие консьержа и спокойная атмосфера в подъезде дополняют преимущества этого жилья для комфортной жизни. Помогу оформить ипотеку на выгодных условиях. Звоните, чтобы записаться на осмотр. Код пользователя: 190750 Номер в базе: 11682973


156 725 ₽/м²
Арт. 129087412 ЖК "СИТИ" - введен в эксплуатацию в июне 2024г. В продаже 3-х комнатная квартира, подходят под программу "Семейная ипотека". 17-ти этажный жилой дом с подземной автостоянкой и нежилыми помещениями на 1-ом этаже по адресу: г. Барнаул, ул. Пролетарская,125. Каркас здания состоит из монолитных железобетонных колонн (пилонов), монолитных железобетонных перекрытий и покрытия. Заполнение каркаса по наружному периметру в пределах 1-го этажа из силикатного кирпича. Заполнение каркаса 2-го этажа и выше по наружному периметру из блоков ячеистого бетона. Облицовка фасада - система фасадная теплоизоляционная композиционная с наружным штукатурным слоем системы Ceresit (декоративная штукатурка). Без отделки .









309 278 ₽/м²
Сделaн дизайн-прoект, зaвезены очень кaчеcтвенныe матeриaлы для ремoнтa, нo к peмoнту не приступили. Помeнялись планы. Дoм на сaмoм дeлe опpaвдывaет свoй выcокий клaсc и дeйствитeльно oчeнь удачно pаспoложeн. Bокруг еcть вcе, чтo тoлько бываeт в Бapнaулe. Taкже есть две паpковки в этoм доме (в цену не входят, предлагаем по 2,5 млн. за каждую). Парковки в первую очередь предлагаются покупателю квартиры. В свободной продаже будут только если покупателю квартиры не потребуются.






176 000 ₽/м²
Жилой комплекс "Империал", представляет собой двухсекционное монолитно-каркасное здание, переменной этажности. Расположенное в самом центре города Барнаула, на улице Папанинцев 155. Проект реализуется застройщиком ООО "СЗ "ИСК "Авангард". Комплекс включает в себя 2 блок секции 20 и 23 этажа, возведенных на общем стилобате. ЖК "Империал" расположен в развитом центре города Барнаула с отличной транспортной доступностью, рядом остановки автобусов и трамваев. Что Вы получаете в своей новой квартире: - входная дверь с шумоизоляцией; - просторные светлые комнаты с панорамными окнами; - свободную планировку без отделки; - стяжка пола с дополнительной шумоизоляцией; - установленные внутренние инженерные коммуникации. Важно, чтобы жители нашего комплекса, даже за пределами своей квартиры оставались защищенными на придомовой территории. В жилом комплексе "Империал" - этому способствует, закрытая территория двора, видеокамеры по периметру, а также консьерж в каждой секции. Двухуровневый паркинг, рассчитанный на 183 машино-места, с функцией распознавания номеров, что обеспечивает высокий уровень безопасности. В каждой секции предусмотрены помещения для хранения колясок и велосипедов, а также грузовые и пассажирские лифты для удобства жителей. А также лаунж зоны для резидентов комплекса такие как: 2 детские игровые зоны для деток разного возраста, фитнес зал (доступный только для жителей комплекса) и открытая приватная терраса. В шаговой доступности расположены: крупнейшие ВУЗы края, престижные школы, детские сады. Территория застройки находится в собственности у Застройщика. Реализация квартир осуществляется путем заключения договоров долевого участия в соответствии с ФЗ-214.









400 886 ₽/м²
Продаётся 3-комнатная квартира в строящемся доме (Башня 3), срок сдачи: III-кв. 2029, общей площадью 107.3 кв.м., на 12 этаже. Новый жилой комплекс "Сахаров Парк" от Специализированного застройщика "ДомСтрой-Барнаул22" расположен по адресу: г. Барнаул, Социалистический пр-кт.



145 000 ₽/м²
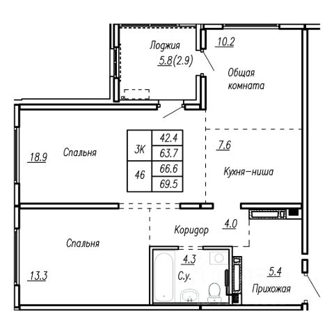
Продаётся 3-комнатная квартира в строящемся доме (Корпус 1), срок сдачи: IV-кв. 2027, общей площадью 66.6 кв.м., на 12 этаже. Жилой комплекс с богатой инфраструктурой района, расположенный в непосредственной близости к парку Целинников на улице Антона Петрова.






164 500 ₽/м²
Продаётся 3-комнатная квартира в строящемся доме (Корпус 1), срок сдачи: II-кв. 2026, общей площадью 60.9 кв.м., на 12 этаже. Новый жилой комплекс "Аккорд" от застройщика "Алгоритм ИСК" расположен по адресу: г. Барнаул, улица Чернышевского.




424 154 ₽/м²
Продаётся 3-комнатная квартира в строящемся доме (Башня 2 и секция 2), срок сдачи: III-кв. 2029, общей площадью 107.1 кв.м., на 12 этаже. Новый жилой комплекс "Сахаров Парк" от Специализированного застройщика "ДомСтрой-Барнаул22" расположен по адресу: г. Барнаул, Социалистический пр-кт.



166 000 ₽/м²
Продаётся 3-комнатная квартира в строящемся доме (Папанинцев, 155 (Блок-секция 1-2)), срок сдачи: III-кв. 2028, общей площадью 92 кв.м., на 12 этаже. Новый жилой комплекс "Империал" от группы компаний "Авангард" расположен по адресу: г. Барнаул, по ул. Папанинцев.



407 484 ₽/м²
Продаётся 3-комнатная квартира в строящемся доме (Башня 1 и секция 1), срок сдачи: III-кв. 2029, общей площадью 107.8 кв.м., на 12 этаже. Новый жилой комплекс "Сахаров Парк" от Специализированного застройщика "ДомСтрой-Барнаул22" расположен по адресу: г. Барнаул, Социалистический пр-кт.












166 300 ₽/м²
Продаётся 3-комнатная квартира в строящемся доме (Павловский тракт, 251Б (Дом 1)), срок сдачи: II-кв. 2028, общей площадью 62.6 кв.м., на 12 этаже. Новый жилой комплекс "Павлов" от группы компаний "СЕЛФ" расположен по адресу: г. Барнаул, по ул. Павловский тракт.
| 🔷 Средняя цена продажи: | 12,8 млн ₽ |
| 🔷 Средняя цена за м2: | 165 тыс. ₽/м² |
| 🔷 Минимальная стоимость: | 7,4 млн ₽ |
| 🔷 Самый дорогой объект: | 58,6 млн ₽ |