








































173 743 ₽/м²
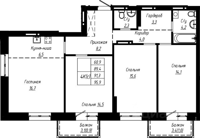
Продаётся 4-комнатная квартира в строящемся доме (Дом 1), срок сдачи: IV-кв. 2028, общей площадью 100.24 кв.м., на 5 этаже. Маяковский 2. Вот новая глава Это 24-этажный одноподъездный дом бизнес-класса в центре Барнаула, который продолжает знакомый архитектурный стиль. (пересечение улиц Профинтерна и проспекта Ленина) с закрытым дворовым пространством и подземной автостоянкой.



111 176 ₽/м²
Арт. 127911737 В продаже студия близко к центру г. Барнаула - кирпичный дом 2007 года - Вся мебель и техника остается !!!! - без долгов и обременений -по документам нежилое помещение - полная цена в договоре - чистая продажа - цокольный этаж - Хороший вариант для сдачи в аренду. По квартире: Отопление менялось, сантехника - пластик, счетчики установлены. Полы теплые, установлены качественные стеклопакеты в квартире. Транспортная доступность , развитая инфраструктура ( в шаговой доступности , во дворе Детский сад 215, школа 59, все это в шаговой доступности. Трамваи и автобусы около дома. Хороший район с развитой инфраструктурой : близость остановок, школ, магазинов.... , . Дом ухожен , чистые подъезды, При необходимости помогу с оформлением ипотеки. А также за счет нашего агентства вы сможете воспользоваться: - снижением процентной ставки по кредиту, - быстрой оценкой вашей недвижимости, - скидкой в страховых компаниях. Поможем применить государственные программы в банках для: - молодых семей, - военнослужащих, Подробные БЕСПЛАТНЫЕ консультации (в офисе) по всем вопросам, касающимся недвижимости.


168 000 ₽/м²
Продаётся 3-комнатная квартира в строящемся доме (9 Января, 14), срок сдачи: II-кв. 2028, общей площадью 71 кв.м., на 7 этаже. Новый жилой комплекс "Изумруд" от Специализированного застройщика "Изумруд" расположен по адресу: г. Барнаул, по бульвару 9 Января



166 476 ₽/м²
Собственник. 2 этаж Обременений, долей нет. Причина продажи - увеличение семьи. Солнечная, идеальная 3 - комнатная квартира в красивом ЖК Питер, соседи с одной стороны и сверху, внизу магазин) Никого не слышно, дом кирпичный. Ремонт (планировали стиль Лофт потолки, пока их не трогали), все основное, дорогостоящее сделано. Современная итальянская фурнитура! Коллекторы горячей и холодной воды! Датчики протечки, датчики давления, обратные клапана и фильтры воды! Выводы для водонагревателя! В каждой комнате по два сценария света! Проходные выключатели везде! Одна розетка на 2 м.кв. Во всех комнатах интернет и тв розетки! Каждая комната и каждый прибор (кондиционер, холодильник, плита, водонагреватель) имеет свой предохранитель(автомат), защита от скачков напряжения (узо), проводка медная, кабель усиленного сечения! Имеется приточная вентиляция! В прихожей теплые полы! В сан узлах электрические полотенцесушители! Откосы штукатурка, не пластик! Подоконники из массива дерева! На стенах фактурная штукатурка, на полу ламинат 33 класс! Прихожая и зона кухни керамогранит! Вариант очень интересный, сады , школы рядом, места для парковки достаточно. 2 туалета, ванна, туш - заходи и живи, корректируя и дополняя все по желанию.

54 701 ₽/м²
1 этаж. 58,5 кв. м. Один собственник, быстрый выход на сделку, никто не прописан. Без обременений. Инфраструктура: маленький базар, магазины, школа, детский сад. В квартире установлены пластиковые окна, ванная - кафель, поменяны батареи, кладовка. В подарок — погреб во дворе дома.





169 176 ₽/м²
Продаётся 3-комнатная квартира в строящемся доме (Меланж), срок сдачи: IV-кв. 2026, общей площадью 84.01 кв.м., на 8 этаже. Меланж - дом рядом с парком. Эстетика городской жизни Эстетика городской жизни - значит иметь возможность слушать пение птиц, наслаждаться зеленью деревьев, заниматься спортом на свежем воздухе или отправиться на прогулку в любое время. Это не просто архитектурное решение, а отличный повод изменить свои ежедневные привычки, сделать жизнь более интересной и наполненной. Внутреннее благоустройство С помощью зданий будет сформирована закрытая территория. Это разделит пространство на общественное и частное, изолирует двор от городского шума и суеты, превратит его в безопасное и приятное место для отдыха жителей. Двор без машин, игровые площадки и зелёное зонирование - атрибуты более высокого качества жизни в домах комфорт класса. Архитектура В фасаде будут использованы благородные и "тёплые" материалы - кирпич. Это придаст зданию эстетическую привлекательность, практичность и долговечность. Архитектура дома, не только сохранит историю и традиции, но и подчеркнет его особую изысканность и индивидуальность на фоне современной застройки. Планировки для каждого Каждая планировка квартиры - тщательно продуманное решение, основанное на индивидуальных сценариях жизни будущих жильцов. Квартиры с окном в ванной, гостиная с шестиметровыми витражами или уютные апартаменты с отдельным входом направлены на формирование неповторимого образа жизни будущих владельцев недвижимости.


✓ Средняя цена продажи: 13,5 млн ₽ в Барнауле
✓ Цена за м²: 152,2 тыс. ₽/м²
✓ Минимальная цена: 11,5 млн ₽, максимум: 13,7 млн ₽