Первичная продажа



сдача ГК: 3 кв. 2026 года
33 581 570 ₽
223 000 ₽/м²
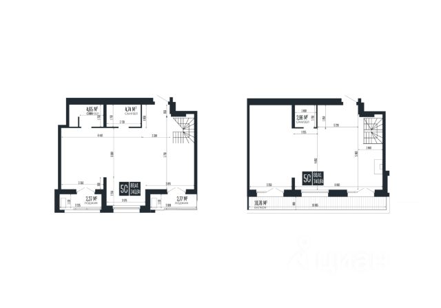
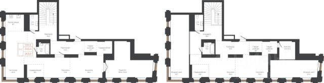
Продаётся 5-комнатная квартира в строящемся доме (Дом 36в (блок-секция 1,2)), срок сдачи: III-кв. 2026, общей площадью 150.59 кв.м., на 14 этаже. Новый жилой комплекс "Opera Residence" от Специализированного застройщика "Легион" расположен по адресу г. Барнаул, Сибирский проспект.

































































