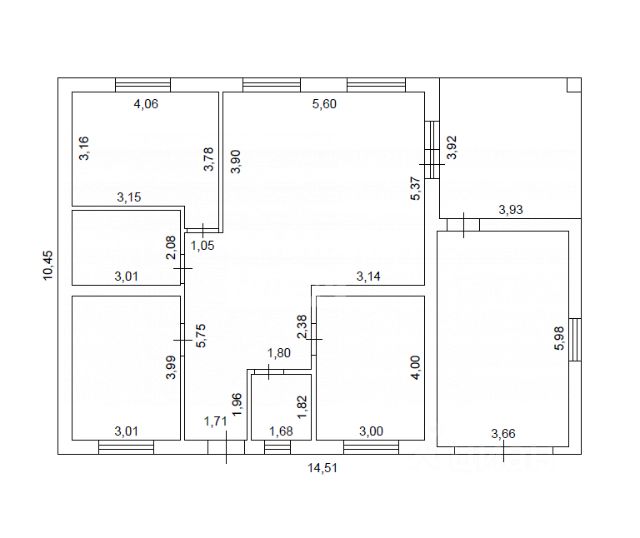
Продаётся уютный кирпичный дом в центре Бийска — заезжай и живи! Материал стен: кирпич — тепло зимой, прохладно летом. Этажность: 1 этаж — удобно для всей семьи. Количество комнат: 3 светлые и просторные комнаты. Общая площадь: 55 м². Жилая площадь: 45 м². Площадь кухни: 6 м². Планировка: раздельная — комфортно для семейного быта. Веранда: большая светлая веранда — идеальное место для отдыха. Ремонт и удобства: Косметический ремонт: пластиковые окна, натяжные потолки, новые межкомнатные двери. Во всех комнатах уложен линолеум. Санузел в доме: туалет и душ, отделаны кафелем, новая сантехника. Газовое отопление — экономично и надёжно. Своя насосная станция и скважина — всегда есть холодная и горячая вода (установлен бойлер). Скоростной WiFi и телевидение (Сибирский медведь). Участок и территория: Площадь участка: 7 соток. На 4,5 сотках огорода растут плодоносящие деревья и кустарники: груша, яблоня, вишня, виноград, лимонник, клубника. Дополнительные постройки: гараж, хозяйственные постройки, баня, сараи. Ограда: большой забор из металлосайдинга — надёжно и эстетично. Крыша: новая — не требует вложений. Транспортная доступность и инфраструктура: Удобный подъезд: асфальтированная дорога прямо к дому — зимой чистят, летом без ям. Остановка общественного транспорта (автобус и трамвай) в шаговой доступности. Всё рядом: магазины, аптека, детский сад, школа — не нужно никуда далеко ехать. Особые плюсы района: Добрые и отзывчивые соседи — жить комфортно и спокойно. Район с устоявшимся сообществом, безопасно для детей. Дом без долгов и обременений. Один взрослый собственник. Бонусом новому владельцу остаётся: кухонный гарнитур; новая 4комфорочная газовая плита с грилем; бойлер; люстры; насосная станция; вся новая сантехника; садовый инвентарь. Отличное расположение: центр города, но тихо и спокойно. Звоните прямо сейчас, чтобы договориться о просмотре! Покажу в удобное для вас время. Торг возможен при осмотре.









































































































































