сдача ГК: 2 кв. 2026 года
10 300 000 ₽
159 196 ₽/м²
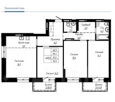
Предлагается к продаже просторная *юевротрёхкомнатная квартира в новом доме по адресу: ул. Чернышевского, 189, корпус 1.
Квартира сдана в черновой отделке — это ваш шанс реализовать любые дизайнерские идеи и создать интерьер мечты с нуля. Планировка функциональна и удобна: три комнаты, включая просторную кухню-гостиную, позволят комфортно разместиться всей семье.
Расположение и инфраструктура:
- В шаговой доступности расположены школа и детский сад — отличное решение для семей с детьми.
- Рядом находятся университет и колледж, что удобно для студентов и молодых специалистов.
- Всего 5 минут пешком до Сити-Центра: магазины, кафе, развлечения и услуги всегда под рукой.
- Отличная транспортная развязка обеспечивает быстрый доступ к любой точке города.
Эта квартира — идеальный выбор для тех, кто ценит современный комфорт, продуманную инфраструктуру и возможность создать уютное пространство по своему вкусу. Продается квартира в новостройке по переуступке в Барнауле.















































































