Мы используем куки-файлы. Соглашение об использовании

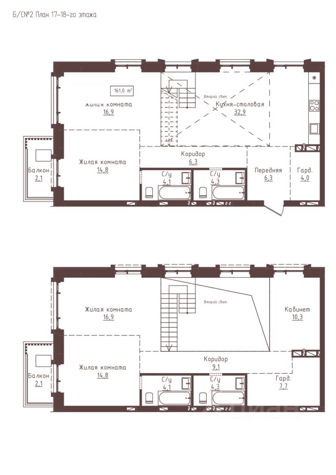
Продается 5-комн. квартира, 161 м²

  • Если понравилась квартира,
    позвоните застройщику
Общая площадь161 м²
Этаж17 из 23
Год сдачи2028
ДомНе сдан
ОтделкаНет информации
Продаётся 5-комнатная квартира в строящемся доме (Папанинцев, 155 (Блок-секция 1-2)), срок сдачи: III-кв. 2028, общей площадью 161 кв.м., на 17 этаже. Новый жилой комплекс "Империал" от группы компаний "Авангард" расположен по адресу: г. Барнаул, по ул. Папанинцев.

О квартире

Тип жилья

Новостройка

Общая площадь

161 м²

Высота потолков

3,02 м

Отделка

Нет информации

О доме

Количество лифтов

1 пассажирский, 2 грузовых

Тип дома

Монолитно-кирпичный

Пандус

Есть

Понравилась квартира — узнайте о ней больше

Застройщик ответит на все вопросы

Отделка в ЖК

  • Предчистовая
  • Без отделки
Похоже на то, что вы ищете?

Акции в ЖК «Империал»

Узнайте про персональные условия и дополнительные скидки при покупке квартиры у застройщика
Ипотечный калькулятор
  • Базовая
  • Семейная
  • ИТ-ипотека
  • 20%
  • 30%
  • 40%
  • 50%
лет
  • 10 лет
  • 20 лет
  • 30 лет
Загружаем предложения от застройщика и банков

Расположение

Корпус проверен наш.дом.рф
Обновлено 21 апреля 2026
  • Нет в реестре проблемных объектов
  • Застройщик не банкрот
  • Есть эскроу счёт
  • Актуальные фото стройки

Ещё квартиры в жилом комплексе

192 квартиры в продаже · Сдача в 3 кв. 2028
Агентство недвижимости
Сити Трейд
  • 7 лет 6 месяцев на Циане
  • 32 200 000 ₽
    Цена за метр
    200 000 ₽/м²
    Условия сделки
    долевое участие (214-ФЗ)
    Агентство недвижимости
    Сити Трейд