Мы используем куки-файлы. Соглашение об использовании

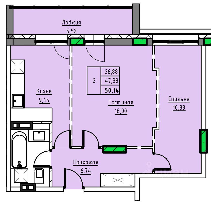
Продается 2-комн. квартира, 50,14 м²

  • ВТБ
    ПСБ
    Совкомбанк
    Альфа-Банк
    Уралсиб
    Банк ДОМ.РФ
    Т-Банк
    МКБ
    Абсолют Банк
    Реальные ипотечные ставки от 9 банков - 5,75% на новостройки, 16,9% на вторичку
    Перейти в сервис
Общая площадь50,14 м²
Этаж4 из 10
Год сдачи2029
ДомНе сдан
Продаётся 2-комнатная квартира в строящемся доме (Дом 1), срок сдачи: II-кв. 2029, общей площадью 50.14 кв.м., на 4 этаже. 10-ти этажный жилой дом в г. Заринске по адресу пр-т. Строителей, 29в. Проектом предлагается 3-х подъездный, 10-ти этажный жилой дом с встроенными на первом этаже помещениями общественного назначения. Исходя из ориентации дома входы в подъезды предусмотрены со стороны двора, тогда как в нежилые помещения - со стороны пр-т. Строителей. Вокруг здания предусматривается круговой проезд для автомобильного транспорта. Парковки для постоянного, временного хранения автомобилей, а также парковки для нежилых помещений предусмотрены, при этом согласно нормативам градостроительного проектирования Алтайского края от 29.12.2022 N 537, машино-мест может располагаться на прилегающей территории более 90 штук. Детские, спортивные площадки запроектированы с учетом нормативных расстояний от жилья и парковок. В жилом доме предусмотрено 222 квартир в том числе: Студии - 841-комн. - 482-х комн. - 543-х комн. - 304-х комн. - 6Имеется возможность объединения квартир для увеличения площади. Высота первого этажа - 3,6 м, жилых этажей - 3 м. В подвале предусмотрены кладовые для хранения негорючих вещей жильцов. В каждом подъезде имеется лестничная клетка и два лифта - пассажирский грузоподъемностью 400 кг и грузопассажирский грузоподъемностью 630 кг. Практически каждая квартира имеет выход на просторную застекленную лоджию площадью 6-9 кв.м. Все окна увеличенной высоты, что обеспечивает максимальное дневное освещение квартир. Часть квартир дополнительно оборудована мастер спальнями и гардеробными. Конструктивная схема монолитный железобетонный каркас с заполнением кирпичом и газобетоном с утеплителем. Облицовка 1-2 этажей клинкерным кирпичом. Выше штукатурка по стене. Окна - из металлопластика. Витражи 1-го этажа, остекления балконов - алюминиевые. Прилегающая территория к дому комплексно благоустраивается с асфальтированием проездов, озеленением и тротуарной плиткой. Площадки для игр детей и занятия спортом укомплектовываются элементами заводского изготовления. Жилой дом после строительства украсит центральную часть г. Заринска.

О квартире

Тип жилья

Новостройка

Общая площадь

50,14 м²

Высота потолков

3 м

О доме

Количество лифтов

2 грузовых

Тип дома

Монолитно-кирпичный

Похоже на то, что вы ищете?
Ипотечный калькулятор
  • Базовая
  • Семейная
  • ИТ-ипотека
  • 20%
  • 30%
  • 40%
  • 50%
лет
  • 10 лет
  • 20 лет
  • 30 лет
Загружаем предложения от застройщика и банков

Расположение

Корпус проверен наш.дом.рф
Обновлено 21 апреля 2026
  • Нет в реестре проблемных объектов
  • Застройщик не банкрот
  • Есть эскроу счёт
  • Актуальные фото стройки

Ещё квартиры в жилом комплексе

217 квартир в продаже · Сдача в 2 кв. 2029
Консультант
Циан
  • 5 лет 11 месяцев на Циане
  • 26210 объявлений
  • 4 512 600 ₽
    Цена за метр
    90 000 ₽/м²
    Условия сделки
    долевое участие (214-ФЗ)
    Консультант
    Циан