











243 763 ₽/м²
Продаётся стильная квартира с террасой в самом сердце Барнаула! Представьте: вы просыпаетесь утром, выходите на собственную террасу с чашкой кофе и наслаждаетесь захватывающим видом на центральную улицу столицы Алтая. Это не мечта, а реальность! Продаётся эксклюзивная квартира площадью 48,5 м² на 2 этаже 16-этажного дома бизнес-класса. Идеальная локация в центре Барнаула — всё необходимое в шаговой доступности. Для кого эта квартира? * Студенты: Учись в престижных вузах Барнаула и живи в комфорте! * Деловые люди: Работай в городе, отдыхай за городом! Идеальное решение для тех, кто ценит время и комфорт. * Блогеры: Создавай контент в самом центре событий! Локация — твой главный козырь. Что внутри? * Итальянская кухня SCAVOLINI: Готовьте кулинарные шедевры, как настоящий шеф-повар! * Изысканный керамогранит NAXOS CERAMICA: Роскошь и стиль в каждой детали. * Премиальная сантехника Omnires: Наслаждайтесь комфортом европейского уровня. * Высококлассная бытовая техника FALMEC, Electrolux, Whirlpool: Всё для вашего удобства. * Дизайнерское освещение Gallery (Италия): Создайте неповторимую атмосферу. Безопасность и комфорт: * Консьерж в подъезде. * Закрытая площадка.





180 000 ₽/м²
Продаётся 1-комнатная квартира в строящемся доме (БС 4), срок сдачи: IV-кв. 2028, общей площадью 37.99 кв.м., на 2 этаже. Новый жилой комплекс "Фортлайф" от группы компаний "Строительный Камень ИСК" расположен по адресу: г. Барнаул, по ул. пр-кт Комсомольский.



103 858 ₽/м²
Код объекта: 1368659. Уютная и теплая 1-к квартира в самом сердце Барнаула идеальный старт для студента или молодой семьи! Представь: Ты живешь в самом центре Барнаула! Всё, что нужно для комфортной и активной жизни, буквально в двух шагах: • Для студента: Железнодорожный лицей в шаговой доступности, а до любого другого ВУЗа рукой подать! Больше не нужно тратить часы на дорогу. Магазины, кафе, клиники всё рядом. • Для молодой семьи: Школа, детский сад, поликлиника всё рядом для спокойствия родителей. Прогулки по центральным улицам, доступ ко всей городской инфраструктуре без пробок и долгих поездок. Квартира очень светлая и теплая. Площадь 33,7 кв.м . • Просторная кухня (11,8 кв.м), где так приятно завтракать вдвоём или собраться с друзьями. • Высокие потолки (2,85 м) добавляют воздуха и света. • Свежий косметический ремонт позволит тебе сразу заехать и жить, не тратя время и деньги на обустройство. • Приятный бонус: Кухонный гарнитур и плита остаются в подарок! О доме: Расположена квартира на комфортном втором этаже добротного двухэтажного дома. Несмотря на свою историю (1929 год постройки), дом находится в отличном состоянии, не аварийный. Рядом всегда найдутся места для парковки твоего автомобиля, что в центре города — большая редкость и ценность. Документы полностью готовы к сделке, установлены счетчики воды. Обращаем ваше внимание, что квартира подходит только для прямой продажи (наличный расчет ) и не подходит под ипотечное кредитование. Позвони прямо сейчас и запишись на просмотр!



150 500 ₽/м²
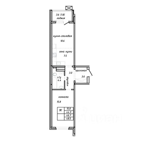
Продаётся 1-комнатная квартира в строящемся доме (Дом 1), срок сдачи: I-кв. 2027, общей площадью 46.7 кв.м., на 2 этаже. Новый жилой комплекс "Колос" от Специализированного застройщика "Восход" расположен по адресу: г. Барнаул, по ул. Интернациональная.



136 034 ₽/м²
Продаётся светлая однокомнатная квартира с дизайнерским ремонтом в центре Барнаула Описание: Готовы к переезду сразу с чемоданами? Ваша квартира в самом сердце города ждёт вас! Идеальная локация: Железнодорожный район, центр. Всё под рукой: Парк Победы для прогулок, ТЦ Galaxy, ТЦ LOKO, кинотеатр МИР, магазины,кафе. Рядом остановки всех видов общественного транспорта. В шаговой доступности детский сад, школы, авто- и железнодорожный вокзал и ВУЗы. Окна выходят во двор, поэтому в квартире тихо. Квартира выделяется своей квадратурой, большой отдельной кухней, высокими потолками и просторным совмещённым санузлом, что редкость для стандартных планировок. Ремонт выполнен с дизайнерским подходом, натяжные потолки, ламинат. Газа в квартире нет. Остаются диван, вместительный шкаф и отдельная гардеробная, а также стиральная машина. В доме есть домофон и счетчики. Бонус: во дворе вас ждёт личная кладовка для хранения сезонных вещей, консервации, велосипеда, детских колясок или шин. А также установлена охранная система с датчиками на окна и дверь. Идеальный вариант для молодой пары, студента или в качестве выгодной инвестиции в центре города. Квартира светлая, ухоженная и готова к проживанию! Видеообзор по запросу. Свяжитесь, чтобы назначить просмотр и оценить атмосферу этого дома! Один взрослый собственник. Без обременений. Никто не прописан.









157 353 ₽/м²
Продам однокомнатную квартиру в центре города, косметический ремонт позволяет заселиться немедленно или начать получать стабильный доход от сдачи в аренду без дополнительных вложений. Локация является ключевым преимуществом: в шаговой доступности сосредоточены ведущие вузы, что формирует постоянный спрос на аренду со стороны студентов и преподавателей. Район отличается развитой инфраструктурой — в непосредственной близости расположены школы, детские сады, театры . Квартира расположена на невысоком этаже, что обеспечивает независимость от работы лифта и удобство ежедневного подъема. Транспортная доступность отличная, основные магистрали и остановки общественного транспорта находятся рядом, обеспечивая быструю связь с любым районом. Это практичное решение для инвестиции с высокой ликвидностью или для комфортного проживания в самом сердце городской жизни с полным набором необходимых услуг. Код пользователя: 190734 Номер в базе: 11985247

190 000 ₽/м²
Продаётся 1-комнатная квартира в строящемся доме (Северное сияние), срок сдачи: IV-кв. 2027, общей площадью 33.37 кв.м., на 2 этаже. Новый жилой комплекс "Северное сияние" от Специализированного застройщика "СК Созидание" расположен по адресу: г. Барнаул, по ул. Папанинцев.



119 565 ₽/м²
Продается комната в 3- комнатной квартире по адресу: Профинтерна 8а, площадь квартиры 63,2 кв. м., площадь комнаты 13,8 кв. м.,3/10 доли, на втором этаже. Состояние обычное, высота потолков 3 метра, удобно под сдачу! Центр города, все в шаговой доступности! Без обременений и долгов, вся сумма в договоре!



164 000 ₽/м²
Продаётся 1-комнатная квартира в строящемся доме (9 Января, 14), срок сдачи: II-кв. 2028, общей площадью 51.5 кв.м., на 2 этаже. Новый жилой комплекс "Изумруд" от Специализированного застройщика "Изумруд" расположен по адресу: г. Барнаул, по бульвару 9 Января









140 500 ₽/м²
При покупке этой квартиры с нашим агенством вы получите цену от застройщика и полное сопровождение сделки - БЕСПЛАТНО! Лучшая инвестиция-это новая недвижимость! Просторная квартира в центре города! Удобное расположение, близость к основным магистралям города. Школы, детские сады, остановки общественного транспорта находятся в непосредственной близости от объекта. Квартиру можно приобрести как с предчистовой отделкой, так и с ремонтом от застройщика. Сдать её арендаторам с целью получения инвестиций не составит труда, рядом есть вся инфраструктура, необходимая для удобной и комфортной жизни. Мы гарантируем безопасную сделку и юридическую поддержку нашим клиентам! Поможем одобрить любую ипотеку с максимально выгодной ставкой! Не упустите шанс стать владельцем новой престижно недвижимости!



191 117 ₽/м²
Продаётся 1-комнатная квартира в строящемся доме (Дом 1), срок сдачи: IV-кв. 2027, общей площадью 39.4 кв.м., на 2 этаже. Новый жилой комплекс "На Крупской, 100" от группы компаний "Строительная Перспектива ПСК" расположен по адресу: г. Барнаул, по ул. Крупской.



170 000 ₽/м²
Продаётся 1-комнатная квартира в строящемся доме (Дом 1), срок сдачи: IV-кв. 2027, общей площадью 54.8 кв.м., на 2 этаже. Непревзойденная эстетика и комфорт. Дизайн, сочетающий историческую ценность и современный стиль, идеально подходит для комфортной жизни в городе. Архитектура Жилой комплекс отличается гармоничным сочетанием классического стиля и современных архитектурных решений. Изящные линии зданий, сдержанные цвета и декоративные элементы создают атмосферу уюта и благополучия. На территории комплекса предусмотрены зоны отдыха, детские площадки и спортивные площадки, где жители могут проводить время на свежем воздухе. Также имеется озеленение территории, что создаёт приятную атмосферу для прогулок и отдыха. Над входом в подземный паркинг будет расположена дополнительная зона отдыха. На улице будет создана зелёная парковая зона, где можно будет заниматься творчеством и отдыхать.



221 964 ₽/м²
В продаже 1-комнатная квартира в ЖК Вечера. Дом бизнес-класса, состоит из 6 блок секций разной этажности: от 6 до 10 этажей, кирпичный, своя газовая котельная. Двор без машин с детскими площадками и спортивным комплексом. Окна выходят во двор в сторону Социалистического проспекта. Один взрослый собственник. Быстрый выход на сделку.











180 000 ₽/м²
Продаётся 1-комнатная квартира в строящемся доме (БС 4), срок сдачи: IV-кв. 2028, общей площадью 38.34 кв.м., на 2 этаже. Новый жилой комплекс "Фортлайф" от группы компаний "Строительный Камень ИСК" расположен по адресу: г. Барнаул, по ул. пр-кт Комсомольский.






209 642 ₽/м²
Продаётся 1-комнатная квартира в строящемся доме (Чернышевского, 39 (Дом 1)), срок сдачи: IV-кв. 2027, общей площадью 37 кв.м., на 2 этаже. Новый жилой комплекс от группы компаний "Жилищная Инициатива" расположен по адресу: г. Барнаул, по ул. Чернышевского.











160 000 ₽/м²
Продаётся 1-комнатная квартира в строящемся доме (БС 4), срок сдачи: IV-кв. 2028, общей площадью 49.71 кв.м., на 2 этаже. Новый жилой комплекс "Фортлайф" от группы компаний "Строительный Камень ИСК" расположен по адресу: г. Барнаул, по ул. пр-кт Комсомольский.





160 000 ₽/м²
Продаётся 1-комнатная квартира в строящемся доме (БС 4), срок сдачи: IV-кв. 2028, общей площадью 52.3 кв.м., на 2 этаже. Новый жилой комплекс "Фортлайф" от группы компаний "Строительный Камень ИСК" расположен по адресу: г. Барнаул, по ул. пр-кт Комсомольский.












275 729 ₽/м²
Продаётся 1-комнатная квартира в строящемся доме (Дом 1), срок сдачи: III-кв. 2027, общей площадью 47.3 кв.м., на 2 этаже. Это проект, внешний облик которого можно сравнить с произведения искусства современного классика - художника и европейского скульптора. Камерность проекта обеспечивается за счет небольшого количества квартир, обширной инфраструктурой с богатым наполнением, а также непревзойденной локацией центрального района Барнаула, которые делают "Инфинити" одним из самых привлекательных проектов в своем классе. С одной стороны - тихая уединенная улица с безопасным движением. С другой - близость никогда не спящего социалистического проспекта уютными кофейнями и ресторанами. Вы сможете отвести ребенка в детский сад, пока прогревается двигатель вашего автомобиля. Чтобы дойти до лицея - вашему ребенку нужно всего лишь перейти через дорогу.






203 800 ₽/м²
Продаётся 1-комнатная квартира в строящемся доме (Чернышевского, 39 (Дом 1)), срок сдачи: IV-кв. 2027, общей площадью 42 кв.м., на 2 этаже. Новый жилой комплекс от группы компаний "Жилищная Инициатива" расположен по адресу: г. Барнаул, по ул. Чернышевского.















| 🔷 Средняя цена продажи: | 6,7 млн ₽ |
| 🔷 Средняя цена за м2: | 172,5 тыс. ₽/м² |
| 🔷 Минимальная стоимость: | 2,3 млн ₽ |
| 🔷 Самый дорогой объект: | 13 млн ₽ |