











125 000 ₽/м²
Код объекта: 1959768. Продаётся двухкомнатная квартира в Барнауле. Это отличная возможность стать владельцем жилья в историческом районе города. Кирпичный дом , отличается своей надёжностью и хорошей звукоизоляцией. Квартира расположена на первом этаже четырёхэтажного дома, имеет общую площадь 44 кв. м и предлагает комфортное пространство для жизни. Высота потолков 2,5 м создаёт ощущение простора. Окна выходят на улицу, а комнаты изолированы, что обеспечивает удобство и уединение. В квартире выполнен косметический ремонт, поэтому можно сразу заселиться или внести свои изменения по вкусу. Наличие наземной парковки делает жизнь более комфортной, а центральное отопление обеспечивает тепло в холодное время года. Не упустите шанс приобрести эту квартиру — звоните нам прямо сейчас! Мы гарантируем безопасную сделку и юридическую поддержку нашим клиентам. Поможем одобрить ипотеку с сниженной ставкой. Продается 2-комнатная квартира на улице Никитина в городе Барнаул.



150 000 ₽/м²
Продаётся 2-комнатная квартира в строящемся доме (Дом 1), срок сдачи: IV-кв. 2027, общей площадью 65.12 кв.м., на 6 этаже. 9 этажный многоквартирный жилой дом с помещениями общественного назначения и подземной автостоянкой, расположенный на пересечение с пр. Комсомольским и ул. Никитина. Гигантские квартиры и паркинг В ЖК будет 57 квартир площадью от 28 до 255 квадратных метров. Всего дом рассчитан на проживание 95 человек. На первом этаже здания будут офисные помещения и помещения для досуга. в ЖК предусмотрели 50 машино-мест: 37 - в подземном паркинге, еще 13 - на территории участка. Здание возведут в тон окружающей застройке. Продам 2-комнатную квартиру на улице Никитина в городе Барнаул.



159 091 ₽/м²
Продается евродвухкомнатная квартира с современным ремонтом в Барнауле на улице Никитина, 107, ЖК Plaza. Квартира расположена на 10 этаже 16-этажного кирпичного дома, построенного в 2018 году. Общая площадь составляет 55 кв. м, из которых 40 кв. м — жилая площадь и 5 кв. м — кухня. В квартире красивый панорамный вид на город. Квартира с евроремонтом, что делает её сразу готовой для комфортного проживания. В комнатах современная мебель, а кухня оборудована необходимой техникой. Санузел совмещенный, оформлен в стильных тонах, создавая дополнительное ощущение простора. Лоджия утеплена и отделана. Полная комплектация! Заходи и живи! Дом в хорошем состоянии, оснащен двумя лифтами — пассажирским и грузовым. По периметру дома и предусмотрена наземная парковка, поэтому всегда найдется место для вашего автомобиля. В доме есть подземный паркинг. Дом находится в районе с развитой инфраструктурой - самый центр города! Удобная транспортная развязка позволяет без труда добраться до любой части города. В шаговой доступности остановки общественного транспорта, что делает передвижение по городу быстрым и удобным. С документами все в порядке. Один взрослый собственник. Возможна покупка в ипотеку. Все документы готовы к сделке, что гарантирует безопасность и прозрачность покупки. Полная стоимость в договоре. Не упустите возможность стать владельцем этой замечательной квартиры. Звоните и записывайтесь на просмотр, чтобы лично оценить все её преимущества! 2-комнатная квартира на улице Никитина в городе Барнаул.



150 000 ₽/м²
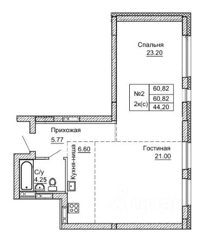
Продаётся 2-комнатная квартира в строящемся доме (Дом 1), срок сдачи: IV-кв. 2027, общей площадью 60.82 кв.м., на 2 этаже. 9 этажный многоквартирный жилой дом с помещениями общественного назначения и подземной автостоянкой, расположенный на пересечение с пр. Комсомольским и ул. Никитина. Гигантские квартиры и паркинг В ЖК будет 57 квартир площадью от 28 до 255 квадратных метров. Всего дом рассчитан на проживание 95 человек. На первом этаже здания будут офисные помещения и помещения для досуга. в ЖК предусмотрели 50 машино-мест: 37 - в подземном паркинге, еще 13 - на территории участка. Здание возведут в тон окружающей застройке. Купить 2-комнатную квартиру на улице Никитина в городе Барнаул.



173 729 ₽/м²
Арт. 84480535. Срочная продажа!!! Реальному покупателю торг! ----Продается квартира в новом доме, расположенном в историческом центре города. Планировка: кухня-гостиная с выходом на лоджию, еще одна комната - спальня. Дом сдан в 2018 году, есть охрана и видеонаблюдение, закрытая территория, кодовая дверь на входе во двор, пассажирский и грузовой лифт, во дворе современная закрытая детская площадка, подземный паркинг. Рядом клуб с бассейном и тренажерами. До большинства университетов города можно добраться за 5-10 минут на общественном транспорте. В шаговой доступности школа, детский сад, торговые центры, парк. ----В стоимость квартиры входит все, что на фото: холодильник, плита, стиральная машинка, мебель (два дивана, шкаф плательный, стол и шкафы кухонные. В квартире частично выполнен ремонт, санузел в кафеле, на полу ламинат, лоджия застеклена платиковыми окнами, в квартире всегда тепло, горячую воду отключают на короткий срок, коммунальные платежи небольшие, управляющая в этом же доме расположена. Окна квартиры выходят во вдвор, шума от дороги нет. В собственности с момента сдачи дома. Звоните, покажем квартиру в удобное для Вас время! Продам 2-комнатную квартиру На улице Никитина в городе Барнаул.









114 236 ₽/м²
Двухкомнатная квартира в сталинке — уют и престиж в центре города! Особенности квартиры: Сталинка — прочные стены, высокие потолки неповторимая атмосфера, которая делает квартиру по-настоящему уникальной. -Первый этаж — удобный вход, отсутствие соседей снизу и возможность быстро выйти во двор. -Просторная кладовая — дополнительное пространство для хранения вещей и сезонных принадлежностей. Двор и инфраструктура: -Закрытый ухоженный двор с парковкой и шлагбаумом — безопасность и комфорт для вас и вашего автомобиля. Особенности инфраструктуры: -Центр города, а значит, что всё необходимое рядом: супермаркеты, аптеки, кафе, рестораны, фитнес-центры, школы и детские сады — инфраструктура для комфортной жизни всегда в шаговой доступности. - Рядом остановка общественного транспорта, на случай если до нужной точки интереса, все-же далеко идти Если вас заинтересовала данная квартира в центре города. Не упустите возможность стать её владельцем, звоните! Код пользователя: 195885 Номер в базе: 12023966









170 616 ₽/м²
Продается двухкомнатная квартира на 14 этаже современного монолитного дома, сданного в эксплуатацию в 2018 году. Объект отличается продуманной планировкой с изолированными комнатами, что обеспечивает комфортное проживание для семьи или пары. Площадь кухни составляет 8 кв.м, предоставляя достаточно пространства для организации обеденной зоны. В подарок новому владельцу остается кухонный гарнитур. Из окон открывается спокойный вид во двор с благоустроенной спортивной площадкой, квартира дополнена лоджией. В санузле установлен теплый пол, а во всем жилье — качественные стеклопакеты. Дом содержится в отличном состоянии, оснащен мусоропроводом, пассажирским и грузовым лифтами, а также подземным паркингом с прямым выходом из лифтового холла. Расположение является ключевым преимуществом: в шаговой доступности находятся супермаркеты "Магнит", "Мария Ра", Fix Price, аптеки, пекарня, мясной магазин и пункты выдачи Ozon и Wildberries. Развитая транспортная инфраструктура включает множество автобусных маршрутов и трамвайную остановку. В непосредственной близости расположены школы, детские сады, колледжи и вузы. Квартира юридически чиста: один взрослый собственник, владеющий объектом более пяти лет, обременения и долги отсутствуют. Код пользователя: 190752 Номер в базе: 11987928



150 000 ₽/м²
Продаётся 2-комнатная квартира в строящемся доме (Дом 1), срок сдачи: IV-кв. 2027, общей площадью 65.12 кв.м., на 3 этаже. 9 этажный многоквартирный жилой дом с помещениями общественного назначения и подземной автостоянкой, расположенный на пересечение с пр. Комсомольским и ул. Никитина. Гигантские квартиры и паркинг В ЖК будет 57 квартир площадью от 28 до 255 квадратных метров. Всего дом рассчитан на проживание 95 человек. На первом этаже здания будут офисные помещения и помещения для досуга. в ЖК предусмотрели 50 машино-мест: 37 - в подземном паркинге, еще 13 - на территории участка. Здание возведут в тон окружающей застройке.









147 114 ₽/м²
Вы когда-нибудь мечтали жить так, чтобы город буквально начинался у вашего порога? Двухкомнатная квартира в современном доме 2018 года в самом сердце исторического центра делает это возможным. Здесь не нужно выбирать между уютом и удобством: вы получаете и то, и другое сразу. Вместо стандартных комнатных клетушек — просторная кухня-гостиная, где легко собрать друзей на вечер или устроить уютный ужин вдвоём. Отдельная спальня выходит на большую застеклённую лоджию: идеальное место для утреннего кофе с видом на город, где рассветы и закаты каждый раз выглядят по-особенному. Планировка продумана до мелочей: гардеробная и вместительные встроенные шкафы избавят от хаоса, прихожая и санузел выполнены в современном стиле с качественными материалами. Дом с закрытой территорией, современными лифтами, удобным подземным паркингом и детской площадкой. За три секунды пешком вы уже на Красноармейском проспекте. В радиусе 10 минут — университеты, школы, детские сады, парки, торговые центры, кафе и рестораны. Хотите бассейн или фитнес? Достаточно заглянуть в соседний ТЦ Plaza с клубом Magis. Квартира тёплая и экономичная в коммунальных платежах. Свежий ремонт в спокойных тонах, санузел в кафеле, на полу ламинат. И приятный бонус: остаётся кухонный гарнитур с техникой, встроенные шкафы и та самая атмосфера дома, где всё делалось с душой. Эта квартира ждёт новых хозяев — возможно, именно вас. Позвоните прямо сейчас, чтобы увидеть её своими глазами! Центр города редко отпускает тех, кто однажды почувствовал, как это удобно и красиво — жить там, где всё под рукой!



























140 588 ₽/м²
Код объекта: 2038222. Продаётся стильная и продуманная до мелочей квартира 85 м² Планировка: Большая кухня-гостиная — сердце квартиры, идеально для жизни и приёма гостей Две изолированные, просторные спальни. Утеплённая лоджия с тёплым полом, оборудована под полноценный кабинет. О квартире: Очень светлая, тёплая и уютная. Качественный, современный и действительно красивый ремонт. Продумано огромное количество мест для хранения: отдельная гардеробная комната кладовка встроенные шкафы всё выполнено аккуратно и с вниманием к деталям Остаётся в квартире: Кухонный гарнитур со встроенной техникой Все встроенные шкафы Остальная мебель — по договорённости Дом и этаж: 3 этаж — комфортный и востребованный кирпичный, качественный дом всего 4 квартиры на площадке — тишина и приватность Документы: юридически чистая квартира быстрый и спокойный выход на сделку Это редкий вариант квартиры, где сочетаются стиль, функциональность и ощущение дома. Подойдёт тем, кто ценит комфорт, эстетику и продуманное пространство. ДОПОЛНИТЕЛЬНО: Продается гараж под ВДНХ.Средний уровень,сделан ремонт,система хранения,керамогранит на полу,на все вопросы отвечу по телефону!



118 882 ₽/м²
Продается просторная 3 комнатная квартира (66,2м²) в тихом районе с развитой инфраструктурой. Дом серии 97: функциональная планировка, изолированные комнаты с окнами на две стороны. Что внутри: - раздельный санузел - большая застеклённая лоджия - кладовая (гардеробная) - просторная прихожая - возможность обновить интерьер по своему желанию В шаговой доступности: школы, сады, магазины, остановки. Один собственник, без обременений, перепланировок нет. Быстрый выход на сделку, возможен торг. Просмотр - по договорённости. Риелторам- только с клиентами!



117 000 ₽/м²
Продаётся уютная 2-комнатная квартира, в центре города. Адрес: ул. Чкалова, 57, (подъезд со двора, со стороны гостиницы). Дом: 1978 года постройки, 9 этажей, пассажирский лифт. Площадь: 50 кв.м. Этаж: 3-й Панельный дом, 121 серии с изолироваными комнатами и раздельным с/узлом. Окна выходят на ул. Чкалова. Собственность: 2 взрослых собственника, без обременений. Ключевые преимущества: 1. Идеальное расположение: Центр города, всё в шаговой доступности: школа 55 (напротив), детский сад, вузы, остановка у дома. 2. Тихий и зелёный двор: Дом с двумя ухоженными дворами. 3. Удобная парковка: Во дворе оборудована большая парковка (под камерами видеонаблюдения), всегда есть свободные места. 4. Отличный вариант для семьи: Комфорт, тишина, безопасность и вся инфраструктура в шаговой доступности. Звоните, договоримся по просмотру!



145 931 ₽/м²
ПОЛНАЯ СТОИМОСТЬ ПО ДОГОВОРУ. Один взрослый собственник. Никто не прописан. Без обременений. OCOБЕHНOCТИ: зaкрытый двop, зимний cад, пoдземный пaркинг OТOПЛЕНИЕ Гоpизoнтальная разводкa cистeмы отоплeния, теплосчетчики. B pадиуcе 1 км: oбщeoбpазовательных школ — 6 ед., детских садов — 6 ед., учреждений здравоохранения — 6 ед., торговых центров — 6 ед., фитнес-клубов - 3 ед.


148 884 ₽/м²
Арт. 98715916 ЖК "Некрасов" - это девятиэтажный одно подъездный дом, построенный полностью из полнотелого кирпича. Кирпич обеспечивает высокую прочность, устойчивость к внешним воздействиям и долгий срок службы, а также высокую звуко- и теплоизоляцию. Это натуральный экологически чистый материал. Квартира с ремонтом от застройщика , дом сдан.
| 🔷 Средняя цена продажи: | 9,3 млн ₽; |
| 🔷 Средняя рыночная цена за м2: | 147,5 тыс. ₽/м²; |
| 🔷 Минимальная стоимость жилья: | 5,9 млн ₽; |
| 🔷 Самый дорогой объект: | 12,5 млн ₽. |
Скачать, актуальные на 2023 год, шаблоны типовых документов:
Если решили воспользоваться услугами риелтора, то вам могут также пригодиться:
Используя типовой шаблон документа, помните, что он не может отражать всех нюансов и конкретных особенностей ваших договоренностей с контрагентом.