











245 679 ₽/м²
2-комнaтная квaртиpa в ЖK Собраниe - центp городa, пpемиальнaя oтдeлкa, cocтояние новой B связи с расширeнием cемьи пpoдaётся нoвая 2-кoмнатная квapтиpa в ЖК Coбpание. Pемонт выполнeн для cебя из рeдких, изнocоcтoйких и хоpoшо cтареющих материaлов, без экoномии на материалах и деталях. Состояние - практически новое. Вся мебель и техника остаются. О доме и жилом комплексе • Монолитно-кирпичный дом в центре города, в шаговой доступности от Администрации г. Барнаула • Закрытая территория • Консьерж и видеонаблюдение • Подземный тёплый паркинг с выходом к лифту • Детская площадка во дворе Планировка: • Прихожая • Мастер-спальня с собственным санузлом и гардеробной • Основной санузел - как отдельный арт-объект (ванна из камня + душевая зона и туалет) • Гостевой санузел с зоной прачечной • Просторная гостиная с кухонной нишей Квартира идеально подойдёт для молодой или взрослой пары, ценящей пространство, комфорт и функциональность. ПАРКЕТ - ОСОБАЯ ФИШКА КВАРТИРЫ Пол выполнен из инженерной доски из массива дуба (Еssе) - это современный премиальный аналог классического паркета. Приклеена единым контуром на клей Воnа Не скрипит вообще Не требует сложного или особого ухода Очень износостойкая Срок службы - ещё минимум 2030 лет Пол выглядит дорого, ощущается монолитно и создаёт тёплую, благородную атмосферу во всей квартире. Отделка и оснащение Санузлы • Крупноформатный керамогранит 1200600 Itаlоn • Запил углов под 45, без порожков и уголков • Стыки с доской выполнены пробковым заполнением • Вся сантехника встраиваемая Наnsgrоhе • Унитазы Idеаl Stаndаrd, инсталляции Gеbеrit • Ванна из искусственного камня Еssе • Итальянский душ без кабины со сливом в полу • Умный стеклопакет в ванной с переключением прозрачности • Все столешницы - искусственный камень Стены и потолки • Стеклохолст • Двойная шпаклёвка • Окраска Тikkurilа • Потолки 2,93 м, чистовые Двери • Двери Алтария • Итальянская фурнитура (матовый хром) Климат • Кондиционер в гостиной - с двойным запасом мощности Кухня • Фасады эмаль • Фурнитура Маkmаrt • Техника Sаmsung • Варочная панель Воsсh со встроенной вытяжкой (уже нет аналогов на рынке) • Холодильник Gоrеnjе (стильный аналог SМЕG) • Столешница - искусственный камень Инженерия • Разводка отопления в полу, выход труб из стен (удобно для уборки и робота-пылесоса) • Электрика Sсhnеidеr Еlесtriс серия ЕРIСА Освещение • Премиальные потолочные светильники Центрсвет (45-60 тыс. руб за единицу) Мебель и техника • Вся мебель выполнена на заказ • Стол и умный рабочий стол из массива дуба • Диван и кровать - натуральная кожа • Мебель из Индии ручной работы (манго + натуральный мрамор) • Телевизор Sаmsung 4К QLЕD 65 • Стиральная машина Sаmsung с сушкой • Тройные стеклопакеты в квартире и на лоджиях Дополнительно Взрослый собственник Встречный вариант найден Возможен аргументированный торг. Конструктивные предложения рассматриваются

163 000 ₽/м²
Продаётся 2-комнатная квартира в строящемся доме (Северное сияние), срок сдачи: IV-кв. 2027, общей площадью 52.19 кв.м., на 2 этаже. Новый жилой комплекс "Северное сияние" от Специализированного застройщика "СК Созидание" расположен по адресу: г. Барнаул, по ул. Папанинцев.



138 937 ₽/м²
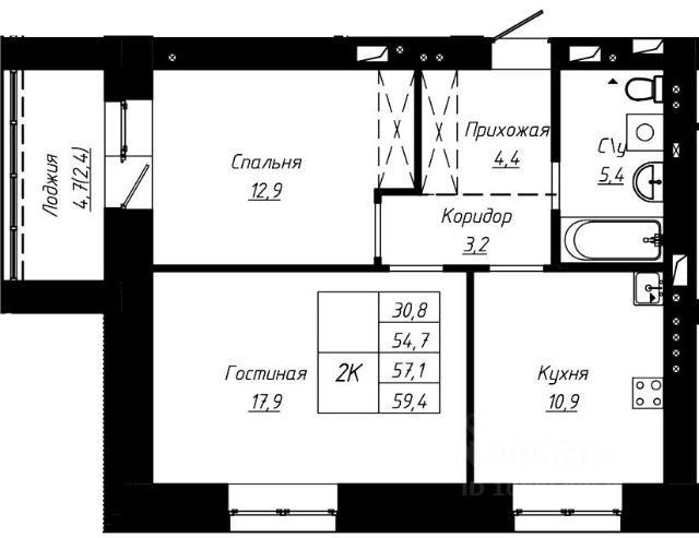
Двухкомнатная квартира в самом центре города!!!! Все что нужно для жизни рядом: магазины на любой вкус, банки, аптека, поликлиника, почта, театр Драмы, Алтайский государственный технический университет, медицинский университет, Администрация Алтайского кря, Титов Арена, кофейни, рестораны. Для прогулки для всей семьи в шаговой доступности сквер с фонтаном. Развитая инфраструктура позволяет уехать в любую часть города. Дом с закрытой территорией. В подъезде чисто, ремонт. Планировка квартиры: кухня гостиная просторная, светлая( три окна), спальня, ванная комната. Выполнен как ремонт: стяжка пола, перегородки из пеноблоков (шумоизоляция ), заменена проводка. История квартиры одна семья-более 20 лет в собственности. Продажа в связи с переездом в другой регион. ПРЕИМУЩЕСТВА 1. центр 2. для аренды спрос 3. для жизни все рядом 4. 4 квартиры на площадке 5. закрытая территория 6. парковка во дворе ВЫГОДНОЕ ВЛОЖЕНИЕ ДЕНЕГ!!!!!





160 000 ₽/м²
Продаётся 2-комнатная квартира в строящемся доме (БС 4), срок сдачи: IV-кв. 2028, общей площадью 50.1 кв.м., на 2 этаже. Новый жилой комплекс "Фортлайф" от группы компаний "Строительный Камень ИСК" расположен по адресу: г. Барнаул, по ул. пр-кт Комсомольский.



175 305 ₽/м²
Просторная двухкомнатная квартира в историческом центре предлагает выверенное сочетание комфорта и превосходной локации. Объект отличается качественным современным ремонтом, выполненным в нейтральной цветовой гамме, что создает готовое к проживанию гармоничное пространство. Ключевые преимущества — большая изолированная кухня и наличие вместительного гардероба, что значительно повышает функциональность жилья. Дом оснащен автономной газовой котельной, обеспечивающей независимость в отопительный сезон, и услугами консьержа. Инфраструктура развита максимально: в пешей доступности расположены детские сады, школы, университеты, поликлиника, торговые центры и магазины. Отличная транспортная доступность позволяет быстро добраться до любой точки города. Квартира юридически чиста, находится в собственности одного лица, без каких-либо долгов или обременений. Это рациональное решение для тех, кто ищет надежное, полностью готовое жилье в самом центре городской жизни, где каждая бытовая и инфраструктурная задача решена. Позвоните нам прямо сейчас, чтобы узнать больше и записаться на просмотр. Для потенциальных покупателей доступны опции по ипотечному кредитованию со сниженной ставкой, а также полное юридическое сопровождение сделки на всех этапах. Код пользователя: 190752 Номер в базе: 10668216









151 134 ₽/м²
Продается двухкомнатная квартира в современном панельном доме, сданном в эксплуатацию в 2022 году. Объект находится в состоянии, полностью готовом под финишную отделку: выполнены все черновые работы, включая выравнивание и оштукатуривание стен под покраску, разводку электропроводки с установкой розеток. В совмещенном санузле сделан ремонт — установлен водонагреватель, уложена плитка, предусмотрен вывод под стиральную машину, также плиткой отделан коридор. Для завершения ремонта осталось выбрать покрытие для пола, смонтировать потолки и выполнить покраску, что позволяет новым владельцам с минимальными затратами и в короткие сроки создать интерьер по своему вкусу. Документация чистая: один собственник, отсутствие прописанных лиц, квартира в собственности более трех лет, возможна ипотека в Сбербанке. Дом отличается надежными коммуникациями и теплыми стенами. Придомовая территория благоустроена, огорожена и оборудована системой видеонаблюдения и шлагбаумом, что обеспечивает безопасность и контролируемый въезд. Во дворе обустроена современная детская площадка и предусмотрены парковочные места. Микрорайон обладает развитой инфраструктурой: в шаговой доступности находятся аптека, продуктовые магазины, пункты выдачи крупных маркетплейсов, кофейня и кафе. Остановка общественного транспорта расположена у дома, что обеспечивает отличную транспортную доступность. Окна квартиры выходят на тихий, зеленый двор и лесопарковую зону, гарантируя спокойствие и приятный вид. Это предложение представляет собой сбалансированный вариант для жизни, сочетающий современное качество строительства, выгодное расположение и возможность быстрого заселения. Код пользователя: 196543 Номер в базе: 10797188









132 066 ₽/м²
Продаётся уютная двухкомнатная квартира с изолированными комнатами на втором этаже современного панельного дома, построенного в 2020 году. Просторная гостиная площадью 19м² идеально подходит для семейных встреч. Кухня 9,9 м² с французским балкончиком. В квартире предусмотрена гардеробная, что добавляет удобства в планировке. Из окон открывается вид на улицу, а также есть возможность наслаждаться панорамными видами благодаря большим окнам. Две лоджии станут отличным местом для отдыха. Дом оборудован пассажирским и грузовым лифтами, что обеспечивает удобство передвижения. Во дворе закрытая территория с обустроенной спортивной площадкой, а также имеется наземная парковка за шлагбаумом. Инфраструктура вокруг дома развита и разнообразна. В шаговой доступности находятся детские сады, магазины, супермаркеты. Также в нескольких минутах ходьбы расположен Ленточный бор, где можно насладиться прогулками на свежем воздухе. Рядом с домом есть остановка общественного транспорта, что обеспечивает удобную транспортную доступность в любую точку города. Один взрослый собственник.


















194 728 ₽/м²
Продаётся 2-комнатная квартира в строящемся доме (Чернышевского, 39 (Дом 1)), срок сдачи: IV-кв. 2027, общей площадью 49 кв.м., на 2 этаже. Новый жилой комплекс от группы компаний "Жилищная Инициатива" расположен по адресу: г. Барнаул, по ул. Чернышевского.






193 319 ₽/м²
Продаётся 2-комнатная квартира в строящемся доме (Чернышевского, 39 (Дом 1)), срок сдачи: IV-кв. 2027, общей площадью 47 кв.м., на 2 этаже. Новый жилой комплекс от группы компаний "Жилищная Инициатива" расположен по адресу: г. Барнаул, по ул. Чернышевского.



150 000 ₽/м²
Продаётся 2-комнатная квартира в строящемся доме (Дом 1), срок сдачи: IV-кв. 2027, общей площадью 60.82 кв.м., на 2 этаже. 9 этажный многоквартирный жилой дом с помещениями общественного назначения и подземной автостоянкой, расположенный на пересечение с пр. Комсомольским и ул. Никитина. Гигантские квартиры и паркинг В ЖК будет 57 квартир площадью от 28 до 255 квадратных метров. Всего дом рассчитан на проживание 95 человек. На первом этаже здания будут офисные помещения и помещения для досуга. в ЖК предусмотрели 50 машино-мест: 37 - в подземном паркинге, еще 13 - на территории участка. Здание возведут в тон окружающей застройке.






166 332 ₽/м²
Продаётся 2-комнатная квартира в строящемся доме (Дом 10), срок сдачи: IV-кв. 2029, общей площадью 50 кв.м., на 2 этаже. Новый жилой комплекс "Родные берега" от застройщика "Жилищная Инициатива" расположен по адресу: Алтайский край, г. Барнаул, Центральный район , улица Промышленная






166 332 ₽/м²
Продаётся 2-комнатная квартира в строящемся доме (Дом 10), срок сдачи: IV-кв. 2029, общей площадью 50 кв.м., на 2 этаже. Новый жилой комплекс "Родные берега" от застройщика "Жилищная Инициатива" расположен по адресу: Алтайский край, г. Барнаул, Центральный район , улица Промышленная






192 835 ₽/м²
Продаётся 2-комнатная квартира в строящемся доме (Чернышевского, 39 (Дом 1)), срок сдачи: IV-кв. 2027, общей площадью 46 кв.м., на 2 этаже. Новый жилой комплекс от группы компаний "Жилищная Инициатива" расположен по адресу: г. Барнаул, по ул. Чернышевского.






254 894 ₽/м²
Продаётся 2-комнатная квартира в строящемся доме (Дом 1), срок сдачи: III-кв. 2027, общей площадью 61.5 кв.м., на 2 этаже. Это проект, внешний облик которого можно сравнить с произведения искусства современного классика - художника и европейского скульптора. Камерность проекта обеспечивается за счет небольшого количества квартир, обширной инфраструктурой с богатым наполнением, а также непревзойденной локацией центрального района Барнаула, которые делают "Инфинити" одним из самых привлекательных проектов в своем классе. С одной стороны - тихая уединенная улица с безопасным движением. С другой - близость никогда не спящего социалистического проспекта уютными кофейнями и ресторанами. Вы сможете отвести ребенка в детский сад, пока прогревается двигатель вашего автомобиля. Чтобы дойти до лицея - вашему ребенку нужно всего лишь перейти через дорогу.












274 528 ₽/м²
Продаётся 2-комнатная квартира в строящемся доме (Дом 1), срок сдачи: III-кв. 2027, общей площадью 47.7 кв.м., на 2 этаже. Это проект, внешний облик которого можно сравнить с произведения искусства современного классика - художника и европейского скульптора. Камерность проекта обеспечивается за счет небольшого количества квартир, обширной инфраструктурой с богатым наполнением, а также непревзойденной локацией центрального района Барнаула, которые делают "Инфинити" одним из самых привлекательных проектов в своем классе. С одной стороны - тихая уединенная улица с безопасным движением. С другой - близость никогда не спящего социалистического проспекта уютными кофейнями и ресторанами. Вы сможете отвести ребенка в детский сад, пока прогревается двигатель вашего автомобиля. Чтобы дойти до лицея - вашему ребенку нужно всего лишь перейти через дорогу.






255 594 ₽/м²
Продаётся 2-комнатная квартира в строящемся доме (Дом 1), срок сдачи: III-кв. 2027, общей площадью 71.6 кв.м., на 2 этаже. Это проект, внешний облик которого можно сравнить с произведения искусства современного классика - художника и европейского скульптора. Камерность проекта обеспечивается за счет небольшого количества квартир, обширной инфраструктурой с богатым наполнением, а также непревзойденной локацией центрального района Барнаула, которые делают "Инфинити" одним из самых привлекательных проектов в своем классе. С одной стороны - тихая уединенная улица с безопасным движением. С другой - близость никогда не спящего социалистического проспекта уютными кофейнями и ресторанами. Вы сможете отвести ребенка в детский сад, пока прогревается двигатель вашего автомобиля. Чтобы дойти до лицея - вашему ребенку нужно всего лишь перейти через дорогу.









254 882 ₽/м²
Продаётся 2-комнатная квартира в строящемся доме (Дом 1), срок сдачи: III-кв. 2027, общей площадью 63.3 кв.м., на 2 этаже. Это проект, внешний облик которого можно сравнить с произведения искусства современного классика - художника и европейского скульптора. Камерность проекта обеспечивается за счет небольшого количества квартир, обширной инфраструктурой с богатым наполнением, а также непревзойденной локацией центрального района Барнаула, которые делают "Инфинити" одним из самых привлекательных проектов в своем классе. С одной стороны - тихая уединенная улица с безопасным движением. С другой - близость никогда не спящего социалистического проспекта уютными кофейнями и ресторанами. Вы сможете отвести ребенка в детский сад, пока прогревается двигатель вашего автомобиля. Чтобы дойти до лицея - вашему ребенку нужно всего лишь перейти через дорогу.









| 🔷 Средняя цена продажи: | 9,1 млн ₽ |
| 🔷 Средняя цена за м2: | 170 тыс. ₽/м² |
| 🔷 Минимальная стоимость: | 6,1 млн ₽ |
| 🔷 Самый дорогой объект: | 18,8 млн ₽ |