











182 561 ₽/м²
Квартира расположена в современном жилом комплексе комфорт-класса в престижном районе города. Общая площадь 37.2 м2 включает просторную гостиную-столовую, изолированную спальню, с выходом на застекленную лоджию. Санузел совмещенный - 4 м2. Квартира с ремонтом от застройщика с улучшенной черновой отделкой, что дает вам возможность сделать ремонт по собственному проекту. Просторная квартира на девятом этаже, монолитно-кирпичный дом, окна во двор на солнечную сторону, со светлой застекленной лоджией. ЖК Современник находится в самом центре города, в очень красивом и динамично развивающемся районе. Рядом находятся Медицинский, Педагогический, Сельскохозяйственный ВУЗЫ, Академия РАНХиГС. Отличный вариант первого жилья для студента. 5 минут пешком и вы на Красноармейском проспекте. Объект подходит как для комфортного постоянного проживания семьи, так и в качестве долгосрочной инвестиции благодаря высокой ликвидности и стабильному спросу на недвижимость в данной локации. Звоните отвечу на все интересующие вас вопросы. Код пользователя: 190831 Номер в базе: 12045329









176 243 ₽/м²
КЛЮЧИ ПОЛУЧЕНЫ !!!!! ОРГАНИЗУЕМ ПОКАЗ В ЛЮБОЕ ДЛЯ ВАС ВРЕМЯ !!!! Готовы к комфорту и выгодным инвестициям? Представляем вашему вниманию евро 2-комнатную квартиру в самом центре города! Это не просто квартира, это возможность жить в престижном районе, наслаждаясь абсолютным городским комфортом и отличной транспортной доступностью. Преимущества, которые вы оцените: Дом СДАН! Никаких ожиданий заходите и начинайте делать ремонт по своему вкусу! Идеальное Расположение: Центр города это синоним престижа и удобства. Учебные заведения: Несколько престижных вузов и колледжей в шаговой доступности. Идеально для жизни студентов или как выгодная инвестиция под сдачу. Школы: Отличный вариант для семей с детьми, которым важна близость к образовательным учреждениям. Магазины и вся инфраструктура: Все необходимое от продуктов до развлечений в пределах нескольких минут ходьбы. Если остались вопросы ? звоните !



















































150 316 ₽/м²
Квартира после ремонта! В одном тамбуре с 3-х комнатной квартирой, которая тоже выставлена на продажу! Отличный вариант для большой семьи.! Квартира без обременения, долгов, детских долей, вся сумма в ДКП. В собственности более 5ти лет! Садик, школу видно из окна! В пошаговой доступности остановки, магазин "Лента", аптеки и тд. Показываем в любое время!



130 000 ₽/м²
Продам уютную и светлую 1-комнатную квартиру идеальный вариант для тех, кто ценит комфорт! Свежий ремонт с использованием качественных материалов создает приятную атмосферу, а частичное наличие мебели позволит вам обустроиться без лишних хлопот. Просто заезжайте и наслаждайтесь жизнью в вашей новой квартире! Дом находится в живописном, зеленом районе, где вся необходимая инфраструктура буквально под рукой: удобные остановки общественного транспорта, торговые центры для шопинга, продуктовые магазины и аптеки всё в шаговой доступности. Не упустите свой шанс! Звоните, приходите на просмотр! Код пользователя: 201297 Номер в базе: 12464895



117 000 ₽/м²
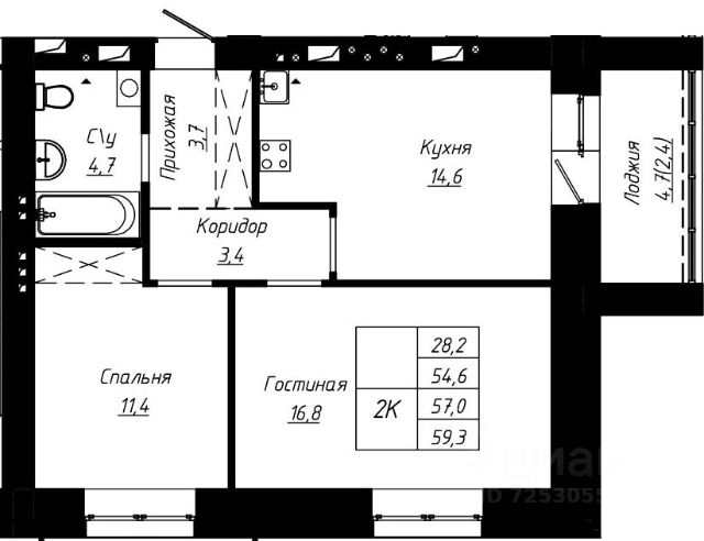
Продаётся уютная 2-комнатная квартира, в центре города. Адрес: ул. Чкалова, 57, (подъезд со двора, со стороны гостиницы). Дом: 1978 года постройки, 9 этажей, пассажирский лифт. Площадь: 50 кв.м. Этаж: 3-й Панельный дом, 121 серии с изолироваными комнатами и раздельным с/узлом. Окна выходят на ул. Чкалова. Собственность: 2 взрослых собственника, без обременений. Ключевые преимущества: 1. Идеальное расположение: Центр города, всё в шаговой доступности: школа 55 (напротив), детский сад, вузы, остановка у дома. 2. Тихий и зелёный двор: Дом с двумя ухоженными дворами. 3. Удобная парковка: Во дворе оборудована большая парковка (под камерами видеонаблюдения), всегда есть свободные места. 4. Отличный вариант для семьи: Комфорт, тишина, безопасность и вся инфраструктура в шаговой доступности. Звоните, договоримся по просмотру!



144 156 ₽/м²
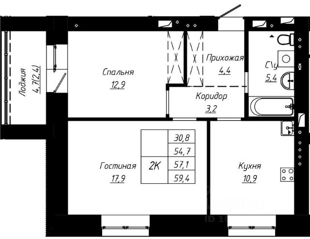
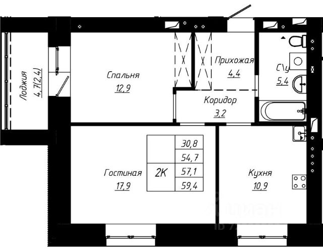
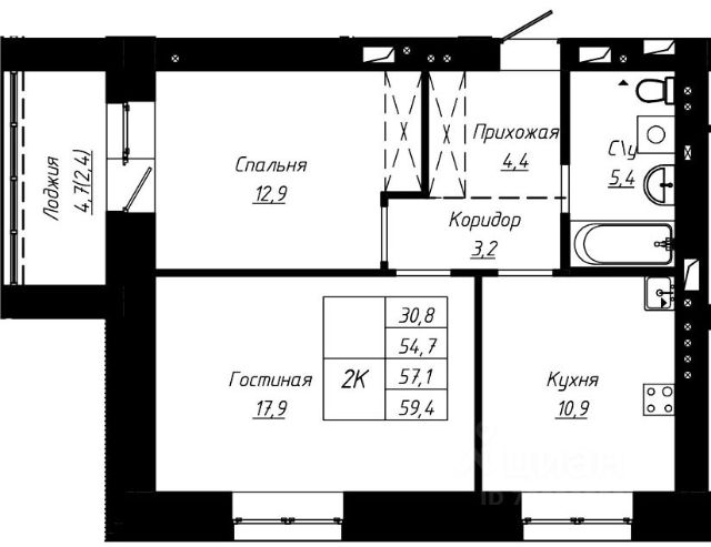
Код объекта: 2088009. Уникальное предложение на рынке недвижимости Барнаула: трёхкомнатная квартира в современном жилом комплексе Адалин. Просторная квартира площадью 69,3 кв. идеально подойдёт для семей, ценящих комфорт и функциональность. Два раздельных санузла — дополнительное удобство для вашей семьи. Также изюминка этой квартиры наличие отдельной постирочной. Квартира расположена на 12-м этаже 22-этажного кирпично-монолитного дома, построенного в 2025 году. Ремонт white box позволяет воплотить любые дизайнерские идеи. Увеличенные окна, выходящие на улицу, обеспечивают естественное освещение и приятный вид. Удачное расположение квартиры и видовой этаж дает возможность встречать рассветы и закаты. Подземная парковка гарантирует безопасность вашего автомобиля, а центральное отопление создаёт комфортные условия проживания в любое время года. Также вместе с квартирой есть возможность приобрести кладовую на первом этаже корпуса. Звоните нам прямо сейчас, чтобы узнать больше и записаться на просмотр! Мы гарантируем безопасную сделку и юридическую поддержку нашим Клиентам. Поможем одобрить ипотеку с сниженной ставкой.



134 848 ₽/м²
Продам светлую уютную 1 к кв на комфортном 2 этаже. Из окон открывается приятный вид на тихий двор, где расположены детская и спортивная площадки, что делает этот вариант особенно привлекательным для семей с детьми. Квартира в отличном состоянии, укомплектована мебелью Благодаря удачному расположению дома можно быстро уехать в любой район города, В шаговой доступности школа, детский сад, торговые центры. -Этот вариант идеально подойдёт тем, кто ценит комфорт, удобство расположения и готовое к проживанию жильё. Один взрослый собственник, прописанных нет. Продажа не привязана к последующей покупке. Приглашаем на просмотр! Возможен обмен на вашу недвижимость. Возможна продажа в рассрочку. При звонке, пожалуйста, сообщите номер варианта - JV001022120706.
✓ Средняя цена продажи: 9,2 млн ₽ в Барнауле
✓ Цена за м²: 193 тыс. ₽/м²
✓ Минимальная цена: 6,4 млн ₽, максимум: 9,2 млн ₽