145 000 ₽/м²
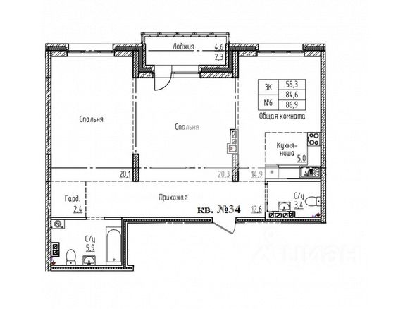
Арт. 129251033 Жилой комплекс "Старый город" находится в границах улиц Никитина, Короленко, Красноармейского и Социалистического проспектов в Центральном районе Барнаула. ЖК Старый город (строительный адрес: Короленко, 86) - это 9-этажный дом повышенной комфортности, который состоит из двух подъездов. В новостройке 103 квартиры площадью от 29 до 116 кв.м. На первом этаже предусмотрены помещения для коммерческого использования с отдельными входами. Преимущества ЖК Старый город: монолитно-кирпичная новостройка класса комфорт; коммерческие помещения на 1 этаже; под двором запроектирован паркинг на 39 машино-мест; более одного санузла в крупногабаритных квартирах; на -1 этаже находятся пять кладовых; школы и детские сады в пешей доступности. Застройщик передает квартиры с выполнением следующих видов работ: проводится улучшенная штукатурка стен осуществляется стяжка пола цементно-песчаным раствором устанавливаются оконные блоки из поливинилхлоридных профилей с двухкамерным стеклопакетом, без откосов и подоконников устанавливаются витражи квартир из алюминиевых профилей с заполнением двухкамерными стеклопакетами осуществляется остекление лоджий из поливинилхлоридных профилей с однокамерными стеклопакетами, без откосов и подоконников металлические входные двери устанавливаются без отделки откосов проводится монтаж систем водоснабжения и канализации: ввод холодной и горячей воды, ввод канализации, установка приборов учета холодного/горячего водоснабжения проводится монтаж горизонтальной системы отопления с установкой радиаторов или конвекторов отопления, установка счетчиков учета тепла. Сдача дома 1 квартал 2026 года. Передача объектов долевого строительства май 2026 г. Полное бесплатное сопровождение сделки, ипотека в подарок. Купить 3-комнатную квартиру на улице Короленко в городе Барнаул.




































































