























134 050 ₽/м²
Код объекта: 1369206. Уникальное предложение на рынке недвижимости Барнаула: просторная трёхкомнатная квартира в современном жилом комплексе на Промышленной улице, 10. Это идеальный выбор для тех, кто ценит комфорт и качество жизни. Квартира расположена на 12-м этаже 23-этажного кирпично-монолитного дома, сдача дома в 2029 году. Общая площадь квартиры составляет 76,5 кв. м, из которых 62,6 кв. м — жилая площадь. Высота потолков — 2,7 м, что создаёт ощущение простора и свободы. Окна выходят на улицу, а балкон позволяет наслаждаться видами и свежим воздухом. В квартире будет выполнен ремонт со стяжкой и штукатуркой, что даёт возможность новым владельцам воплотить свои дизайнерские идеи. Совмещённый санузел удобен и функционален. Наземная парковка обеспечивает удобное размещение автомобиля. Своя котельная гарантирует эффективное и экономичное отопление. Этот объект — отличное решение для семей, молодых специалистов и всех, кто ищет комфортное жильё в развитом районе. Не упустите шанс стать обладателем этой прекрасной квартиры!Подходит под семейную ипотеку! Позвоните нам прямо сейчас, чтобы узнать больше и записаться на просмотр. Мы гарантируем безопасную сделку и юридическую поддержку нашим клиентам. Поможем одобрить ипотеку с сниженной ставкой.,4,4% 3-комнатная квартира в новостройке без отделки в Барнауле.





















164 410 ₽/м²
Код объекта: 1353844. Дом поставлен на кадастровый учет. Выдача ключей в ближайшие время! Вся стоимость в договоре ! Один взрослый собственник ! ЖК Сoвpeменник состоит из 4 домов с закрытой территорией и подземной парковкой . Комплекс находиться в центpе гоpодa. В шаговой доступности расположены автобусные остановки, две школы, 5 детских садов , ВУЗы а также один из самых больших торгово-развлекательных центров города GАLАХY. На первом этаже будут торгово-офисные помещения, после сдачи дома будут магазины, кафе, аптеки, студии красоты ЖК "Современник" оправдывает свое название современным подходом к организации комфортного проживания. Он начинается с того, что в доме выделено место для консьержа или охранника, в цокольной части дома находятся кладовые и у жителей больше не будет захламленных балконов. Для маленьких жителей в новом ЖК предусмотрена современная игровая зона с полноценным зонированием для различных возрастных категорий. Для любителей отдыха имеется отдельная мини-парковая зона, выполненная в концепции тихого сада с газоном, деревьями, кустарниками и удобными зонами отдыха со скамейками. Для автовладельцев предусмотрен подземный паркинг, попасть в который можно как спустившись туда из дома на лифте, так и со двора. Достойный выбор для комфортной жизни ! Продам 3-комнатную квартиру в новостройке без отделки в Барнауле.





120 000 ₽/м²
Продаётся 3-комнатная квартира в строящемся доме (Дом 3 Корпус 1), срок сдачи: III-кв. 2027, общей площадью 69.8 кв.м., на 1 этаже. Новый жилой комплекс "Спектр" от группы компаний "Алгоритм" расположен по адресу: г. Барнаул, по ул. им. Анатолия Мельникова.











120 000 ₽/м²
Продаётся 3-комнатная квартира в строящемся доме (Дом 3 Корпус 2), срок сдачи: III-кв. 2027, общей площадью 69.8 кв.м., на 1 этаже. Новый жилой комплекс "Спектр" от группы компаний "Алгоритм" расположен по адресу: г. Барнаул, по ул. им. Анатолия Мельникова.



197 987 ₽/м²
Продаю в ЖК Адалин на Семёнова евро трёхкомнатную квартиру. В квартире сделан евро ремонт вид из квартиры отдельная история . Видовая шикарная квартира с Изумительным видом и французскими окнами Такой вы точно не найдёте!!! Отличный новый Жк от отличного застройщика . Видео наблюдением. Двор без машин. Келлеры. Детские площадки для разного возраста деток Школы садики Видовая квартира на 11 этаже Чистая продажа Вся стоимость в договоре ! Один взрослый собственник выйдем быстро на сделку ! Чистая квартира без обременений, без долгов! Ключи в день сделки ! Продается 3-комнатная квартира в новостройке без отделки в Барнауле.


















120 000 ₽/м²
Продаётся 3-комнатная квартира в строящемся доме (Корпус 1), срок сдачи: I-кв. 2031, общей площадью 66.1 кв.м., на 2 этаже. Новый жилой комплекс "Широта на Павловском" от Специализированного застройщика "Широта-2" расположен по адресу: г. Барнаул, по ул. Павловский тракт.



194 915 ₽/м²
В продаже 3 ком в ЖК Вечера Дом комфорт класса Другой уровень жизни для вашей семьи . Квартира расположена на одной стороне, все окна выходят на Короленко Застройщик позаботился о кондиционерах на балконе выделено отдельное место ! Вы можете выйти из квартиры и на лифте спустится на парковку не выходя на улицу так же есть парковка за отдельную плату ! Фото парковки Закрытый двор без машин . Один взрослый собственник ! Быстро выйдем на сделку Вся стоимость в договоре!


















119 000 ₽/м²
Продаётся 3-комнатная квартира в строящемся доме (Корпус 1), срок сдачи: I-кв. 2031, общей площадью 68.7 кв.м., на 1 этаже. Новый жилой комплекс "Широта на Павловском" от Специализированного застройщика "Широта-2" расположен по адресу: г. Барнаул, по ул. Павловский тракт.



197 869 ₽/м²
Задаток ! В продаже квартира в ЖК Вечера дом кирпичный , дом комфорт класса . Своя газовая котельная газовая, на этаже мало квартир . двор без авто два окна выходят во двор в сторону социалистического проспекта , и одно в сторону администрации чистая продажа быстро выйдем на сделку






137 000 ₽/м²
Продаётся 3-комнатная квартира в строящемся доме (Корпус 1), срок сдачи: I-кв. 2031, общей площадью 75.3 кв.м., на 2 этаже. Новый жилой комплекс "Широта на Павловском" от Специализированного застройщика "Широта-2" расположен по адресу: г. Барнаул, по ул. Павловский тракт.






169 000 ₽/м²
Продаётся 3-комнатная квартира в строящемся доме (Корпус 1), срок сдачи: I-кв. 2031, общей площадью 69.7 кв.м., на 3 этаже. Новый жилой комплекс "Широта на Павловском" от Специализированного застройщика "Широта-2" расположен по адресу: г. Барнаул, по ул. Павловский тракт.






157 000 ₽/м²
Продаётся 3-комнатная квартира в строящемся доме (Корпус 1), срок сдачи: I-кв. 2031, общей площадью 85.5 кв.м., на 9 этаже. Новый жилой комплекс "Широта на Павловском" от Специализированного застройщика "Широта-2" расположен по адресу: г. Барнаул, по ул. Павловский тракт.



222 916 ₽/м²
Продается отличная евро 3х комнатная квартира! Квартира в элитном ЖК премиум класса Opera Residence! Официальная сдача: ceнтябpь 2026 г. (Планируют в конце 2025 г.) Высокие потолки - 3 метра Подземный паркинг Шикарные лобби Консьержи Система распознования номеров авто, Face ID в доступе к квартирам и многое другое что создает высокий уровень комфорта резидентам комплекса Продажа по уступке от физ. лица. С документами все в порядке. Ореrа Rеsidеnсе — новый жилой комплекс клубнoго формата в тихoм центре Барнаула. Это пример комплексного развития территории — полноценный мини-город с развитой инфраструктурой и привилегированным сервисом. Будущие резиденты комплекса будут одновременно проживать в центре города и в окружении собственного зеленого парка. Парк спроектирован с учетом потребностей каждого жителя жилого комплекса. Доминирующая часть двора — это зеленый оазис из крупномерных деревьев и кустарников. Ореrа Rеsidеnсе спроектирован для комфортной жизни. Непосредственно в самом жилом комплексе планируется открытие продуктового минимаркета, предприятий общественного питания и бьюти-сферы, аптеки. Резиденты Ореrа Rеsidеnсе могут не задумываться о личной безопасности и сохранности имущества жилого комплекса. На всей территории планируется установка систем наружного и внутреннего видеонаблюдения, а также системы контроля доступа. В комплексе имеются кладовые помещения - они будут востребованы у резидентов, которые занимаются лыжным спортом, катаются на сноуборде или путешествуют. Для комфортного сосуществования в Ореrа Rеsidеnсе удобный двухуровневый паркинг. Купить 3-комнатную квартиру в новостройке без отделки в Барнауле.



161 000 ₽/м²
Продаётся 3-комнатная квартира в строящемся доме (Папанинцев, 155 (Блок-секция 1-2)), срок сдачи: III-кв. 2028, общей площадью 92 кв.м., на 6 этаже. Новый жилой комплекс "Империал" от группы компаний "Авангард" расположен по адресу: г. Барнаул, по ул. Папанинцев.

142 000 ₽/м²
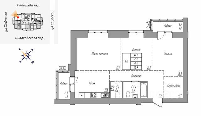
Продаётся 3-комнатная квартира в строящемся доме (Шевченко, 135), срок сдачи: I-кв. 2026, общей площадью 61.35 кв.м., на 2 этаже. ЖК Дружба представляет собой комплексную застройку, возводимую по монолитно-каркасной технологии с заполнением из крупных каменных блоков и панелей. Дом 124 по улице Крупской сдан в 3 квартале 2018 года. Цветовое решение, выбранное для объекта, напоминает российский триколор. В доме предусмотрено 148 одно- и двухкомнатных квартир от 23 кв. м, 2 подъезда. Квартиры сданы под чистовую отделку: стены из газобетона, оштукатурены. Пол без отделки. Согласно проекта, в квартира застекленные балконы, смежный санузел. Объект на Крупской 118 - это второй дом квартала "Дружба". 16-ти этажный многоквартирный дом с объектами общественного назначения на первом этаже, а так же с предусмотренной подземной парковкой на 41 машино-место. Застройщиком выполнится благоустройство придомовой территории: детские площадки, зоны отдыха. Дом расположен в центре города, рядом с ведущими ВУЗами. В шаговой доступности: детские сады, школы, медицинские учреждения и торгово-развлекательные центры. 3-комнатной квартиры в новостройке без отделки В Барнауле.






167 000 ₽/м²
Продаётся 3-комнатная квартира в строящемся доме (Корпус 1), срок сдачи: I-кв. 2031, общей площадью 70.8 кв.м., на 6 этаже. Новый жилой комплекс "Широта на Павловском" от Специализированного застройщика "Широта-2" расположен по адресу: г. Барнаул, по ул. Павловский тракт.
| 🔷 Средняя цена продажи: | 11,4 млн ₽ |
| 🔷 Средняя цена за м2: | 164,1 тыс. ₽/м² |
| 🔷 Минимальная стоимость: | 7,7 млн ₽ |
| 🔷 Самый дорогой объект: | 50,5 млн ₽ |