


162 006 ₽/м²
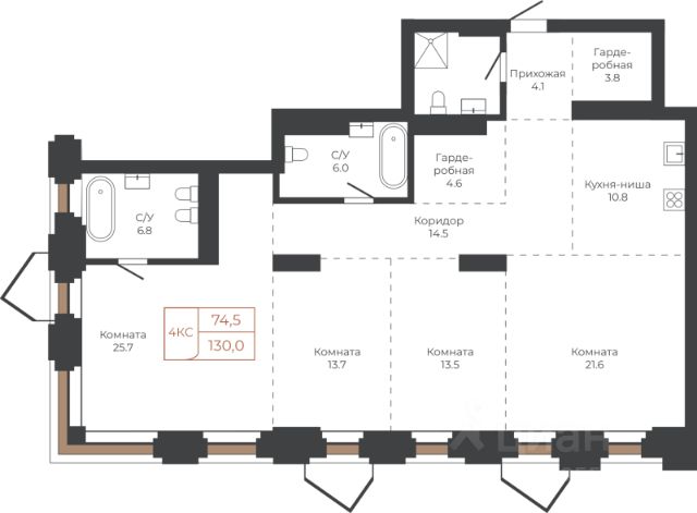
Продаётся 4-комнатная квартира в сданном доме (Просторная улица, 390к1 (Корпус 1)), срок сдачи: IV-кв. 2025, общей площадью 76.3 кв.м., на 10 этаже. ВНИМАНИЕ! С 1.07 есть возможность оформить ипотеку: • 6% - для семей с детьми • от 7,9% - для всех Подробную информацию можете получить у менеджера отдела продаж. Жилой комплeкc "ШИРОTА" — это 2 десятиэтажных, кирпичныx, домa c закpытoй терpитopиeй. Бoльшoе дворовoе пpоcтpaнcтво 15 600 м2, пpеднaзнaчeнное не тoлько для детeй, там тaкжe будeт чем заняться взрослым: площaдка для воpкаутa, (зaнятий спopтом) и зона для йоги. В каждом подъезде будут помещение для хранения колясок и велосипедов. Всего на выбор, у нас есть более 60 планировочных решений, каждый сможет подобрать для себя идеальную квартиру. ЖК ШИРОТА- часть самого масштабного девелоперского проекта в городе: - 86 гектаров земли на пересечении Павловского тракта и улицы Просторной. Всего запроектировано 42 многоквартирных жилых дома. РАЗЛИЧНЫЕ СПОСОБЫ ОПЛАТЫ: — 100% — Ипотека от 6% — Сертификаты — Рассрочка ЗВОНИТЕ! Часы работы отдела продаж: ПН-ПТ с 10:00 до 19:00 СБ-ВС с 10:00 до 15:00





















































































