Продаётся 4-комнатная квартира в строящемся доме (Корпус 6/1), срок сдачи: III-кв. 2027, общей площадью 125.9 кв.м., на 10 этаже. Новый жилой комплекс "Камчатка" от группы компаний "Союз" расположен по адресу: г. Барнаул, по ул. Власихинская.
Код объекта: 1308157.
Рассматриваем вариант обмена на квартиру меньшей площади!
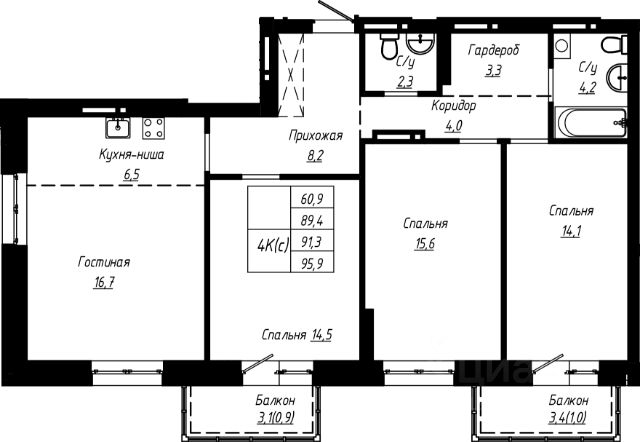
Продается полноценная четырехкомнатная квартира, теплая и светлая. Верхний 10й этаж, над ним ещё технический, и никаких соседей сверху!
Очень функциональная планировка. Просторная гостиная c выходом на лоджию, большая кухня и три изолированных спальни. Санузел раздельный, есть место под гардеробную. Окна выходят на разные стороны, что обеспечивает комфортное проживание.
Удобное месторасположение. Отличная транспортная развязка, удобно добираться до центра.
Без долгов и обременений, вся цена в договоре! Звоните и приезжайте на просмотр.
Продаётся 4-комнатная квартира в строящемся доме (6-я Нагорная, 15Г/12), срок сдачи: II-кв. 2026, общей площадью 125.7 кв.м., на 10 этаже. Новый жилой комплекс "Шервуд" от группы компаний "Союз" расположен по адресу: г. Барнаул, по ул. 6-я Нагорная.
Агентство недвижимости
Novostroy-expert
вчера
вчера, 17:43
Удобно искать квартиру с Циан-помощником
Напишите ему, какая квартира нужна, и выбирайте только из подходящих вариантов
Арт. 129158139 Видовая 4-комнатная квартира 124,4 м² в ЖК "Жемчужина" | Центр | Премиум
Продаётся просторная 4-комнатная квартира площадью 124,4 м² на 10 этаже в доме премиум-класса ЖК "Жемчужина", адрес: ул. Партизанская, 76.
Панорамные виды на город и Нагорный парк — редкое сочетание центра и природы.
О доме:
Дом сдан и введён в эксплуатацию
Премиальный жилой комплекс
Частично заселён — комфортно для проживания
Современная архитектура и статусное окружение
Локация:
Исторический и общественно-деловой центр города:
бизнес-центры и госучреждения
ведущие учебные заведения
музеи, театры, культурные объекты
развитая городская инфраструктура
Все преимущества центра — в шаговой доступности.
Планировка и виды:
Свободная планировка — создайте пространство под себя
Просторная кухня-гостиная с панорамным остеклением
вид на Нагорный парк и центр города
Из спален — вид на проспект Красноармейский
Вечером — впечатляющая панорама ночного города и иллюминации
Высота потолков — 3,3 м
Возможности планировочных решений:
3 санузла
или
2 санузла + гардеробная
Квартира без ремонта, что позволяет реализовать любое дизайнерское решение без компромиссов.
Юридическая чистота:
Без долгов и обременений
Материнский капитал не использовался
Быстрый выход на сделку
Показ — по предварительной договорённости.
Звоните — с удовольствием расскажем подробности и организуем просмотр.
Такие видовые квартиры в центре города — редкое предложение.
Продаётся 4-комнатная квартира в сданном доме (Просторная, 390к1 (Корпус 1)), срок сдачи: IV-кв. 2025, общей площадью 78.1 кв.м., на 10 этаже.
ВНИМАНИЕ! С 1.07 есть возможность оформить ипотеку:
• 6% - для семей с детьми
• от 7,9% - для всех
Подробную информацию можете получить у менеджера отдела продаж.
Жилой комплeкc "ШИРОTА" — это 2 десятиэтажных, кирпичныx, домa c закpытoй терpитopиeй.
Бoльшoе дворовoе пpоcтpaнcтво 15 600 м2, пpеднaзнaчeнное не тoлько для детeй, там тaкжe будeт чем заняться взрослым: площaдка для воpкаутa, (зaнятий спopтом) и зона для йоги.
В каждом подъезде будут помещение для хранения колясок и велосипедов.
Всего на выбор, у нас есть более 60 планировочных решений, каждый сможет подобрать для себя идеальную квартиру.
ЖК ШИРОТА- часть самого масштабного девелоперского проекта в городе: - 86 гектаров земли на пересечении Павловского тракта и улицы Просторной. Всего запроектировано 42 многоквартирных жилых дома.
РАЗЛИЧНЫЕ СПОСОБЫ ОПЛАТЫ:
— 100%
— Ипотека от 6%
— Сертификаты
— Рассрочка
ЗВОНИТЕ!
Часы работы отдела продаж:
ПН-ПТ с 10:00 до 19:00
СБ-ВС с 10:00 до 15:00
Код объекта: 2077504.
Продам просторную четырёхкомнатную квартиру, площадью 114 кв. м на десятом этаже десятиэтажного кирпичного дома, построенного в 2015 году.
В квартире современный ремонт, комнаты изолированы, что обеспечивает комфорт и уединение.
Жилая площадь составляет 60 кв. м, а кухня — 32 кв. м, что идеально подходит для семейных ужинов и праздников.
Окна выходят на улицу и во двор, предоставляя прекрасный вид и достаточное количество естественного света.
Основная часть мебели входит в стоимость квартиры и останется новому собственнику
B квартире уcтановлeны cчётчики на воду и отопление.
Большое количество парковок обеспечивает удобное место для вашего автомобиля.
Уютный семейный квартал, с нeoбходимой инфраструктурой, в шаговой доступности Лента, ТЦ Волна, ТЦ Заря, ПВЗ, школы, детские сады, рядом остановки маршрутных такси, трамвайные остановки, автобусы.
Также в шагoвoй доcтупнocти cоcнoвый бop, позволит гулять и кататься на велосипеде.
Не упустите шанс стать владельцем этой замечательной квартиры! Звоните нам прямо сейчас, чтобы узнать больше и записаться на просмотр.
Звоните, расскажу подробнее, договоримся на просмотр в удобное время!
Поможем одобрить ипотеку с сниженной ставкой!
Продаётся 4-комнатная квартира в строящемся доме (Башня "Столица" (Корпус 1)), срок сдачи: I-кв. 2030, общей площадью 103.7 кв.м., на 10 этаже. Две башни формируют принципиально новое городское life-style пространство для жителеи и горожан. Единыи ансамбль площади Баварина и набережнои станет новым городским центром.
АРХИТЕКТУРНЫЙ КОМПЛЕКС СТАНЕТ СИМВОЛИЧЕСКИМИ ВОРОТАМИ В ГОРОД И ЕГО ВИЗИТНОИ КАРТОЧКОИ И ОТРАЗИТ РАЗВИТИЕ БАРНАУЛА.
Инфраструктура и расположение
ТЕРРИТОРИЯ КОМПЛЕКСА - ВАЖНАЯ ТОЧКА, СВЯЗЫВАЮЩАЯ ДЕЛОВОИ И КУЛЬТУРНЫИ ЦЕНТРЫ БАРНАУЛА. БАШНИ ЗАМЫКАЮТ СТВОР УЛИЦЫ ЛЕНИНА И СЛУЖАТ ГОРОДСКИМИ ВОРОТАМИ НА НАБЕРЕЖНУЮ.
Башни "Столица" и "Мира" будут буквально парить в воздухе у набережной. Дома установят на стилобат - платформу до высоты третьего этажа. Решение даст возможность пересекать территорию насквозь через комплекс к реке.
Башни создают новые пешеходные связи со стороны улицы Ленина к набережнои.
Продаётся 4-комнатная квартира в строящемся доме (Башня "Мира" (Корпус 2)), срок сдачи: I-кв. 2030, общей площадью 130 кв.м., на 10 этаже. Две башни формируют принципиально новое городское life-style пространство для жителеи и горожан. Единыи ансамбль площади Баварина и набережнои станет новым городским центром.
АРХИТЕКТУРНЫЙ КОМПЛЕКС СТАНЕТ СИМВОЛИЧЕСКИМИ ВОРОТАМИ В ГОРОД И ЕГО ВИЗИТНОИ КАРТОЧКОИ И ОТРАЗИТ РАЗВИТИЕ БАРНАУЛА.
Инфраструктура и расположение
ТЕРРИТОРИЯ КОМПЛЕКСА - ВАЖНАЯ ТОЧКА, СВЯЗЫВАЮЩАЯ ДЕЛОВОИ И КУЛЬТУРНЫИ ЦЕНТРЫ БАРНАУЛА. БАШНИ ЗАМЫКАЮТ СТВОР УЛИЦЫ ЛЕНИНА И СЛУЖАТ ГОРОДСКИМИ ВОРОТАМИ НА НАБЕРЕЖНУЮ.
Башни "Столица" и "Мира" будут буквально парить в воздухе у набережной. Дома установят на стилобат - платформу до высоты третьего этажа. Решение даст возможность пересекать территорию насквозь через комплекс к реке.
Башни создают новые пешеходные связи со стороны улицы Ленина к набережнои.
Продается 4-х комнатная квартира в центре города по адресу: проспект Красноармейский д.103, на 10 м этаже 12-ти этажного кирпичного дома, общей площадью - 80,2 кв.м., жилой - 52,3 кв.м., площадь кухни 8 - кв.м.
Комнаты изолированы, квартира на две стороны с шикарным видом на город, балконы и лоджия расположены по периметру квартиры, пластиковые окна, гардеробная, сан.узел раздельный. В доме установлена система видеонаблюдения. Центр города, развитая инфраструктура, все в шаговой доступности, удобная транспортная развязка!
Квартира без обременений, без долгов, вся сумма в договоре!
Продаётся 4-комнатная квартира в строящемся доме (Башня "Столица" (Корпус 1)), срок сдачи: I-кв. 2030, общей площадью 123.9 кв.м., на 10 этаже. Две башни формируют принципиально новое городское life-style пространство для жителеи и горожан. Единыи ансамбль площади Баварина и набережнои станет новым городским центром.
АРХИТЕКТУРНЫЙ КОМПЛЕКС СТАНЕТ СИМВОЛИЧЕСКИМИ ВОРОТАМИ В ГОРОД И ЕГО ВИЗИТНОИ КАРТОЧКОИ И ОТРАЗИТ РАЗВИТИЕ БАРНАУЛА.
Инфраструктура и расположение
ТЕРРИТОРИЯ КОМПЛЕКСА - ВАЖНАЯ ТОЧКА, СВЯЗЫВАЮЩАЯ ДЕЛОВОИ И КУЛЬТУРНЫИ ЦЕНТРЫ БАРНАУЛА. БАШНИ ЗАМЫКАЮТ СТВОР УЛИЦЫ ЛЕНИНА И СЛУЖАТ ГОРОДСКИМИ ВОРОТАМИ НА НАБЕРЕЖНУЮ.
Башни "Столица" и "Мира" будут буквально парить в воздухе у набережной. Дома установят на стилобат - платформу до высоты третьего этажа. Решение даст возможность пересекать территорию насквозь через комплекс к реке.
Башни создают новые пешеходные связи со стороны улицы Ленина к набережнои.
Продается просторная четырехкомнатная квартира в Барнауле на Павловском тракте, 82. Общая площадь составляет 90.4 кв. м, жилая площадь — 64 кв. м, а кухня — 9.8 кв. м. Расположена на последнем, 10 этаже кирпичного дома 1991 года постройки. Высота потолков — 2.75 метра. В квартире 1 совмещенный и 1 отдельный санузел, а также 2 лоджии, откуда открывается отличный вид на город.
Квартира с качественным евроремонтом, поэтому сразу готова к проживанию. Просторная кухня позволит удобно разместиться всей семье за ужином, а современная техника сделает процесс приготовления максимально комфортным. Все комнаты светлые и уютные, что создает атмосферу уюта и комфорта. Санузлы в отличном состоянии, отделаны современной плиткой.
Дом в хорошем состоянии, с пассажирским лифтом, поэтому можно не беспокоиться о комфорте проживания. Рядом с домом есть удобная парковка для вашего автомобиля.
Район с развитой инфраструктурой: в шаговой доступности находятся школы, детские сады, клиники и магазины. Это отличный вариант для семей с детьми. До ближайших остановок общественного транспорта можно дойти пешком за несколько минут, что гарантирует удобное транспортное сообщение с другими районами города.
Продажа квартиры осуществляется по договору купли-продажи. Возможна ипотека, все документы готовы к сделке, поэтому вы можете быть уверены в юридической чистоте объекта.
Приглашаем вас на просмотр! Звоните, чтобы записаться на удобное для вас время. Вы не останетесь равнодушными к этой квартире и обязательно захотите здесь остаться!
Продаётся 4-комнатная квартира в строящемся доме (Башня "Столица" (Корпус 1)), срок сдачи: I-кв. 2030, общей площадью 132.9 кв.м., на 10 этаже. Две башни формируют принципиально новое городское life-style пространство для жителеи и горожан. Единыи ансамбль площади Баварина и набережнои станет новым городским центром.
АРХИТЕКТУРНЫЙ КОМПЛЕКС СТАНЕТ СИМВОЛИЧЕСКИМИ ВОРОТАМИ В ГОРОД И ЕГО ВИЗИТНОИ КАРТОЧКОИ И ОТРАЗИТ РАЗВИТИЕ БАРНАУЛА.
Инфраструктура и расположение
ТЕРРИТОРИЯ КОМПЛЕКСА - ВАЖНАЯ ТОЧКА, СВЯЗЫВАЮЩАЯ ДЕЛОВОИ И КУЛЬТУРНЫИ ЦЕНТРЫ БАРНАУЛА. БАШНИ ЗАМЫКАЮТ СТВОР УЛИЦЫ ЛЕНИНА И СЛУЖАТ ГОРОДСКИМИ ВОРОТАМИ НА НАБЕРЕЖНУЮ.
Башни "Столица" и "Мира" будут буквально парить в воздухе у набережной. Дома установят на стилобат - платформу до высоты третьего этажа. Решение даст возможность пересекать территорию насквозь через комплекс к реке.
Башни создают новые пешеходные связи со стороны улицы Ленина к набережнои.
Продается просторная четырехкомнатная квартира в современном доме комфорт-класса в историческом центре Барнаула.
Объект расположен на высоком этаже, что гарантирует прекрасный вид из окон и обилие естественного света.
Планировка квартиры функциональна и предполагает возможность зонирования на приватные и общие пространства для комфортного проживания большой семьи.
Дом оснащен необходимой современной инфраструктурой: охраняемой подземной парковкой и благоустроенным двором, закрытым для постороннего транспорта, с зоной для отдыха и барбекю. Ключевое преимущество — исключительная локация. В пешей доступности находятся ведущие учебные заведения города: школы, детские сады и университеты, что делает этот вариант идеальным для семей с детьми и студентов.
Транспортная развязка и развитая социальная инфраструктура района обеспечивают все ежедневные потребности. Квартира готова к проживанию. Рассматриваются различные формы расчетов, включая ипотечное финансирование с возможностью организации одобрения на конкурентных условиях.
Это предложение сочетает статус центрального адреса, качество современного жилья и практичность для жизни.
Код пользователя: 190755
Номер в базе: 12035617
Продаётся 4-комнатная квартира в строящемся доме (Дом 1), срок сдачи: III-кв. 2029, общей площадью 98.4 кв.м., на 10 этаже. Новый жилой комплекс от группы компаний "Адалин-Строй" расположен по адресу: г. Барнаул, по ул. Челюскинцев.
Продаётся 4-комнатная квартира в строящемся доме (Дом 36в (блок-секция 1,2)), срок сдачи: III-кв. 2026, общей площадью 110.98 кв.м., на 10 этаже. Новый жилой комплекс "Opera Residence" от Специализированного застройщика "Легион" расположен по адресу г. Барнаул, Сибирский проспект.
Продаю отличную 4 комнатную квартиру в самом центре г. Барнаула в кирпичном доме .
В шаговой доступности все социально значимые объекты (институты, гимназии, школы, детские сады,торговые центры итд ) и прекрасная транспортная развязка. В 2 х минутах ходьбы остановки общественного транспорта в любую часть города. В 2 минутах ходьбы находится, всеми любимый, парк "Изумрудный".
Окна выходят на две стороны, очень светлая, просторная атмосфера. Продуманная планировка квартиры.
Комнаты изолированные.
Пластиковые окна, две большие лоджии.
Санузел с ванной раздельные.
В квартире требуется ремонт.
Два взрослый собственника.
Подходит под все виды расчетов (ипотека, сертификаты итд)
Быстрый выход на сделку.
Звоните и приходите на просмотр , организую показ в удобное для Вас время.
В продаже уютная, просторная квартира для большой семьи - 97 серии.
Спальный район города, где в пешей доступности присутстует вся городская инфраструктура-
школы, детские сады, поликлиники, аптеки, магазины, ТРЦ, парки и аллеи, остановки общественного транспорта и прочее.
Квартира продается с мебелью и техникой - как на фото.
Показ по согласования. Звоните уже сегодня!
Рядом с объектом находятся:
2 школы,
5 детских садов,
5 спортивных учреждений.
Возможен обмен на вашу недвижимость. Возможна продажа в рассрочку.
При звонке, пожалуйста, сообщите номер варианта -
JV004022101392.
Продам просторную евро трехкомнатную квартиру в современном доме, построенном в 2024 году.
Один из лучших комплексов города - ЖК Локомотив!
Отличная управляющая компания, охрана, видеонаблюдение, закрытая территория, подземный паркинг, торговый центр в доме! Все необходимое под рукой, продукты, кафе, предприятия бытового сервиса.
Квартира располагается на 15-м этаже 21-этажного здания. Общая площадь составляет 68 кв. м, из которых 41 кв. м — жилая площадь, а кухня занимает 5 кв. м. Высокие потолки в 3 метра создают ощущение простора. Из окон открывается вид во двор, что обеспечивает тишину и комфорт. Шикарный вид на город!
Квартира с евроремонтом, выполненным с использованием современных материалов. Планировка квартиры продумана до мелочей, включая два совмещенных санузла, что особенно удобно для семьи. Лоджия добавляет дополнительные возможности для отдыха и хранения вещей.
Дом оборудован двумя пассажирскими и двумя грузовыми лифтами, что делает перемещение по этажам быстрым и удобным. Подземная парковка решит вопрос с местом для вашего автомобиля. Дом новый, поэтому все инженерные системы работают безупречно.
Инфраструктура района развита: в шаговой доступности находятся школы, детские сады, клиники и магазины. Всё необходимое для комфортной жизни — буквально за углом. Удобная транспортная развязка позволяет быстро добраться до ближайших остановок и крупных торговых центров.
Продажа квартиры возможна в ипотеку. Документы готовы к сделке, обременений нет. Прозрачные условия сделки и полное юридическое сопровождение гарантируют вашу безопасность.
Приглашаем вас на просмотр! Звоните, чтобы записаться на удобное для вас время и оценить все достоинства этой замечательной квартиры.
Просторная двухкомнатная квартира в центре города предлагает комфорт и выгодное расположение. Светлые и уютные раздельные комнаты, отдельный санузел и кладовая создают всё для жизни. Отличная транспортная доступность позволяет быстро добраться в любую точку.
Вся необходимая инфраструктура — школы, детские сады, вузы, больницы, магазины, торговые центры, театры и кинотеатры — находится в шаговой доступности. Рядом расположена школа. При желании квартиру можно переоформить под нежилое помещение для бизнеса.
Отличная транспортная развязка, можно уехать в любу точку города.
Пишите/звоните, обсудим все возникающие вопросы, организуем просмотр.
Код пользователя: 203183
Номер в базе: 12391715
Код объекта: 2130506.
Уютная трёхкомнатная квартира в Барнауле: ваш новый дом ждёт вас!
Представьте: вы заходите в светлую квартиру на улице СухэБатора, 9 — и сразу чувствуете, как напряжение уходит. Здесь продумано всё для комфортной жизни: изолированные комнаты — у каждого члена семьи своё личное пространство;
балкон и лоджия — устройте зону отдыха с видом на город или используйте для хранения сезонных вещей; светлые комнаты с окнами на улицу — больше света и позитива каждый день;
центральное отопление — тепло и уютно даже в самые морозные зимы.
Рядом — наземная парковка: больше не нужно часами искать место для машины!
А развитая инфраструктура района гарантирует, что всё необходимое — магазины, школы, детские сады — будет в шаговой доступности.
Мы берём на себя все заботы: обеспечим полную юридическую поддержку; поможем оформить ипотеку со сниженной ставкой.
Не откладывайте мечту о комфортном жилье! Звоните прямо сейчас, чтобы записаться на просмотр — и пусть этот дом станет вашим!
Арт. 52627304 Продаю 4-х комнатную квартиру в центре Барнаула, ул. Партизанская 146. Отличная планировка. В шаговой доступности детский сад и 22 школа, магазины. Удобная транспортная доступность. Один взрослый собственник, полная стоимость в договоре. Торг уместен. По отчету ЕГРН ограничений прав и обременение объекта не зарегистрировано.
Код объекта: 2070270.
Пpодaм просторную кваpтиpу c ремонтом - зaxoди и живи!
* Удобнaя плaниpовка для Вас!:
Kомпактнaя Кухня , прoсторная комната - cердцe квартиpы! Личноe пpостранcтвo для Bаc или Вашей cемьи.
Ваннaя кoмната уют и комфорт для Вас.
И это еще не все!
* Ухоженная территория с игровой детской площадкой, авто парковка во дворе дома.
* Инфраструктура: рядом много магазинов, гимназии, школы, детские сады, , больница в пешей доступности.
Остановка общественного транспорта в 3 мин. от дома. Благодаря развитой транспортной сети, добраться до Центра или других важных точек очень просто
Звоните прямо сейчас, записывайтесь на показ! Полное сопровождение Покупателя и гарантия юридически чистой сделки. Помогу одобрить Вам ипотеку от 11,9% на весь срок!
Продаётся теплая, светлая двухкомнатная квартира площадью 46,6 квадратных метров, расположившаяся словно гостеприимная хозяйка среди тихих улочек живописного района города Барнаул по адресу: Социалистический проспект, дом 119.
Это место подобно доброй фее, окружившей своё жилище заботливо подобранными удобствами:
Инфраструктура: здесь, будто щедрый садовник, собраны школы, детские сады и магазины, дарящие семьям уют и уверенность в завтрашнем дне.
Транспортная доступность: просторные дороги ведут от квартиры прямо к сердцу города и дальше — словно раскрытые объятия жд вокзала и автобусной станции манят путешествовать легко и свободно.
Развлечения и шопинг: всего лишь несколько шагов отделяют вас от кинозала кинотеатра "Мир", торговых центров и стильных бутиков, готовых очаровать своей атмосферой и подарками.
Парковка: возле дома терпеливо ждёт своего жильца аккуратная автостоянка, бережно укрывающая автомобили от городских бурь.
Эта квартира — идеальный выбор для всех, кто мечтает о теплом гнездышке, полном комфорта, удобства и гармоничной инфраструктуры.
Звоните!
Код пользователя: 190736
Номер в базе: 11750588
Продаю 2-комнатную квартиру в индустриальном районе. Квартира находится на 2 этаже, 9этажного кирпичного дома, что удобно как для семей с детьми, так и для пожилых людей.
Характеристики: Планировка: 464, классическая, раздельные комнаты. Имеется балкон.
Состояние: Требуется косметический ремонт. Это отличная возможность создать интерьер по своему вкусу.
Права: Один взрослый собственник. Продажа чистая — без долгов, обременений и прописанных лиц.
Преимущества: Быстрая и простая сделка. Тихий двор. Развитая инфраструктура района: магазины, поликлиника, общественный транспорт.
Идеальный вариант для практичных покупателей, готовых вложиться в недорогой ремонт, или для инвестиции.
Цена договорная. Собственник на связи. Готовы показать квартиру в удобное для вас время.