193 333 ₽/м²
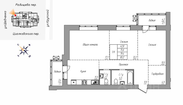
Код объекта: 2142157. Уникальное предложение на рынке недвижимости Барнаула! Продается четырёхкомнатная квартира в престижном центре города, по адресу проспект Строителей, 33. Квартира расположена на 15 этаже 16-этажного кирпичного дома. Ключевые преимущества: • Простор и свет: Общая площадь - 150 кв. м., площадь кухни - 45 кв.м. Высота потолков 3,2 метра. Просторные, изолированные комнаты, 3 утепленных лоджии, с высотой потолка до 4,5 м, 2 санузла, гардеробная, прачечная. Панорамные окна с видом на весь город. • Тепло и уют: Кирпичный дом гарантирует отличные шумо и теплоизоляции. • Готовность к проживанию: В квартире выполнен дизайнерский ремонт, из дорогостоящих, высококачественных материалов. Новому владельцу остается вся мебель и техника. • Удобное расположение: Безопасный двор с огороженной территорией, видеонаблюдение. На первом этаже дома ресторан Домиани. Широко развиты социальная и коммерческая инфраструктуры. Не переходя дорог гимназия 42, детский сад 59. В шаговой доступности ТЦ Галакси, кинотеатр МИР. • Транспортная развязка: Все виды транспорта в любую точку города. • Выгодные условия покупки: Квартира подходит под все виды расчета. Новому владельцу в подарок большая подземная парковка ( отдельно стоящее место). Записывайтесь на просмотр! Смотрите! Покупайте!







































































