


257 360 ₽/м²
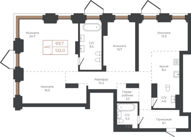
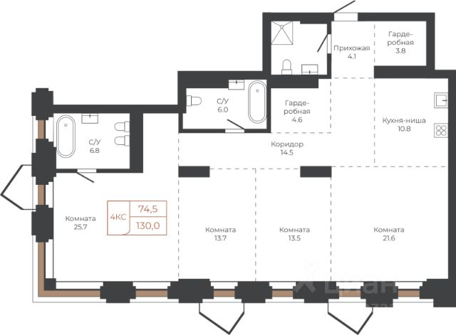
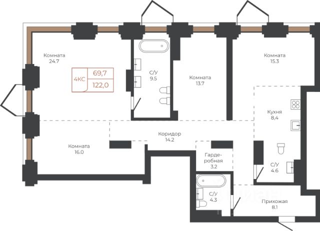
Продаётся 4-комнатная квартира в строящемся доме (Башня "Столица" (Корпус 1)), срок сдачи: I-кв. 2030, общей площадью 123.7 кв.м., на 16 этаже. Две башни формируют принципиально новое городское life-style пространство для жителеи и горожан. Единыи ансамбль площади Баварина и набережнои станет новым городским центром. АРХИТЕКТУРНЫЙ КОМПЛЕКС СТАНЕТ СИМВОЛИЧЕСКИМИ ВОРОТАМИ В ГОРОД И ЕГО ВИЗИТНОИ КАРТОЧКОИ И ОТРАЗИТ РАЗВИТИЕ БАРНАУЛА. Инфраструктура и расположение ТЕРРИТОРИЯ КОМПЛЕКСА - ВАЖНАЯ ТОЧКА, СВЯЗЫВАЮЩАЯ ДЕЛОВОИ И КУЛЬТУРНЫИ ЦЕНТРЫ БАРНАУЛА. БАШНИ ЗАМЫКАЮТ СТВОР УЛИЦЫ ЛЕНИНА И СЛУЖАТ ГОРОДСКИМИ ВОРОТАМИ НА НАБЕРЕЖНУЮ. Башни "Столица" и "Мира" будут буквально парить в воздухе у набережной. Дома установят на стилобат - платформу до высоты третьего этажа. Решение даст возможность пересекать территорию насквозь через комплекс к реке. Башни создают новые пешеходные связи со стороны улицы Ленина к набережнои.
















































































