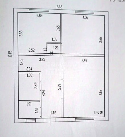
Продается дом с земельным участком в коттеджном поселке Благодатное (п. Центральный), ул. Тополинская, д. 42 (для тех кто хочет купить два дома себе и детям есть дом близнец по соседству 38) Внимание! Это предложение для людей, которые хотят купить дом на века! При постройке использовалась классическая технология строительства. Строили для себя, но обстоятельства поменялись. Земельный участок 10 соток (25х40 метров), проведена планировка, завезен чернозем, дорожки отсыпаны. Придомовая территория облагорожена. Дорожки и проезд к гаражу отсыпаны. По периметру участка установлен забор: металлические столбы бетонированы в форме грибка, на который установлен ростверк между столбиками. Материал забора — профлист. На участке построена хозяйственная постройка 70,96 кв. М. (17,74х4 метра) в которой запланирован гараж, баня, летняя кухня, хозяйственный блок. Строительство выполнено по классической технологии: фундамент — подушка Пгс (1,2 м.) + блок (300 мм.), стены — кирпич (250 мм.), кровля — профлист. Кровля исполнена с навесом что исключает нанос снега в зимнее время. К хозяйственной постройке проведены магистрали под коммуникации. Одноэтажный дом (103.3 кв. М.) построен с соблюдением норм снип. Фундамент заглублен до точки промерзания 1,6 метра (до глины): подушка (120х200) из Пгс (песчано-гравийная смесь) + ж/б блоки с армированным поясом. Стены: кирпич (380 мм.) + Псб плита (25кг/м2 плотностью) + вентиляционный зазор + облицовочная кирпичная кладка (0,5 кирпича). Облицовочная кладка закреплена стеклопластиковыми штырями. По кладке выполнен армированный пояс. Отмостка под брусчатку. Перекрытие первого этажа — ж/б плита + стяжка. Верхнее перекрытие — ж/б плита + пароизоляция + шлак (350 мм.) — отлежал в бурту 1 год Кровля: подстропильная система — брус (50х150) с шагом 1 м., фальш стропила (70х50), разряженная обрешетка. Фронтон — кирпич, мурлаты в пароизоляции. Стропила закреплены самодельными кованными уголками. Перекрытие 10 профлист, свис 800 мм. Обрешетка на саморезах. Коммуникации: электроэнергия — проложены магистрали от столба в подвал дома, вода заведена в полуподвальный этаж, газ заведен до стены дома. Выгребная яма 9 м. Куб. (3 кольца). Дом находится в статусе незавершенного строительства. Оставили свободную планировку, новый хозяин может реализовать планировку по своему желанию и потребностям. По периметру дома в стенах установлены вентиляционные отверстия под кивы, кэшированные 5 камерные Пвх стеклопакеты. Тихий, спокойный загородный поселок. Школа 91 и детский сад 195 находятся в 5 минутах езды в п. Центральный. В шаговой доступности автобусная остановка 3 маршрута, 20 минут до центра города. Электричка Барнаул-Алейская (станция Черницкий). Записывайтесь на просмотр, покажем в любое время.