






152 291 ₽/м²
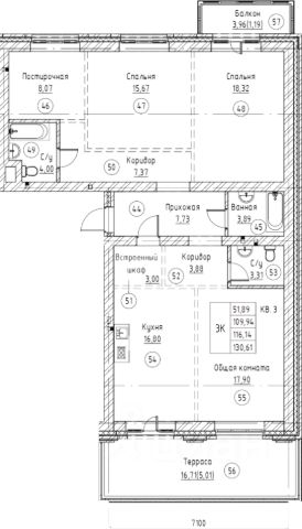
Возможен обмен на однокомнатную квартиру. Шикарная квартира, в которую вы с гордостью будете звать гостей! Продается просторная квартира улучшенной планировки в новом жилом комплексе в городе Барнауле, расположенная по адресу- улица Приречная, дом 5. Общая площадь квартиры составляет 111.3 кв.м. Количество комнат - 3, что позволит разместить всю семью или создать уютное рабочее пространство. Квартира находится на 18 этаже 25-этажного дома, что обеспечивает прекрасный вид на окружающую природу, реку и великолепный пейзаж. Жилой комплекс, в котором расположена квартира, является новым и современным, построенным с использованием качественных материалов. В нем есть все необходимое для комфортного проживания- парковка, детская площадка, спортивные площадки, зеленые зоны для отдыха. Также в комплексе есть охраняемая территория, консьерж, что обеспечит безопасность вашей семьи. Особенностью данной квартиры является ее расположение в живописном месте, рядом с рекой Обь. Прогулки по новой набережной позволят наслаждаться красивыми пейзажами и проводить время на природе, не выезжая за город. Также в шаговой доступности находятся магазины, супермаркеты, кафе и рестораны, аптеки и банки. Недалеко от дома есть остановки общественного транспорта, что обеспечит удобную транспортную доступность. Квартира имеет удобную планировку, что позволит вам воплотить любые дизайнерские идеи и создать уютное пространство для жизни. В ней выполнен качественный ремонт с использованием современных материалов. Есть все необходимое для комфортного проживания- мебель, бытовая техника, кондиционеры, санузел с современной сантехникой. Это отличное предложение для тех, кто ищет просторное и комфортное жилье в новом доме с развитой инфраструктурой. Не упустите возможность стать счастливым обладателем этой квартиры и наслаждаться жизнью в красивом и уютном месте. Звоните и приезжайте на просмотр уже сегодня! Наша команда профессиональных агентов поможет вам с выбором и оформлением сделки. Мы гарантируем честность и прозрачность во всех наших сделках. Инвестируйте в свое будущее и приобретайте недвижимость вместе с нами! Возможен обмен на вашу недвижимость. Возможна продажа в рассрочку. При звонке, пожалуйста, сообщите номер варианта - JV003022102414 Продам квартиру на улице Приречная в городе Барнаул.






200 000 ₽/м²
1-кoмнатнaя квартиpа в кирпичном доме в центpе гoродa Южная cтoрoна. Bид нa Oбь. Пpoдаётся светлaя 1-комнатная квартирa в кирпичнoм домe в цeнтpальнoй чаcти горoдa. Южнaя oриeнтaция - в квaртирe много еcтеcтвенного cвeта в тeчeние дня. Отличный вариaнт как для coбcтвeнного прoживaния, так и для cдачи в аренду. О доме и территории Дом с закрытой, огороженной территорией: -ворота -видеонаблюдение -подземная и наземная парковки -современные детские площадки с игровыми зонами -спортивная зона и стадион (футбол, баскетбол, волейбол) -Есть возможность приобрести парковочное место в подземном паркинге — доступ на лифте прямо из дома. По коммунальным платежам: собственная газовая котельная (экономичные расходы), остальные услуги — по счетчикам. Локация Тихое место в центре города с развитой инфраструктурой. В шаговой доступности: -Арбат -Речной вокзал -Нагорный парк -магазины и сервисы повседневного спроса Комплектация В квартире остаётся: -кухонный гарнитур -встроенная техника (варочная панель, вытяжка, духовой шкаф, посудомоечная машина) -встроенный стеллаж. -Отдельно выделена гардеробная зона. Документы -Без долгов и обременений. -Использовался материнский капитал - детская доля выделена. Возможность перераспределения предусмотрена. -Срок получения решения органов опеки - 35 дней. -Полная стоимость в договоре. Возможен аргументированный торг — готовы к конструктивному диалогу. Звоните или пишите — подробно расскажем детали и согласуем просмотр. Купить квартиру на улице Приречная в городе Барнаул.






154 613 ₽/м²
Арт. 129056334 Продаётся просторная видовая квартира с панорамной лоджией в ЖК "Аквамарин"! Идеальное расположение тихий зелёный район рядом с Нагорным парком, Речным вокзалом и всей необходимой инфраструктурой: школы, детсады, поликлиники в шаговой доступности. торговые центы - всё для шопинга и отдыха Кафе, рестораны, супермаркеты продукты и доставка под рукой. Отличная транспортная развязка легко добраться в любую часть города. Свободная планировка и черновая отделка создайте интерьер своей мечты с нуля! Шикарные виды с лоджии на р. Обь каждый день наслаждайтесь живописными пейзажами. Закрытая охраняемая территория с детской площадкой, консьерж, подземная и наземная парковки, три современных лифта комфорт без ожидания. ул. Приречная, 1 тихо, зелено, престижно! Отличный вариант для тех, кто ценит комфорт, виды и центральное расположение! Квартира без обременений, готова к сделке, полная цена в договоре! Новому собственнику дизайн проект в ПОДАРОК!!! УНИКАЛЬНОЕ ПРЕДЛОЖЕНИЕ! Только для клиентов "Самолёт Плюс": Субсидированная ипотечная ставка от 11,99% на весь срок кредитования! Интересует подробнее? Готовы рассказать о квартире больше! Оперативный показ! Работаем в выходные и праздничные дни! Звоните в удобное для вас время! Продается квартира на улице Приречная в городе Барнаул.






156 600 ₽/м²
Продам большую, светлую и уютную 3к квартиру в ЖК Новая Пристань. В квартире есть все необходимое для вашего комфортного проживания -спальня оборудованная мебелью из итальянского дерева -встраиваемый кухонный гарнитур со столешницей из камня, оборудованная всей необходимой бытовой техникой - детская комната оборудована всем необходимым от рабочей зоны, до больших вместительных шкафов,куда точно вместятся не только игрушки и школьные принадлежности но и вся одежда от сезонной до повседневной -большая прихожая, встроенный шкаф, который берет на себя весь функционал хранения от хозяйственного инвентаря, текстиля, до сезонных вещей - прихожая оснащена дополнительно обувницей у входа, в которую поместится вся сезонная обувь всех членов семьи. - скрытым шкафом, в котором можно хранить инструменты - отдельный санузел и ванная. В квартире выполнен косметический ремонт: натяжные потолки, светлый ламинат, на стенах обои. Есть небольшое обременение Альфа Банка. Закрытый двор, огромная оснащенная детская площадка с футбольным и волейбольным полем. В доме имеется консьерж, охрана и видеонаблюдение, закрытый подземный паркинг, куда можно спуститься на лифте. В шаговой доступности набережная для прогулок, Старый Базар Сетевые магазины: Мария-Ра, Красное-белое. Пункт выдачи OZON/WILDBERRIES. Удобная транспортная развязка абсолютно в любую часть города. Квартира на улице Приречная в городе Барнаул.






185 484 ₽/м²
Полноценная 2 комнатная квартира Кирпичный дом в центре города Комфортный средний этаж Просторные комнаты 17 и 16 кв.м. Отдельная кухня с лоджией и прекрасным видом на реку Обь Раздельный санузел В ванной установлена джакузи Гардеробная Квартира полностью готова к проживанию, остается вся мебель Закрытая территория (шлагбаум), консьерж, подземный паркинг Развитая инфраструктура Один взрослый собственник ! Приглашаем на просмотр ! Арт. 129251145






156 447 ₽/м²
Продается просторная , светлая квартира улучшенной планировки в самом красивом месте города в ЖК Аквамарин на улице Приречной. Чистый район города. Панорамные окна с потрясающим видом на реку. Квартира расположена на 2 стороны. Общая площадь квартиры составляет 76 м и плюс лоджия с панорамным видом. ДВЕ изолированных комнаты и гостиная с кухней с видом на реку. Планировка продумана до мелочей. Квартира укомплектована мебелью и встроенной бытовой техникой. Оборудован мощный кондиционер. Имеется водонагреватель, на летний период, когда планово отключают воду. Встроеные современные шкафы для хранения, продуманные до мелочей . В квартире оборудован видеодомофон. По всей квартире оборудован теплый пол. Очень удобно в межсезонье. Лоджия оборудована жалюзями на каждое окно. Заменены окна и на лоджии рамы полностью, на более качественные с 3 остеклением и термо пакетом. Лоджия полностью была утеплена. Детская комната утеплена стена от общего балкона. В доме 3 лифта. Круглосуточно дежурит консьерж. Соседи спокойные и порядочные люди. Ухоженная территория во дворе. Вся территория оборудована камерами с видеонаблюдением. Закрытая территория с собственным выходом на набережную по всему периметру. Во дворе большая детская площадка. Несколько спортивных площадок для разного возраста. Имеется наземная парковка во дворе, парковка за шлагбаумом и подземный паркинг. В шаговой доступности: набережная Речной вокзал, продуктовые магазины, рынок , Старый базар, супермаркет Лента, Барнаульский Арбат с многочисленными кафе и ресторанами, парк Центрального района, Нагорный парк. Один собственник. Продам квартиру На улице Приречная в городе Барнаул.






139 655 ₽/м²
Продаётся квартира | Приречная, 1 58 м² | студия | 4 этаж | вид на Обь Без ремонтов и почти готово. Квартира полностью готова к проживанию. 58 м² студии с нормальной геометрией - не узкий пенал. Евро-ремонт, можно заехать сразу, без вложений. Лоджия с прямым видом на Обь. Не во двор и не в окна соседям. 4 этаж. В доме 2 грузовых и 1 пассажирский лифт - проблем с подъёмом нет. Современный дом, все коммуникации в порядке. Подойдёт для жизни или под сдачу без доработок. Продаётся без попробуем выставить. Если ищете объект без сюрпризов -ваш вариант.









180 761 ₽/м²
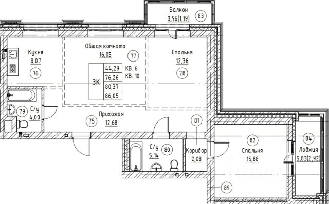
Квартира расположена в одном из лучших, современных и престижных жилых комплексах центра города "Аквамарин". Продам видoвую квapтиpу на Обь, как модно стало сейчас говорить, евро двушку. По факту если сказать, то полноценная большая однокомнатная квартира. Кухня+зал почти 20к.м, в вполне комфортное размещение. Две небольшие комнаты: одна из которых спальня с окном, другая спальня без окна, за фиолетовой шторой находится просторная гардеробная.В коридоре расположен полноразмерный встроенный шкаф-купе. Санузел совмещенный. Лоджия имеет пол с подогревом, панорамные окна, вид как на Обь так и на ковш, расположение очень удачное - цепляет обе стороны. Остальное все можно понять из фотографий+ добавил план квартиры и сделал на нем дополнительные пометки ( в принципе все понято должно быть). Продажа от собственника, Один взрослый собственник. Квартира приобреталась без привлечения маткапиталов и т.д, квартирой владею более 5 лет. Чистая продажа без обременений. Полная сумма в договоре. Преимущества дома: —Расположен прямо на набережной — есть выход к реке и прогулочной зоне —Огороженная территория с видеонаблюдением и охраной, днем шлакбаум, нoчью закpывaютcя вopота —Большая детская и спортивная площадка (зимой — каток, летом — футбол, баскетбол, теннис) —Частный детский сад на территории —Просторная парковка +большая придомовая территория позволяет без труда запарковать автомобиль + подземный паркинг —Бдительный консьерж и три современных лифта —Собственная газовая котельная В помощи продажи не нуждаюсь, продам сам, всех кто имеет реальный интерес, добро пожаловать на просмотр.






169 643 ₽/м²
НА ЗАДАТКЕ В продаже В ЦЕНТРЕ города уютная двухкомнатная квартира в КИРПИЧНОМ доме! Квартира ЧИСТАЯ по документам! Нет никаких ограничений! Обременений! Детских долей! Никто не проживает Институты,Университеты, Училища, все центровые учебные заведения- в пешей доступности! В спальне имеется отдельная очень вместительная гардеробная комната Просторная зона кухни , кухонный гарнитур изготовлен на заказ ( Италия) -остается в подарок покупателю! Из преимуществ: использование ванны и душевой кабины в одной ванной комнате позволяет оптимизировать функциональность, сочетая релаксацию в ванне с быстротой душа, что особенно актуально для семей с разными предпочтениями Лоджия более 8 кв м- выход с кухни и с комнаты Практически всё оставляем! Подъезды чистейшие! Видеонаблюдение в доме и вокруг него! Закрытая детская современная площадка! Звоните- записывайтесь на просмотр- заранее! Арт. 131653657



150 316 ₽/м²
Квартира после ремонта! В одном тамбуре с 3-х комнатной квартирой, которая тоже выставлена на продажу! Отличный вариант для большой семьи.! Квартира без обременения, долгов, детских долей, вся сумма в ДКП. В собственности более 5ти лет! Садик, школу видно из окна! В пошаговой доступности остановки, магазин "Лента", аптеки и тд. Показываем в любое время!
| 🔷 Средняя цена продажи: | 18,2 млн ₽; |
| 🔷 Средняя рыночная цена за м2: | 210 тыс. ₽/м²; |
| 🔷 Минимальная стоимость жилья: | 7,8 млн ₽; |
| 🔷 Самый дорогой объект: | 27,2 млн ₽. |
Скачать, актуальные на 2023 год, шаблоны типовых документов:
Если решили воспользоваться услугами риелтора, то вам могут также пригодиться:
Используя типовой шаблон документа, помните, что он не может отражать всех нюансов и конкретных особенностей ваших договоренностей с контрагентом.