103 125 ₽/м²
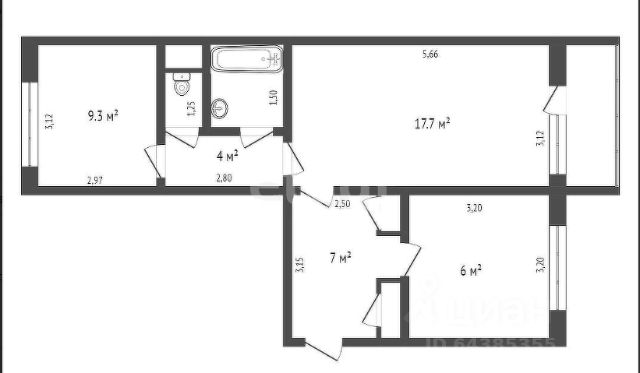
Арт. 132621990 В продаже 1-комнатная квартира в Заречной части города, район Колокольчик! Представляем уютную квартиру улучшенной планировки в панельном доме, расположенную на пятом этаже 5-этажного дома. Вас порадует просторная кухня, гостиная с выходом на балкон. Квартира готова к заселению: пластиковые окна; алюминиевые радиаторы; новая входная дверь; натяжной потолок; линолеум; дом с электроплитой; санузел совмещен, в кафеле; просторная комната площадью 17.1 м² позволит создать уютное пространство по вашему вкусу; детская площадка во дворе; пвз (ozon и wb); Преимущества района: Развитая инфраструктура обеспечит максимальный комфорт. В шаговой доступности: Продуктовые магазины; Мебельный магазин; ДЮШ; Школа; Аптеки; Остановка автобуса. А для любителей прогулок и активного отдыха — рядом живописный лес и река! Не упустите свой шанс жить в комфорте и получать удовольствие от каждого дня! Подходит под любой вид расчёта, в том числе материнский семейный капитал. Звоните и записывайтесь на просмотр уже сегодня! Продается квартира в переулке Ключевской в городе Бийск.













































































