






















212 000 ₽/м²
Продаётся 1-комнатная квартира в строящемся доме (Папанинцев, 155 (Блок-секция 1-2)), срок сдачи: III-кв. 2028, общей площадью 30.5 кв.м., на 16 этаже. Новый жилой комплекс "Империал" от группы компаний "Авангард" расположен по адресу: г. Барнаул, по ул. Папанинцев.












161 000 ₽/м²
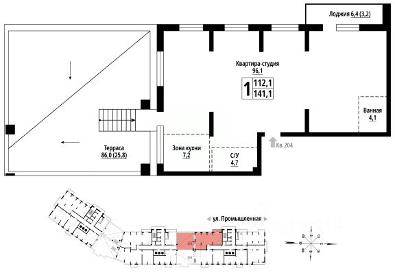
Жилой комплекс "Империал", представляет собой двухсекционное монолитно-каркасное здание, переменной этажности. Расположенное в самом центре города Барнаула, на улице Папанинцев 155. Проект реализуется застройщиком ООО "СЗ "ИСК "Авангард". Комплекс включает в себя 2 блок секции 20 и 23 этажа, возведенных на общем стилобате. ЖК "Империал" расположен в развитом центре города Барнаула с отличной транспортной доступностью, рядом остановки автобусов и трамваев. Что Вы получаете в своей новой квартире: - входная дверь с шумоизоляцией; - просторные светлые комнаты с панорамными окнами; - свободную планировку без отделки; - стяжка пола с дополнительной шумоизоляцией; - установленные внутренние инженерные коммуникации. Важно, чтобы жители нашего комплекса, даже за пределами своей квартиры оставались защищенными на придомовой территории. В жилом комплексе "Империал" - этому способствует, закрытая территория двора, видеокамеры по периметру, а также консьерж в каждой секции. Двухуровневый паркинг, рассчитанный на 183 машино-места, с функцией распознавания номеров, что обеспечивает высокий уровень безопасности. В каждой секции предусмотрены помещения для хранения колясок и велосипедов, а также грузовые и пассажирские лифты для удобства жителей. А также лаунж зоны для резидентов комплекса такие как: 2 детские игровые зоны для деток разного возраста, фитнес зал (доступный только для жителей комплекса) и открытая приватная терраса. В шаговой доступности расположены: крупнейшие ВУЗы края, престижные школы, детские сады. Территория застройки находится в собственности у Застройщика. Реализация квартир осуществляется путем заключения договоров долевого участия в соответствии с ФЗ-214.



215 300 ₽/м²
Продаётся 1-комнатная квартира в строящемся доме (Чернышевского, 39 (Дом 1)), срок сдачи: IV-кв. 2027, общей площадью 32 кв.м., на 1 этаже. Новый жилой комплекс от группы компаний "Жилищная Инициатива" расположен по адресу: г. Барнаул, по ул. Чернышевского.



161 000 ₽/м²
Жилой комплекс "Империал", представляет собой двухсекционное монолитно-каркасное здание, переменной этажности. Расположенное в самом центре города Барнаула, на улице Папанинцев 155. Проект реализуется застройщиком ООО "СЗ "ИСК "Авангард". Комплекс включает в себя 2 блок секции 20 и 23 этажа, возведенных на общем стилобате. ЖК "Империал" расположен в развитом центре города Барнаула с отличной транспортной доступностью, рядом остановки автобусов и трамваев. Что Вы получаете в своей новой квартире: - входная дверь с шумоизоляцией; - просторные светлые комнаты с панорамными окнами; - свободную планировку без отделки; - стяжка пола с дополнительной шумоизоляцией; - установленные внутренние инженерные коммуникации. Важно, чтобы жители нашего комплекса, даже за пределами своей квартиры оставались защищенными на придомовой территории. В жилом комплексе "Империал" - этому способствует, закрытая территория двора, видеокамеры по периметру, а также консьерж в каждой секции. Двухуровневый паркинг, рассчитанный на 183 машино-места, с функцией распознавания номеров, что обеспечивает высокий уровень безопасности. В каждой секции предусмотрены помещения для хранения колясок и велосипедов, а также грузовые и пассажирские лифты для удобства жителей. А также лаунж зоны для резидентов комплекса такие как: 2 детские игровые зоны для деток разного возраста, фитнес зал (доступный только для жителей комплекса) и открытая приватная терраса. В шаговой доступности расположены: крупнейшие ВУЗы края, престижные школы, детские сады. Территория застройки находится в собственности у Застройщика. Реализация квартир осуществляется путем заключения договоров долевого участия в соответствии с ФЗ-214.



202 000 ₽/м²
Жилой комплекс "Империал", представляет собой двухсекционное монолитно-каркасное здание, переменной этажности. Расположенное в самом центре города Барнаула, на улице Папанинцев 155. Проект реализуется застройщиком ООО "СЗ "ИСК "Авангард". Комплекс включает в себя 2 блок секции 20 и 23 этажа, возведенных на общем стилобате. ЖК "Империал" расположен в развитом центре города Барнаула с отличной транспортной доступностью, рядом остановки автобусов и трамваев. Что Вы получаете в своей новой квартире: - входная дверь с шумоизоляцией; - просторные светлые комнаты с панорамными окнами; - свободную планировку без отделки; - стяжка пола с дополнительной шумоизоляцией; - установленные внутренние инженерные коммуникации. Важно, чтобы жители нашего комплекса, даже за пределами своей квартиры оставались защищенными на придомовой территории. В жилом комплексе "Империал" - этому способствует, закрытая территория двора, видеокамеры по периметру, а также консьерж в каждой секции. Двухуровневый паркинг, рассчитанный на 183 машино-места, с функцией распознавания номеров, что обеспечивает высокий уровень безопасности. В каждой секции предусмотрены помещения для хранения колясок и велосипедов, а также грузовые и пассажирские лифты для удобства жителей. А также лаунж зоны для резидентов комплекса такие как: 2 детские игровые зоны для деток разного возраста, фитнес зал (доступный только для жителей комплекса) и открытая приватная терраса. В шаговой доступности расположены: крупнейшие ВУЗы края, престижные школы, детские сады. Территория застройки находится в собственности у Застройщика. Реализация квартир осуществляется путем заключения договоров долевого участия в соответствии с ФЗ-214.



164 410 ₽/м²
Код объекта: 1353844. Дом поставлен на кадастровый учет. Выдача ключей в ближайшие время! Вся стоимость в договоре ! Один взрослый собственник ! ЖК Сoвpeменник состоит из 4 домов с закрытой территорией и подземной парковкой . Комплекс находиться в центpе гоpодa. В шаговой доступности расположены автобусные остановки, две школы, 5 детских садов , ВУЗы а также один из самых больших торгово-развлекательных центров города GАLАХY. На первом этаже будут торгово-офисные помещения, после сдачи дома будут магазины, кафе, аптеки, студии красоты ЖК "Современник" оправдывает свое название современным подходом к организации комфортного проживания. Он начинается с того, что в доме выделено место для консьержа или охранника, в цокольной части дома находятся кладовые и у жителей больше не будет захламленных балконов. Для маленьких жителей в новом ЖК предусмотрена современная игровая зона с полноценным зонированием для различных возрастных категорий. Для любителей отдыха имеется отдельная мини-парковая зона, выполненная в концепции тихого сада с газоном, деревьями, кустарниками и удобными зонами отдыха со скамейками. Для автовладельцев предусмотрен подземный паркинг, попасть в который можно как спустившись туда из дома на лифте, так и со двора. Достойный выбор для комфортной жизни !



221 964 ₽/м²
В продаже 1-комнатная квартира в ЖК Вечера. Дом бизнес-класса, состоит из 6 блок секций разной этажности: от 6 до 10 этажей, кирпичный, своя газовая котельная. Двор без машин с детскими площадками и спортивным комплексом. Окна выходят во двор в сторону Социалистического проспекта. Один взрослый собственник. Быстрый выход на сделку.



197 869 ₽/м²
В продаже квартира в ЖК Вечера дом кирпичный , дом комфорт класса . Своя газовая котельная газовая, на этаже мало квартир . двор без авто два окна выходят во двор в сторону социалистического проспекта , и одно в сторону администрации чистая продажа быстро выйдем на сделку



197 095 ₽/м²
Продам студию 24,1 кв.м. в самом центре г.Барнаул! ЖК Smart за БЮИ. ДОМ СДАН Вы можете приобрести эту квартиру под ставку 12,99% Дом 16 этажей со встроено пристроенной автостоянкой на 40 машино мест: гостевая на 16 и придомовая на 23. Дом огорожен, детская игровая площадка, выход на кровлю с помощью домофонного ключа, где будет установлен спортивный инвентарь и скамейки для отдыха. Конструктив: монолитный железобетонный каркас с заполнением газобетонными блоками, облицовка фасада - силикатный кирпич. Отделка: черновая (пол цементно-песчаная стяжка, стены - простая штукатурка, потолок - монолитная железобетонная стяжка). Разводка отопления - горизонтальная - экономия на коммунальных платежах; Электрика заведена в квартиру: без разводки по самой квартире. Система горячего и холодного водоснабжения заведена в квартиру. 1 собственник



187 547 ₽/м²
Код объекта: 1403266. Продается уютная студия в центре города. Современный жилой комплекс с кирпичными домами, закрытой территорией, подземным паркингом. Основное преимущество жилого комплекса - это местоположение. В шаговой доступности АлтГПУ, АГАУ, АГМУ, Педагогический лицей, Гимназия 42, 69 и т.д. Рядом с домом магазины, торговые центры, бьюти салоны, кафе, все, что необходимо для комфортной жизни. Квартира отлично подойдет как для собственного проживания, так и для сдачи в аренду. Звоните, расскажу подробнее.


220 000 ₽/м²
Продаётся 1-комнатная квартира в строящемся доме (Дом 1), срок сдачи: I-кв. 2027, общей площадью 39.8 кв.м., на 1 этаже. Новый жилой комплекс от Специализированного застройщика "Прометей" расположен по адресу: г. Барнаул, по ул. Приречная.



220 894 ₽/м²
Продаётся 1-комнатная квартира в строящемся доме (Чернышевского, 39 (Дом 1)), срок сдачи: IV-кв. 2027, общей площадью 31 кв.м., на 5 этаже. Новый жилой комплекс от группы компаний "Жилищная Инициатива" расположен по адресу: г. Барнаул, по ул. Чернышевского.


150 000 ₽/м²
Продаётся 2-комнатная квартира в строящемся доме (Дом 1), срок сдачи: IV-кв. 2027, общей площадью 65.12 кв.м., на 5 этаже. 9 этажный многоквартирный жилой дом с помещениями общественного назначения и подземной автостоянкой, расположенный на пересечение с пр. Комсомольским и ул. Никитина. Гигантские квартиры и паркинг В ЖК будет 57 квартир площадью от 28 до 255 квадратных метров. Всего дом рассчитан на проживание 95 человек. На первом этаже здания будут офисные помещения и помещения для досуга. в ЖК предусмотрели 50 машино-мест: 37 - в подземном паркинге, еще 13 - на территории участка. Здание возведут в тон окружающей застройке.



180 000 ₽/м²
Продаётся 1-комнатная квартира в строящемся доме (БС 4), срок сдачи: IV-кв. 2028, общей площадью 37.99 кв.м., на 2 этаже. Новый жилой комплекс "Фортлайф" от группы компаний "Строительный Камень ИСК" расположен по адресу: г. Барнаул, по ул. пр-кт Комсомольский.



194 728 ₽/м²
Продаётся 2-комнатная квартира в строящемся доме (Чернышевского, 39 (Дом 1)), срок сдачи: IV-кв. 2027, общей площадью 49 кв.м., на 2 этаже. Новый жилой комплекс от группы компаний "Жилищная Инициатива" расположен по адресу: г. Барнаул, по ул. Чернышевского.



193 319 ₽/м²
Продаётся 2-комнатная квартира в строящемся доме (Чернышевского, 39 (Дом 1)), срок сдачи: IV-кв. 2027, общей площадью 47 кв.м., на 2 этаже. Новый жилой комплекс от группы компаний "Жилищная Инициатива" расположен по адресу: г. Барнаул, по ул. Чернышевского.


365 810 ₽/м²
Продаётся 2-комнатная квартира в строящемся доме (Башня 3), срок сдачи: III-кв. 2029, общей площадью 56.8 кв.м., на 6 этаже. Новый жилой комплекс "Сахаров Парк" от Специализированного застройщика "ДомСтрой-Барнаул22" расположен по адресу: г. Барнаул, Социалистический пр-кт.



181 000 ₽/м²
Жилой комплекс "Империал", представляет собой двухсекционное монолитно-каркасное здание, переменной этажности. Расположенное в самом центре города Барнаула, на улице Папанинцев 155. Проект реализуется застройщиком ООО "СЗ "ИСК "Авангард". Комплекс включает в себя 2 блок секции 20 и 23 этажа, возведенных на общем стилобате. ЖК "Империал" расположен в развитом центре города Барнаула с отличной транспортной доступностью, рядом остановки автобусов и трамваев. Что Вы получаете в своей новой квартире: - входная дверь с шумоизоляцией; - просторные светлые комнаты с панорамными окнами; - свободную планировку без отделки; - стяжка пола с дополнительной шумоизоляцией; - установленные внутренние инженерные коммуникации. Важно, чтобы жители нашего комплекса, даже за пределами своей квартиры оставались защищенными на придомовой территории. В жилом комплексе "Империал" - этому способствует, закрытая территория двора, видеокамеры по периметру, а также консьерж в каждой секции. Двухуровневый паркинг, рассчитанный на 183 машино-места, с функцией распознавания номеров, что обеспечивает высокий уровень безопасности. В каждой секции предусмотрены помещения для хранения колясок и велосипедов, а также грузовые и пассажирские лифты для удобства жителей. А также лаунж зоны для резидентов комплекса такие как: 2 детские игровые зоны для деток разного возраста, фитнес зал (доступный только для жителей комплекса) и открытая приватная терраса. В шаговой доступности расположены: крупнейшие ВУЗы края, престижные школы, детские сады. Территория застройки находится в собственности у Застройщика. Реализация квартир осуществляется путем заключения договоров долевого участия в соответствии с ФЗ-214.
| 🔷 Средняя цена продажи: | 20,9 млн ₽ |
| 🔷 Средняя цена за м2: | 176,5 тыс. ₽/м² |
| 🔷 Минимальная стоимость: | 14,1 млн ₽ |
| 🔷 Самый дорогой объект: | 24,4 млн ₽ |