12 875 ₽/м²
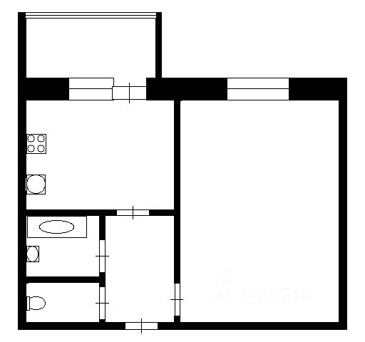
ОАО РЖД предлагает к продаже трехкомнатную квартиру общей площадью 72,7 кв. м на станции Смазнево. Квартира расположена в двухквартирном жилом доме 2012 года постройки, материал стен щитовые панели. Изолированные жилые комнаты общей площадь 41,9 кв. м, кухня площадью 11,3 кв. м, санузел совмещенный. В квартире выполнен косметический ремонт, окна из пластикового стеклопакета. Инженерные коммуникации: электроснабжение, водопровод и канализация центральные, отопление комбинированное (электрокотел/твердое топливо). На территории имеется хоз. блок. В шаговой доступности школа, детский сад, почтовое отделение, врачебная амбулатория, магазины, остановка общественного транспорта. Жилой дом расположен на земельном участке площадью 2620 кв. м, новым собственником будет оформлено право общей долевой собственности пропорционально размеру общей площади квартиры. Об организации осмотра и подробных условиях продажи Вы можете узнать по телефону в объявлении.





































































