
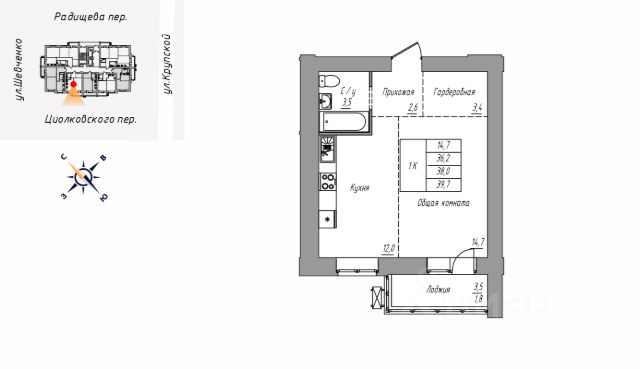
164 000 ₽/м²
Продаётся 1-комнатная квартира в строящемся доме (Дом 1), срок сдачи: I-кв. 2027, общей площадью 40.5 кв.м., на 13 этаже. Новый жилой комплекс "Колос" от Специализированного застройщика "Восход" расположен по адресу: г. Барнаул, по ул. Интернациональная.






































































































