

















128 000 ₽/м²
Продаю шикарную евро 3 комнатную квартиру в кирпичном доме с подземной парковкой и бассейном. Окна в квартире выходят на две стороны ( запад и восток). Из окон открывается восхитительный вид на улицу и город, добавляющий свет и свежесть в интерьер. В квартире стоят индивидуальные счетчики отопления. Дом расположен в тихом не проходном месте с собственной огороженной детской площадкой. Есть наземный и подземный паркинг. В районе есть парки отдыха ( Юбилейный, Эдельвейс, Лесная сказка и Арлекино) Рядом расположены две школы, два детских садика, различные продуктовые магазины, озон , валбирис, яндекс маркет, аптеки, больницы, поликлиники. В районе есть несколько спортивных школ, музыкальная школа, художественная школа. Также по близости есть несколько фитнес центров. Рядом с домом хорошая транспортная развязка, можно добраться в любую часть города. Также в шаговой доступности ТРЦ Весна и ТРЦ Огни. В доме есть детский бассейн и спортивная школа по самбо и дзюдо Документы готовы.

145 000 ₽/м²
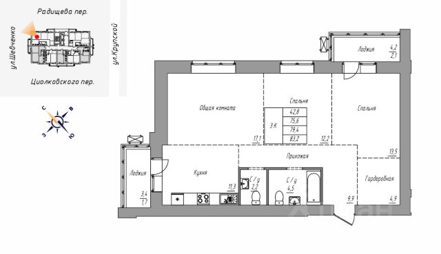
Продаётся 3-комнатная квартира в строящемся доме (Шевченко, 135), срок сдачи: I-кв. 2026, общей площадью 61.35 кв.м., на 13 этаже. ЖК Дружба представляет собой комплексную застройку, возводимую по монолитно-каркасной технологии с заполнением из крупных каменных блоков и панелей. Дом 124 по улице Крупской сдан в 3 квартале 2018 года. Цветовое решение, выбранное для объекта, напоминает российский триколор. В доме предусмотрено 148 одно- и двухкомнатных квартир от 23 кв. м, 2 подъезда. Квартиры сданы под чистовую отделку: стены из газобетона, оштукатурены. Пол без отделки. Согласно проекта, в квартира застекленные балконы, смежный санузел. Объект на Крупской 118 - это второй дом квартала "Дружба". 16-ти этажный многоквартирный дом с объектами общественного назначения на первом этаже, а так же с предусмотренной подземной парковкой на 41 машино-место. Застройщиком выполнится благоустройство придомовой территории: детские площадки, зоны отдыха. Дом расположен в центре города, рядом с ведущими ВУЗами. В шаговой доступности: детские сады, школы, медицинские учреждения и торгово-развлекательные центры.



218 301 ₽/м²
Код объекта: 2084508. Уютная трёхкомнатная квартира в престижном комплексе "Две эпохи" от надежного застройщика "Строительная перспектива". Закрытая территория обеспечивает безопасность, она оборудована всем необходимым для времяпровождения детей и взрослых. Видеонаблюдение по периметру. Удачное расположение дома. Вы находитесь в центре города и вдали от шума одновременно. Вблизи расположен зеленый парк, где можно заняться спортом и просто прогуливаться в свое удовольствие. Евроремонт позволит вам сразу заселиться без дополнительных вложений. На просторной кухне хватит места для всей семьи. Дом построен из качественных материалов (кирпичные стены, монолитные перекрытия), что гарантирует долговечность и надёжность конструкции. Не упустите шанс стать владельцем этой прекрасной квартиры! Позвоните нам чтобы узнать больше и записаться на просмотр. Мы гарантируем безопасную сделку и юридическую поддержку нашим Клиентам. Поможем одобрить ипотеку с сниженной ставкой.



174 969 ₽/м²
Продаётся 3-комнатная квартира в строящемся доме (Дом 1), срок сдачи: IV-кв. 2027, общей площадью 79.9 кв.м., на 13 этаже. Новый жилой комплекс "На Крупской, 100" от группы компаний "Строительная Перспектива ПСК" расположен по адресу: г. Барнаул, по ул. Крупской.



136 999 ₽/м²
3-комнатная квартира в центре Барнаула — архитектура вашего будущего интерьера Редкий формат для тех, кто не ищет компромиссов и хочет создать пространство под свой сценарий жизни. Главное преимущество — гибкость планировки: — шикарная кухня-гостиная — 2 изолированные комнаты — спальни, кабинет или детскую — гардеробная — эстетика и порядок для вашего пространства — + третья мокрая точка, позволяющая спроектировать мастер-блок с приватной душевой — большая входная зона Свет и воздух: — окна на две стороны — баланс уюта и панорамных видов — два балкона — больше света и вариантов использования пространства Что вокруг: — закрытая территория — подземный паркинг — качественная шумоизоляция Локация, которая работает на вас: — центр Барнаула — ТЦ "Гулливер" и "Сити-центр" — образовательные учреждения рядом — гастрономия и кофейни в шаговой доступности — удобная транспортная доступность Это квартира с потенциалом, который раскрывается через дизайн и ваши решения! Подходит под все виды ипотеки, сопровождение сделки. Есть возможность покупки по сниженной ставке от 11,99%. Код пользователя: 203186 Номер в базе: 12522608









148 462 ₽/м²
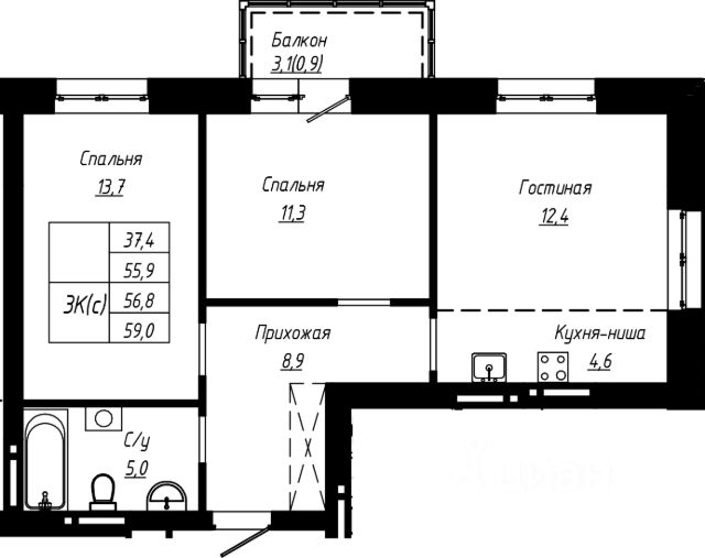
Уютная двухкомнатная (евро трёшка) квартира в современном доме, построенном в 2019 году по усовершенствованной панельной технологии. В основе зданий прочные железобетонные конструкции. Использование современных утеплителей создает комфортный микроклимат в помещении, повышает звуко- и теплоизоляционные свойства. Общая площадь квартиры составляет 56 кв. м, а кухня — 17,8 кв. м. Квартира расположена на 13 этаже из 17, что позволяет наслаждаться комфортным видом не только на двор. Все три комнаты отлично продуманы для комфортного проживания. Кухня просторная, здесь можно не только готовить, но и собираться всей семьей за обеденным столом и располагаться на диване для совместного просмотра фильмов. Есть 2 лоджии которые станут отличным местом для отдыха. Дом оборудован пассажирским и грузовым лифтами. Огороженный периметр и двор без машин призваны создать комфортное пространство для жизни. Предусмотрены прогулочные зоны, беговые дорожки, детские площадки, места для занятий спортом и спокойного отдыха. Парковочные места расположатся по внешнему периметру жилого комплекса и есть подземная парковка. Так же есть помещение на первом этаже для хранения колясок и велосипедов. Квартира куплена с нулевого цикла постройки дома, в собственности с 2019 года, а в 2025 году закрыта ипотека и выделены доли детям в декабре 2025 года. Чистая продажа, три собственника, доли детям выделены, квартира счастливая, ипотека закрыта досрочно!!! Продается вместе с мебелью и бытовой техникой: уголок школьника, два письменных стола, два пинала, две кровати, диван, два шкафа купе, кухонный стол, кухонный гарнитур, стиральная машинка, встроенная духовка, варочная панель, холодильник. Необходимый набор мебели и техники дает возможность как для собственного проживания так и для сдачи квартиры в аренду. В Индустриальном районе Барнаула жилой комплекс Адмирал. Удобные выезды на улицы Попова и Власихинская и близость одной из крупнейших магистралей Павловского тракта позволят автомобилистам быстро добраться в любую точку города. Дорога на машине до центральных и деловых кварталов займет менее пятнадцати минут. На общественном транспорте на этот путь нужно потратить около сорока минут (с учетом ожидания). В шаговой доступности от жилого комплекса находятся остановки маршрутных такси, автобусов и трамваев. В районе ЖК Адмирал, хорошо развита сеть инфраструктуры. Недалеко от дома находятся продовольственные магазины, супермаркеты (Мария-Ра, Пятерочка, Ярче!, Хорошее настроение). За десять минут можно доехать до гипермаркета Лента, сетевого магазина строительных материалов и товаров для дома Леруа Мерлен, ТРЦ Арена. В шаговой доступности от Адмирала работают общеобразовательные учреждения, в том числе лицей 121, школы. Также в шаговой доступности расположены спортивные комплексы, бассейны, тренажерные залы, аптеки, современные поликлиники для взрослых и детей.
















421 376 ₽/м²
Продаётся 3-комнатная квартира в строящемся доме (Башня 3), срок сдачи: III-кв. 2029, общей площадью 147.5 кв.м., на 13 этаже. Новый жилой комплекс "Сахаров Парк" от Специализированного застройщика "ДомСтрой-Барнаул22" расположен по адресу: г. Барнаул, Социалистический пр-кт.






165 800 ₽/м²
Продаётся 3-комнатная квартира в строящемся доме (Дом 10), срок сдачи: IV-кв. 2029, общей площадью 60 кв.м., на 13 этаже. Новый жилой комплекс "Родные берега" от застройщика "Жилищная Инициатива" расположен по адресу: Алтайский край, г. Барнаул, Центральный район , улица Промышленная






178 000 ₽/м²
Жилой комплекс "Империал", представляет собой двухсекционное монолитно-каркасное здание, переменной этажности. Расположенное в самом центре города Барнаула, на улице Папанинцев 155. Проект реализуется застройщиком ООО "СЗ "ИСК "Авангард". Комплекс включает в себя 2 блок секции 20 и 23 этажа, возведенных на общем стилобате. ЖК "Империал" расположен в развитом центре города Барнаула с отличной транспортной доступностью, рядом остановки автобусов и трамваев. Что Вы получаете в своей новой квартире: - входная дверь с шумоизоляцией; - просторные светлые комнаты с панорамными окнами; - свободную планировку без отделки; - стяжка пола с дополнительной шумоизоляцией; - установленные внутренние инженерные коммуникации. Важно, чтобы жители нашего комплекса, даже за пределами своей квартиры оставались защищенными на придомовой территории. В жилом комплексе "Империал" - этому способствует, закрытая территория двора, видеокамеры по периметру, а также консьерж в каждой секции. Двухуровневый паркинг, рассчитанный на 183 машино-места, с функцией распознавания номеров, что обеспечивает высокий уровень безопасности. В каждой секции предусмотрены помещения для хранения колясок и велосипедов, а также грузовые и пассажирские лифты для удобства жителей. А также лаунж зоны для резидентов комплекса такие как: 2 детские игровые зоны для деток разного возраста, фитнес зал (доступный только для жителей комплекса) и открытая приватная терраса. В шаговой доступности расположены: крупнейшие ВУЗы края, престижные школы, детские сады. Территория застройки находится в собственности у Застройщика. Реализация квартир осуществляется путем заключения договоров долевого участия в соответствии с ФЗ-214.












176 000 ₽/м²
Жилой комплекс "Империал", представляет собой двухсекционное монолитно-каркасное здание, переменной этажности. Расположенное в самом центре города Барнаула, на улице Папанинцев 155. Проект реализуется застройщиком ООО "СЗ "ИСК "Авангард". Комплекс включает в себя 2 блок секции 20 и 23 этажа, возведенных на общем стилобате. ЖК "Империал" расположен в развитом центре города Барнаула с отличной транспортной доступностью, рядом остановки автобусов и трамваев. Что Вы получаете в своей новой квартире: - входная дверь с шумоизоляцией; - просторные светлые комнаты с панорамными окнами; - свободную планировку без отделки; - стяжка пола с дополнительной шумоизоляцией; - установленные внутренние инженерные коммуникации. Важно, чтобы жители нашего комплекса, даже за пределами своей квартиры оставались защищенными на придомовой территории. В жилом комплексе "Империал" - этому способствует, закрытая территория двора, видеокамеры по периметру, а также консьерж в каждой секции. Двухуровневый паркинг, рассчитанный на 183 машино-места, с функцией распознавания номеров, что обеспечивает высокий уровень безопасности. В каждой секции предусмотрены помещения для хранения колясок и велосипедов, а также грузовые и пассажирские лифты для удобства жителей. А также лаунж зоны для резидентов комплекса такие как: 2 детские игровые зоны для деток разного возраста, фитнес зал (доступный только для жителей комплекса) и открытая приватная терраса. В шаговой доступности расположены: крупнейшие ВУЗы края, престижные школы, детские сады. Территория застройки находится в собственности у Застройщика. Реализация квартир осуществляется путем заключения договоров долевого участия в соответствии с ФЗ-214.









178 000 ₽/м²
Продаётся 3-комнатная квартира в строящемся доме (Папанинцев, 155 (Блок-секция 1-2)), срок сдачи: III-кв. 2028, общей площадью 57.1 кв.м., на 13 этаже. Новый жилой комплекс "Империал" от группы компаний "Авангард" расположен по адресу: г. Барнаул, по ул. Папанинцев.



178 000 ₽/м²
Продаётся 3-комнатная квартира в строящемся доме (Папанинцев, 155 (Блок-секция 1-2)), срок сдачи: III-кв. 2028, общей площадью 56.9 кв.м., на 13 этаже. Новый жилой комплекс "Империал" от группы компаний "Авангард" расположен по адресу: г. Барнаул, по ул. Папанинцев.












278 780 ₽/м²
Продаётся 3-комнатная квартира в строящемся доме (Башня "Мира" (Корпус 2)), срок сдачи: I-кв. 2030, общей площадью 83.6 кв.м., на 13 этаже. Две башни формируют принципиально новое городское life-style пространство для жителеи и горожан. Единыи ансамбль площади Баварина и набережнои станет новым городским центром. АРХИТЕКТУРНЫЙ КОМПЛЕКС СТАНЕТ СИМВОЛИЧЕСКИМИ ВОРОТАМИ В ГОРОД И ЕГО ВИЗИТНОИ КАРТОЧКОИ И ОТРАЗИТ РАЗВИТИЕ БАРНАУЛА. Инфраструктура и расположение ТЕРРИТОРИЯ КОМПЛЕКСА - ВАЖНАЯ ТОЧКА, СВЯЗЫВАЮЩАЯ ДЕЛОВОИ И КУЛЬТУРНЫИ ЦЕНТРЫ БАРНАУЛА. БАШНИ ЗАМЫКАЮТ СТВОР УЛИЦЫ ЛЕНИНА И СЛУЖАТ ГОРОДСКИМИ ВОРОТАМИ НА НАБЕРЕЖНУЮ. Башни "Столица" и "Мира" будут буквально парить в воздухе у набережной. Дома установят на стилобат - платформу до высоты третьего этажа. Решение даст возможность пересекать территорию насквозь через комплекс к реке. Башни создают новые пешеходные связи со стороны улицы Ленина к набережнои.












167 320 ₽/м²
Продаётся 3-комнатная квартира в строящемся доме (Павловский тракт, 251Б (Дом 1)), срок сдачи: I-кв. 2028, общей площадью 62.2 кв.м., на 13 этаже. Новый жилой комплекс "Павлов" от группы компаний "СЕЛФ" расположен по адресу: г. Барнаул, по ул. Павловский тракт.



176 000 ₽/м²
Продаётся 3-комнатная квартира в строящемся доме (Папанинцев, 155 (Блок-секция 1-2)), срок сдачи: III-кв. 2028, общей площадью 66.9 кв.м., на 13 этаже. Новый жилой комплекс "Империал" от группы компаний "Авангард" расположен по адресу: г. Барнаул, по ул. Папанинцев.












165 400 ₽/м²
Продаётся 3-комнатная квартира в строящемся доме (Дом 10), срок сдачи: IV-кв. 2029, общей площадью 62 кв.м., на 13 этаже. Новый жилой комплекс "Родные берега" от застройщика "Жилищная Инициатива" расположен по адресу: Алтайский край, г. Барнаул, Центральный район , улица Промышленная
| 🔷 Средняя цена продажи: | 10,4 млн ₽ |
| 🔷 Средняя цена за м2: | 165,8 тыс. ₽/м² |
| 🔷 Минимальная стоимость: | 7,9 млн ₽ |
| 🔷 Самый дорогой объект: | 52,3 млн ₽ |