











133 462 ₽/м²
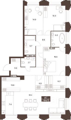
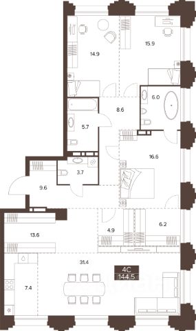
Предлагается отличная 4 комнатная квартира в деловом центре города по улице Молодежная дом 59 район 42 гимназии. Квартира расположена на видовом 13 этаже в 16-этажном доме повышенной комфортности. Монолитно - кирпичный дом, 4 квартиры на площадке. Общая площадь квартиры 103,4 кв.м. Дом построен в 2015 году. Характеристики: Продуманная и практичная планировка квартиры дает возможность для комфортного проживания большой семьей. 4 изолированные комнаты и кухня, 2 просторных санузла. Окна квартиры расположены на разные стороны, все ваши рассветы и закаты. Очень много естественного освещения. В квартире выполнен качественный ремонт: уложено напольное покрытие, качественная сантехника, обои в спокойных тонах, пластиковые окна с трёхкамерным остеклением. В ремонте использованы только качественные и современные материалы. 3 просторные утепленные лоджии с потрясающими видами на город. Дополнительно установлено видеонаблюдение, охранная сигнализация, система приточно вытяжной вентиляции. Во дворе: Собственная закрытая территория с большим количеством мест для парковки автомобилей. Детская игровая и спортивная площадки, места для отдыха и игр на свежем воздухе. Организовано собственное ТСЖ для оперативного решения бытовых вопросов. Идеальное месторасположение: Наш дом расположен в непосредственной близости к известным краевым ВУЗам, лучшие гимназии также находятся в шаговой доступности 22, 42, 69, детские сады ясли 239, 193, центр детского творчества Центрального района, плавательный бассейн Обь, все спортивные и торговые центры рядом. Все виды транспорта на пр. Красноармейском в 5 минутах ходьбы. Документы оформлены надлежащим образом зарегистрировано право собственности. Квартира без обременений, чистая продажа, уместен разумный торг. Арт. 134365581



251 240 ₽/м²
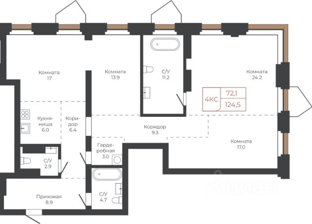
Продаётся 4-комнатная квартира в строящемся доме (Башня "Столица" (Корпус 1)), срок сдачи: I-кв. 2030, общей площадью 123.9 кв.м., на 13 этаже. Две башни формируют принципиально новое городское life-style пространство для жителеи и горожан. Единыи ансамбль площади Баварина и набережнои станет новым городским центром. АРХИТЕКТУРНЫЙ КОМПЛЕКС СТАНЕТ СИМВОЛИЧЕСКИМИ ВОРОТАМИ В ГОРОД И ЕГО ВИЗИТНОИ КАРТОЧКОИ И ОТРАЗИТ РАЗВИТИЕ БАРНАУЛА. Инфраструктура и расположение ТЕРРИТОРИЯ КОМПЛЕКСА - ВАЖНАЯ ТОЧКА, СВЯЗЫВАЮЩАЯ ДЕЛОВОИ И КУЛЬТУРНЫИ ЦЕНТРЫ БАРНАУЛА. БАШНИ ЗАМЫКАЮТ СТВОР УЛИЦЫ ЛЕНИНА И СЛУЖАТ ГОРОДСКИМИ ВОРОТАМИ НА НАБЕРЕЖНУЮ. Башни "Столица" и "Мира" будут буквально парить в воздухе у набережной. Дома установят на стилобат - платформу до высоты третьего этажа. Решение даст возможность пересекать территорию насквозь через комплекс к реке. Башни создают новые пешеходные связи со стороны улицы Ленина к набережнои.



141 818 ₽/м²
Арт. 52947996 Продаётся уютная 4-х комнатная квартира по адресу ул. Партизанская д. 76. Дом сдан! Описание: - своя газовая котельная; - подземная стоянка на 50 мест; - лифт спускается в паркинг; - есть отдельный вход в грузовой лифт; - кладовки площадью до 15 кв.м на подземном этаже; - системы видеонаблюдения на территории двора. ЖК "Жемчужина" строит в окружении хорошо развитой социальной и коммерческой инфраструктуры. Вокруг новостройки свыше десятка деловых и бизнес-центров. Более того, на трёх нижних этажах нового дома расположены офисные помещения, предприятия общественного питания, торговые и выставочные залы и бизнес-центр PARTIZAN 24/7, который планируется сделать круглосуточным. В пешей доступности есть школы, детские сады, лицеи и ВУЗы. Многоквартирный дом на Партизанской 76 расположен между крупными транспортными артериями Барнаула - проспектами Ленина и Комсомольским. Возможен обмен на коммерческую недвижимость с вашей или моей доплатой. Обращайтесь, проведу экскурсию, отвечу на все ваши вопросы












256 340 ₽/м²
Продаётся 4-комнатная квартира в строящемся доме (Башня "Мира" (Корпус 2)), срок сдачи: I-кв. 2030, общей площадью 130 кв.м., на 13 этаже. Две башни формируют принципиально новое городское life-style пространство для жителеи и горожан. Единыи ансамбль площади Баварина и набережнои станет новым городским центром. АРХИТЕКТУРНЫЙ КОМПЛЕКС СТАНЕТ СИМВОЛИЧЕСКИМИ ВОРОТАМИ В ГОРОД И ЕГО ВИЗИТНОИ КАРТОЧКОИ И ОТРАЗИТ РАЗВИТИЕ БАРНАУЛА. Инфраструктура и расположение ТЕРРИТОРИЯ КОМПЛЕКСА - ВАЖНАЯ ТОЧКА, СВЯЗЫВАЮЩАЯ ДЕЛОВОИ И КУЛЬТУРНЫИ ЦЕНТРЫ БАРНАУЛА. БАШНИ ЗАМЫКАЮТ СТВОР УЛИЦЫ ЛЕНИНА И СЛУЖАТ ГОРОДСКИМИ ВОРОТАМИ НА НАБЕРЕЖНУЮ. Башни "Столица" и "Мира" будут буквально парить в воздухе у набережной. Дома установят на стилобат - платформу до высоты третьего этажа. Решение даст возможность пересекать территорию насквозь через комплекс к реке. Башни создают новые пешеходные связи со стороны улицы Ленина к набережнои.



253 280 ₽/м²
Продаётся 4-комнатная квартира в строящемся доме (Башня "Мира" (Корпус 2)), срок сдачи: I-кв. 2030, общей площадью 122.3 кв.м., на 13 этаже. Две башни формируют принципиально новое городское life-style пространство для жителеи и горожан. Единыи ансамбль площади Баварина и набережнои станет новым городским центром. АРХИТЕКТУРНЫЙ КОМПЛЕКС СТАНЕТ СИМВОЛИЧЕСКИМИ ВОРОТАМИ В ГОРОД И ЕГО ВИЗИТНОИ КАРТОЧКОИ И ОТРАЗИТ РАЗВИТИЕ БАРНАУЛА. Инфраструктура и расположение ТЕРРИТОРИЯ КОМПЛЕКСА - ВАЖНАЯ ТОЧКА, СВЯЗЫВАЮЩАЯ ДЕЛОВОИ И КУЛЬТУРНЫИ ЦЕНТРЫ БАРНАУЛА. БАШНИ ЗАМЫКАЮТ СТВОР УЛИЦЫ ЛЕНИНА И СЛУЖАТ ГОРОДСКИМИ ВОРОТАМИ НА НАБЕРЕЖНУЮ. Башни "Столица" и "Мира" будут буквально парить в воздухе у набережной. Дома установят на стилобат - платформу до высоты третьего этажа. Решение даст возможность пересекать территорию насквозь через комплекс к реке. Башни создают новые пешеходные связи со стороны улицы Ленина к набережнои.



146 154 ₽/м²
Продается уютная двухкомнатная квартира в центре Барнаула по адресу: Социалистический проспект, 63. Площадь квартиры — 52,5 кв. м, расположена на 7-м этаже 14-этажного дома, построенного в 1993 году. Квартира отлично подойдет для семьи. В квартире сделан косметический ремонт, который позволит вам сразу заехать и жить. Площадь кухни составляет 8 кв. м, что дает достаточно места для комфортного приготовления пищи. Санузел раздельный, поэтому можно использовать его одновременно нескольким членам семьи. Балкон застеклен и выходит на улицу, что добавляет дополнительное пространство и свет в квартиру. Дом оборудован пассажирским и грузовым лифтами, поэтому можно с легкостью подниматься на свой этаж с любым грузом. Наземная парковка рядом с домом позволяет всегда найти место для своего автомобиля. В доме работает мусоропровод, поэтому у вас не будет проблем с утилизацией отходов. Район, в котором расположена квартира, обладает развитой инфраструктурой. В пешей доступности находятся школы, детские сады, клиники и магазины, поэтому можно быстро и без проблем добраться до всех необходимых учреждений. Хорошая транспортная доступность позволяет легко добраться до любой точки города. Квартира продается от собственника, поэтому вы избежите лишних комиссий и переплат. Возможна покупка в ипотеку. Юридически чистая сделка, без обременений. Часть мебели остаётся в квартире. Просмотр возможен в любое время по договорённости. Риелторов не беспокоить.



147 465 ₽/м²
Уютная светлая теплая двушка в кирпичном доме в самом центре Барнаула. Третий этаж, окна во двор. Есть балкон. Пластиковые окна свежие, заменены радиаторы отопления, поставлены счетчики на воду, газ, электричество. Отличное предложение как для жилья, так и для инвестиций. Рядом крупные учебные заведения: медицинский, политехнический, классический университеты. Один собственник, прямая продажа, обременения отсутствуют.



269 231 ₽/м²
Продается просторная трехкомнатная квартира площадью 130 кв. м с высотой потолков 5 метров. Расположена на 12-м этаже 13-этажного дома, построенного в 2021 году. Квартира находится в современном жилом комплексе - Столичный, отличающемся удобной инфраструктурой и комфортом. В квартире сделан уникальный дизайнерский ремонт, что придаёт интерьеру уникальный стиль и уют. В создании интерьера использованы максимально качественные материалы - все делали под себя. Просторная зона кухни позволяет с комфортом готовить и проводить время с семьей. В квартире есть две совмещенные ванные комнаты, что особенно удобно для большой семьи. Окна выходят на улицу и во двор, поэтому всегда светло и тихо. Дом оборудован пассажирским и грузовым лифтами, что удобно для перемещения с крупногабаритными предметами. Для вашего автомобиля предусмотрена подземная парковка, поэтому вы можете быть уверены в его безопасности. Рядом с домом находятся школы и детские сады, поэтому это отличное место для семей с детьми. В шаговой доступности клиники и магазины, что делает жизнь здесь более комфортной. Документы готовы к сделке, возможна ипотека. Один взрослый собственник, полная цена в договоре. Приглашаем вас на просмотр, чтобы вы лично оценили все преимущества этой квартиры. Звоните и записывайтесь на удобное для вас время!



113 800 ₽/м²
Продаётся уютная 2-комнатная квартира, в центре города. Адрес: ул. Чкалова, 57, (подъезд со двора, со стороны гостиницы). Дом: 1978 года постройки, 9 этажей, пассажирский лифт. Площадь: 50 кв.м. Этаж: 3-й Панельный дом, 121 серии с изолироваными комнатами и раздельным с/узлом. Окна выходят на ул. Чкалова. Собственность: 2 взрослых собственника, без обременений. Ключевые преимущества: 1. Идеальное расположение: Центр города, всё в шаговой доступности: школа 55 (напротив), детский сад, вузы, остановка у дома. 2. Тихий и зелёный двор: Дом с двумя ухоженными дворами. 3. Удобная парковка: Во дворе оборудована большая парковка (под камерами видеонаблюдения), всегда есть свободные места. 4. Отличный вариант для семьи: Комфорт, тишина, безопасность и вся инфраструктура в шаговой доступности. Звоните, договоримся по просмотру!



141 379 ₽/м²
Просторная светлая квартира в самом центре города. Потолки 3 метра. 100% шумоизоляция. Вид на Ленинский проспект и памятник Ползунову. Закатный свет в спальне, рассветный на кухне и гостиной. Прекрасная инвестиция и отличный вариант для посуточной аренды. Все что нужно для комфортной жизни без пробок- в минутной шаговой доступности! Детский сад во дворе, спортивня площадка, школы, поликлиники, кофейни, больницы, университеты, ТЦ и магазины. Все рядом! Кладовая и бетонный погреб во дворе прилагаются! Большие парковочные места у подьезда всегда свободны. Встроенная мебель, светотехника, сантехника и тп. остаются новым владельцам. Перепланировка уже сделана. На фото одно из возможных стилевых решений интерьера. На всех фотографиях - реальный интерьер данной квартиры в текущем состоянии. Один взрослый собственник. Документы готовы.



237 500 ₽/м²
Код объекта: 2163385. Уютная квартира в сердце города — ваш идеальный старт в жизни мегаполиса! Представьте: вы просыпаетесь в стильной квартире в самом центре, за окном — пульс города, а у вас — всё для комфортной жизни: просторная кухня, где хватит места и для готовки, и для уютных посиделок (можно поставить небольшой диванчик!); отдельная гардеробная — больше никакого беспорядка; шикарный дизайнерский ремонт: декоративная штукатурка, большие зеркала, много света и ламинат 33го класса (толщина 12 мм) — стильно и надёжно. Всё уже готово для жизни: встроенная бытовая техника: микроволновка, вытяжка и даже посудомоечная машина — забудьте о рутине; кондиционер — комфортно в любую погоду; сантехника и мебель уже установлены. Ютссон, ситиквартал — место, где продумана каждая деталь. Здесь нужно побывать, чтобы оценить эту атмосферу! Не откладывайте мечту на потом — приходите на просмотр прямо сейчас! Забронируйте свой кусочек городской жизни!



124 105 ₽/м²
Продам уютную двухкомнатную квартиру в самом центре города Просторная светлая квартира в центре города. Расположена на четвёртом этаже кирпичного пятиэтажного дома. Отличная инфраструктура района: рядом площадь Сахарова, Дворец спорта, Бассейн "Обь", Драматический театр. Идеальное расположение для студентов и преподавателей: множество вузов в пешей доступности. Удобная транспортная доступность и много зелёных зон для отдыха и прогулок. Хорошее состояние подъезда и придомовая территория. Эта квартира станет идеальным выбором для тех, кто ценит комфорт, качество жизни и близость к основным культурным и образовательным центрам



232 384 ₽/м²
Продаётся просторная евро 3-ком квартира в центре города, по адресу пр. Комсомольский, 122, к.4. Закрытая территория, круглосуточная охрана, видеонаблюдение, шлагбаум, подземный паркинг, детская площадка. Прекрасная шумоизоляция, соседей и улицу не слышно совсем. Квартира, под отделку! Площадь 66.7 кв.м. Высота потолков 3 м. Прекрасный вид на город. Окна выходят на 2 стороны. Продуманная планировка, которая включает в себя просторную входную группу - холл, кухню-гостиную, сан.узел, 2 спальные комнаты, застекленую лоджию. Без долгов, без обременений. Материнский капитал не использовался. Удобная локация, всё в шаговой доступности. ( Изумрудный парк., школа, детский сад, бассейн, спорт.комплеас, ВУЗЫ, магазины).



115 854 ₽/м²
Продается уютная двухкомнатная квартира с изолированными комнатами на пятом этаже кирпичного дома. Дом построен в 1970 году. Находится во дворе. Рядом есть все для комфортной жизни . Подъезд чистый, соседи хорошие. В квартире косметический ремонт, санузел раздельный. В доме газоснабжение. Имеется открытая парковка во дворе. Балкон. Отличное предложение для тех, кто ищет жилье в спокойном районе с развитой инфраструктурой. Один взрослый собственник. Никто не прописан. Хорошая транспортная доступность.



149 770 ₽/м²
Продам уютную двухкомнатную квартиру на пятом этаже кирпичного дома. Общая площадь - 43,4 кв. м, жилая - 30 кв. м, кухня - 5,6 к в. м. Высота потолков — 2,5 метра. Перекрытия железобетонные .Дом построен в 1966 году и располагает наземной парковкой. В квартире выполнен косметический ремонт. Санузел совмещённый, есть ванна. Из окон открывается вид на улицу, а также имеется балкон для приятного отдыха на свежем воздухе. Дом находится в районе с развитой инфраструктурой. В шаговой доступности расположены школы, детские сады, клиники и магазины, ВУЗы. Отличная транспортная доступность: до ближайших остановок можно дойти пешком за несколько минут. Квартира продается по договору купли-продажи, возможна ипотека, один взрослый собственник. Выгодное предложение как для инвестиции ( всегда быстро и дорого сдается в аренду), так и для проживания.



94 968 ₽/м²
В продаже трёхкомнатная квартира 61,6 м с изолированными комнатами на третьем этаже пятиэтажного дома, в центральной части города Квартира требует вложений Звоните, отвечу на все интересующие вас вопросы Рядом с объектом находятся: 1 школа, 1 детский сад, 1 спортивное учреждение, 1 колледж. Возможен обмен на вашу недвижимость. Возможна продажа в рассрочку. При звонке, пожалуйста, сообщите номер варианта - JV003022111771



156 377 ₽/м²
Полноценная 1-комнатная квартира в кирпичном доме, в центре города, недалеко от главной транспортной артерии города- пр. Красноармейского. Комфортный 5 этаж, 4 квартиры на площадке. Дом расположен во дворах, что защищает от шума и пыли. Окна квартиры выходят в сторону стадиона, на юго-запад, хорошая инсоляция. Вокруг дома достаточное количество парковочных мест. В квартире сделан косметический ремонт, состояние квартиры хорошее, жилое. Есть кондиционер, водонагреватель. Вся мебель и техника, что на фото - по договорённости. В шаговой доступности детские сады 239 и 50, 122-й лицей, 22-я гимназия , Аграрный, Педагогический университеты, музыкальный колледж и т.д.. Рядом расположены торгово-развлекательные центры города GАLАХY, СIТY, Гулливер. Юридическая сторона- Безопасная покупка: один собственник, без обременений и детских долей, вся сумма в договоре, в собственности более 5 лет. Показ квартиры по договорённости, Звоните!



108 000 ₽/м²
Арт. 37605056 Срочно! Цена снижена, себе вариант найден! Предлагаем вашему вниманию уникальную возможность приобрести просторную пятикомнатную квартиру в самом сердце Барнаула. Элитный жилой комплекс на проспекте Социалистическом 45, расположенный в историческом центре города, предлагает идеальное сочетание комфорта и роскоши. Квартира занимает два уровня, располагаясь на 4-м и 5-м этажах, что обеспечивает не только великолепные виды, но и уединение от городской суеты. Внутреннее пространство квартиры продумано до мелочей, включая светлые комнаты, высокие потолки и современные отделочные материалы. Просторная кухня, утопающая в солнечном свете, станет отличным местом для семейных обедов, а уютные спальни обеспечат спокойный отдых. Охраняемый двор подарит вам чувство безопасности и комфорта. Мебель может быть оставлена по договорённости, что позволит вам легко адаптировать пространство под свои нужды. Не упустите шанс стать собственником квартиры в этом престижном районе — это не просто дом, а стиль жизни! Один взрослый собственник.



110 092 ₽/м²
Продаю светлую 2-комнатную квартиру в центре города Барнаула. Площадь: общая 43,6 м², жилая 30,1 м², кухня 5,7 м². Этаж 4 в кирпичном тихом доме 1963 года постройки. Высота потолков: 2.5 м. Санузел: совмещенный. Парковка: открытая во дворе. О доме и районе: Кирпичный 4-этажный дом в историческом центре. Развитая инфраструктура: всё необходимое — магазины, кафе, аптеки, транспорт — в шаговой доступности. Квартира идеально подойдет для семьи, пары или инвестора. Цена адекватная рынку. Свяжитесь со мной, чтобы назначить просмотр! Код пользователя: 1245799827 Номер в базе: 12447579



114 035 ₽/м²
В продаже меблированная квартира в самом центре города, вблизи парка "Изумрудный" и площадью Октября! Эта уютная квартира в самом сердце города предлагает идеальное сочетание комфорта и доступности к любой точке города. Просторная гостиная с окнами наполняет пространство естественным светом. Интерьер оформлен в нейтральных тонах, дополненных яркими акцентами, что создает атмосферу уюта и тепла. Изолированные спальни для семьи с двумя детьми. Санузел оборудован большой душевой кабиной с ванной. Современный ремонт выполнен с использованием качественных материалов, мастерами. Все, что вы видите на фотографиях остаётся в квартире. Заезжай и живи! Дом после капитального ремонта, отремонтирован фасад, крыша, подъезды, а также была проведена замена проводки по всему дому! Рядом с домом находятся Лицей 130, детский сад, ТРЦ Пионер, Колледж АлтГУ, множество продуктовых магазинов, салонов и аптек, пункты ВБ, озон и Авито, детская поликлиника 2, парк Изумрудный. Сам дом находится на выезде к площади октября, откуда открывается проезд в любую часть города.



132 184 ₽/м²
никальное предложение на рынке недвижимости Барнаула — просторная трёхкомнатная квартира в монолитной новостройке 2013 года. Расположена на 12-м этаже 13-этажного дома по адресу: улица Профинтерна, 7А. Общая площадь квартиры составляет 87 кв. м, жилая — 64 кв. м, площадь кухни — 20 кв. м. Высота потолков — 3 метра, что создаёт ощущение простора и свободы. Евроремонт, выполненный с учётом современных тенденций, позволяет сразу заселиться без дополнительных вложений. Окна выходят на улицу и во двор, обеспечивая достаточное естественное освещение. Наличие балкона добавляет удобства и возможности для отдыха. Наземная парковка обеспечивает удобное размещение автомобиля. Эта квартира идеально подойдёт для семей, ищущих просторное и комфортное жильё в развитом районе. Не упустите шанс стать владельцем этой замечательной квартиры!
| 🔷 Средняя цена продажи: | 17,1 млн ₽ |
| 🔷 Средняя цена за м2: | 174 тыс. ₽/м² |
| 🔷 Минимальная стоимость: | 13,8 млн ₽ |
| 🔷 Самый дорогой объект: | 33 млн ₽ |