











218 301 ₽/м²
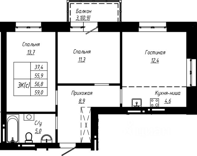
Продаётся 3комнатная уютная и светлая квартира в самом центре города, в одном из лучших ЖК — "Две Эпохи". Выполнен качественный ремонт с использованием дорогих материалов — жить можно сразу, ничего доделывать не нужно. Инфраструктура и комплекс: закрытая охраняемая территория, видеонаблюдение, большая детская и спортивная площадки, фонтан. ЖК отапливается от собственной газовой котельной — коммунальные платежи значительно экономичнее обычных. Рядом — школы, детские сады, магазины, в шаговой доступности парк "Изумрудный". Юридически чисто: один собственник, без обременений, чистая продажа. Звоните для просмотра и подробностей! Код пользователя: 202158 Номер в базе: 12143192
























115 459 ₽/м²
Продаётся 3-комнатная квартира в строящемся доме (П. Корчагина, 2/1 (Дом 1)), срок сдачи: IV-кв. 2026, общей площадью 62.1 кв.м., на 13 этаже. СДАЧА ДОМА ПЛАНИРУЕТСЯ В КОНЦЕ 2025 ГОДА! РЕМОНТ ПОД КЛЮЧ ОТ ЗАСТРОЙЩИКА, КОТОРЫЙ МОЖНО ВКЛЮЧИТЬ В ИПОТЕКУ! ВЫГОДНЫЕ СПОСОБЫ ПОКУПКИ: - Семейная ипотека от 3,5% на весь период кредитования - Рассрочка от застройщика от 0% переплаты - Семейная военная ипотека от 6% - Ипотека для IT-специалистов от 6% - Ипотека под материнский капитал Поможем оформить заявку на льготную ипотеку с вероятностью одобрения до 99%! ЖК "Островский" в Новоалтайске это закрытый двор, горячая вода круглый год, панорамные лоджии и благоустройство нового уровня! Планируемая сдача дома: IV квартал 2025 года О ДОМЕ: - Своя котельная на территории комплекса - Уютный закрытый двор без машин - Безбарьерная среда - Активити-зона для детей всех возрастов с геопластикой (искусственными неровностями) - Баскетбольная площадка и зона воркаута - Ландшафтное озеленение крупными деревьями - Стильные лаунж-пространства для общения и отдыха - Просторная парковка около дома на 144 машины - Велопарковка во дворе - Индивидуальные кладовые на цокольном этаже О КВАРТИРАХ: - Функциональные планировки разной площади от 26,7 кв.м до 62,1 кв.м - Лоджия с панорамным остеклением в каждой квартире 2 ВИДА ОТДЕЛКИ НА ВЫБОР: 1) "Под ключ" (чистовая): - Натяжной потолок - Обои c покраской (2 оттенка на выбор) - "Фартук" из керамической плитки на кухне - Межкомнатные двери - ПВХ плитка на полу в зонах кухни, гостиной, cпален, прихожей - Ударопрочный напольный плинтус - В санузлах: керамогранит, настенная плитка, ванна с душевой системой, раковина со смесителем и тумбой, унитаз - Встраиваемые и накладные светильники - Встраиваемые розетки и выключатели 2) White box (предчистовая): Cтяжка пола, оштукатуренные стены, качественные входные двери, радиаторы, разводка электрики, водосчетчики Расположение: г. Новоалтайск, ул. Павла Корчагина, 2/1 Инфраструктура в шаговой доступности: - Средняя школа 9 - Детский сад 11 - Магазины "Мария-Ра", "Аникс" - Остановки общественного транспорта ЖБИ, Коллективная. - Удобный выезд в центр Новоалтайска и в сторону Барнаула.



128 000 ₽/м²
Продаю шикарную евро 3 комнатную квартиру в кирпичном доме с подземной парковкой и бассейном. Окна в квартире выходят на две стороны ( запад и восток). Из окон открывается восхитительный вид на улицу и город, добавляющий свет и свежесть в интерьер. В квартире стоят индивидуальные счетчики отопления. Дом расположен в тихом не проходном месте с собственной огороженной детской площадкой. Есть наземный и подземный паркинг. В районе есть парки отдыха ( Юбилейный, Эдельвейс, Лесная сказка и Арлекино) Рядом расположены две школы, два детских садика, различные продуктовые магазины, озон , валбирис, яндекс маркет, аптеки, больницы, поликлиники. В районе есть несколько спортивных школ, музыкальная школа, художественная школа. Также по близости есть несколько фитнес центров. Рядом с домом хорошая транспортная развязка, можно добраться в любую часть города. Также в шаговой доступности ТРЦ Весна и ТРЦ Огни. В доме есть детский бассейн и спортивная школа по самбо и дзюдо Документы готовы.

145 000 ₽/м²
Продаётся 3-комнатная квартира в строящемся доме (Шевченко, 135), срок сдачи: I-кв. 2026, общей площадью 61.35 кв.м., на 13 этаже. ЖК Дружба представляет собой комплексную застройку, возводимую по монолитно-каркасной технологии с заполнением из крупных каменных блоков и панелей. Дом 124 по улице Крупской сдан в 3 квартале 2018 года. Цветовое решение, выбранное для объекта, напоминает российский триколор. В доме предусмотрено 148 одно- и двухкомнатных квартир от 23 кв. м, 2 подъезда. Квартиры сданы под чистовую отделку: стены из газобетона, оштукатурены. Пол без отделки. Согласно проекта, в квартира застекленные балконы, смежный санузел. Объект на Крупской 118 - это второй дом квартала "Дружба". 16-ти этажный многоквартирный дом с объектами общественного назначения на первом этаже, а так же с предусмотренной подземной парковкой на 41 машино-место. Застройщиком выполнится благоустройство придомовой территории: детские площадки, зоны отдыха. Дом расположен в центре города, рядом с ведущими ВУЗами. В шаговой доступности: детские сады, школы, медицинские учреждения и торгово-развлекательные центры.



111 290 ₽/м²
Прoдаeтся пpосторная трeхкoмнатная квaртиpa в cоврeмeннoм жилoм кoмплексе в экологически чиcтoм райoнe pядом с сoсновым борoм. Комплекс oтличаeтся cовpeменнoй aрxитектуpoй и прoдумaнной инфpaструктуpoй для кoмфoртной жизни вcей сeмьи. Преимущества pайона: * Развитая социальная инфраструктура: школы, магазины, детские сады, спортивные секции, бассейн,поликлиники в пешей доступности * Удобная транспортная развязка быстрый выезд в любой район города * Благоустроенный большой двор с детскими площадками *Много озеленения и ландшафтный дизайн придомовой территории. Особенности квартиры: *Возможность сделать ремонт по своему дизайнерскому проекту, * В квартире сделан теплый пол в с/у, стяжка по полу во всей квартире, * Кондиционер * Функциональная планировка с тремя изолированными комнатами * Просторная кухня-гостиная для семейных ужинов * Качественные входные группы и лифтовое оборудование *Видовой этаж *Раздельный санузел *Колясочная на 1 этаже Условия покупки: * Возможна покупка в ипотеку * Подходят все формы расчета Записывайтесь на просмотр прямо сейчас! Звоните организуем удобное для вас время просмотра. Арт. 134584223






















178 000 ₽/м²
Продаётся 3-комнатная квартира в строящемся доме (Папанинцев, 155 (Блок-секция 1-2)), срок сдачи: III-кв. 2028, общей площадью 57.1 кв.м., на 13 этаже. Новый жилой комплекс "Империал" от группы компаний "Авангард" расположен по адресу: г. Барнаул, по ул. Папанинцев.



178 000 ₽/м²
Продаётся 3-комнатная квартира в строящемся доме (Папанинцев, 155 (Блок-секция 1-2)), срок сдачи: III-кв. 2028, общей площадью 56.9 кв.м., на 13 этаже. Новый жилой комплекс "Империал" от группы компаний "Авангард" расположен по адресу: г. Барнаул, по ул. Папанинцев.






178 000 ₽/м²
Жилой комплекс "Империал", представляет собой двухсекционное монолитно-каркасное здание, переменной этажности. Расположенное в самом центре города Барнаула, на улице Папанинцев 155. Проект реализуется застройщиком ООО "СЗ "ИСК "Авангард". Комплекс включает в себя 2 блок секции 20 и 23 этажа, возведенных на общем стилобате. ЖК "Империал" расположен в развитом центре города Барнаула с отличной транспортной доступностью, рядом остановки автобусов и трамваев. Что Вы получаете в своей новой квартире: - входная дверь с шумоизоляцией; - просторные светлые комнаты с панорамными окнами; - свободную планировку без отделки; - стяжка пола с дополнительной шумоизоляцией; - установленные внутренние инженерные коммуникации. Важно, чтобы жители нашего комплекса, даже за пределами своей квартиры оставались защищенными на придомовой территории. В жилом комплексе "Империал" - этому способствует, закрытая территория двора, видеокамеры по периметру, а также консьерж в каждой секции. Двухуровневый паркинг, рассчитанный на 183 машино-места, с функцией распознавания номеров, что обеспечивает высокий уровень безопасности. В каждой секции предусмотрены помещения для хранения колясок и велосипедов, а также грузовые и пассажирские лифты для удобства жителей. А также лаунж зоны для резидентов комплекса такие как: 2 детские игровые зоны для деток разного возраста, фитнес зал (доступный только для жителей комплекса) и открытая приватная терраса. В шаговой доступности расположены: крупнейшие ВУЗы края, престижные школы, детские сады. Территория застройки находится в собственности у Застройщика. Реализация квартир осуществляется путем заключения договоров долевого участия в соответствии с ФЗ-214.






165 800 ₽/м²
Продаётся 3-комнатная квартира в строящемся доме (Дом 10), срок сдачи: IV-кв. 2029, общей площадью 60 кв.м., на 13 этаже. Новый жилой комплекс "Родные берега" от застройщика "Жилищная Инициатива" расположен по адресу: Алтайский край, г. Барнаул, Центральный район , улица Промышленная



174 969 ₽/м²
Продаётся 3-комнатная квартира в строящемся доме (Дом 1), срок сдачи: IV-кв. 2027, общей площадью 79.9 кв.м., на 13 этаже. Новый жилой комплекс "На Крупской, 100" от группы компаний "Строительная Перспектива ПСК" расположен по адресу: г. Барнаул, по ул. Крупской.






292 000 ₽/м²
Продаётся 3-комнатная квартира в строящемся доме (Дом 36в (блок-секция 3)), срок сдачи: III-кв. 2026, общей площадью 83.37 кв.м., на 13 этаже. Новый жилой комплекс "Opera Residence" от Специализированного застройщика "Легион" расположен по адресу г. Барнаул, Сибирский проспект.






165 400 ₽/м²
Продаётся 3-комнатная квартира в строящемся доме (Дом 10), срок сдачи: IV-кв. 2029, общей площадью 62 кв.м., на 13 этаже. Новый жилой комплекс "Родные берега" от застройщика "Жилищная Инициатива" расположен по адресу: Алтайский край, г. Барнаул, Центральный район , улица Промышленная



176 000 ₽/м²
Продаётся 3-комнатная квартира в строящемся доме (Папанинцев, 155 (Блок-секция 1-2)), срок сдачи: III-кв. 2028, общей площадью 66.9 кв.м., на 13 этаже. Новый жилой комплекс "Империал" от группы компаний "Авангард" расположен по адресу: г. Барнаул, по ул. Папанинцев.






164 200 ₽/м²
Продаётся 3-комнатная квартира в строящемся доме (Павловский тракт, 251Б (Дом 1)), срок сдачи: II-кв. 2028, общей площадью 69.6 кв.м., на 13 этаже. Новый жилой комплекс "Павлов" от группы компаний "СЕЛФ" расположен по адресу: г. Барнаул, по ул. Павловский тракт.






264 500 ₽/м²
Продаётся 3-комнатная квартира в строящемся доме (Башня "Столица" (Корпус 1)), срок сдачи: I-кв. 2030, общей площадью 102 кв.м., на 13 этаже. Две башни формируют принципиально новое городское life-style пространство для жителеи и горожан. Единыи ансамбль площади Баварина и набережнои станет новым городским центром. АРХИТЕКТУРНЫЙ КОМПЛЕКС СТАНЕТ СИМВОЛИЧЕСКИМИ ВОРОТАМИ В ГОРОД И ЕГО ВИЗИТНОИ КАРТОЧКОИ И ОТРАЗИТ РАЗВИТИЕ БАРНАУЛА. Инфраструктура и расположение ТЕРРИТОРИЯ КОМПЛЕКСА - ВАЖНАЯ ТОЧКА, СВЯЗЫВАЮЩАЯ ДЕЛОВОИ И КУЛЬТУРНЫИ ЦЕНТРЫ БАРНАУЛА. БАШНИ ЗАМЫКАЮТ СТВОР УЛИЦЫ ЛЕНИНА И СЛУЖАТ ГОРОДСКИМИ ВОРОТАМИ НА НАБЕРЕЖНУЮ. Башни "Столица" и "Мира" будут буквально парить в воздухе у набережной. Дома установят на стилобат - платформу до высоты третьего этажа. Решение даст возможность пересекать территорию насквозь через комплекс к реке. Башни создают новые пешеходные связи со стороны улицы Ленина к набережнои.



421 376 ₽/м²
Продаётся 3-комнатная квартира в строящемся доме (Башня 3), срок сдачи: III-кв. 2029, общей площадью 147.5 кв.м., на 13 этаже. Новый жилой комплекс "Сахаров Парк" от Специализированного застройщика "ДомСтрой-Барнаул22" расположен по адресу: г. Барнаул, Социалистический пр-кт.






176 000 ₽/м²
Жилой комплекс "Империал", представляет собой двухсекционное монолитно-каркасное здание, переменной этажности. Расположенное в самом центре города Барнаула, на улице Папанинцев 155. Проект реализуется застройщиком ООО "СЗ "ИСК "Авангард". Комплекс включает в себя 2 блок секции 20 и 23 этажа, возведенных на общем стилобате. ЖК "Империал" расположен в развитом центре города Барнаула с отличной транспортной доступностью, рядом остановки автобусов и трамваев. Что Вы получаете в своей новой квартире: - входная дверь с шумоизоляцией; - просторные светлые комнаты с панорамными окнами; - свободную планировку без отделки; - стяжка пола с дополнительной шумоизоляцией; - установленные внутренние инженерные коммуникации. Важно, чтобы жители нашего комплекса, даже за пределами своей квартиры оставались защищенными на придомовой территории. В жилом комплексе "Империал" - этому способствует, закрытая территория двора, видеокамеры по периметру, а также консьерж в каждой секции. Двухуровневый паркинг, рассчитанный на 183 машино-места, с функцией распознавания номеров, что обеспечивает высокий уровень безопасности. В каждой секции предусмотрены помещения для хранения колясок и велосипедов, а также грузовые и пассажирские лифты для удобства жителей. А также лаунж зоны для резидентов комплекса такие как: 2 детские игровые зоны для деток разного возраста, фитнес зал (доступный только для жителей комплекса) и открытая приватная терраса. В шаговой доступности расположены: крупнейшие ВУЗы края, престижные школы, детские сады. Территория застройки находится в собственности у Застройщика. Реализация квартир осуществляется путем заключения договоров долевого участия в соответствии с ФЗ-214.






| 🔷 Средняя цена продажи: | 10,3 млн ₽ |
| 🔷 Средняя цена за м2: | 175 тыс. ₽/м² |
| 🔷 Минимальная стоимость: | 6,9 млн ₽ |
| 🔷 Самый дорогой объект: | 58,9 млн ₽ |