

149 100 ₽/м²
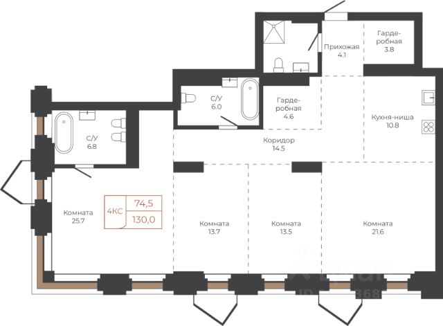
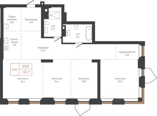
Продаётся 4-комнатная квартира в строящемся доме (Корпус 2), срок сдачи: II-кв. 2027, общей площадью 93 кв.м., на 9 этаже. ЖК "Тургенев" на ул. Чеглецова, 25а представляет из себя два кирпичных здания высотой 9 этажей. Предлагаем к покупке первый корпус, состоящий из двух подъездов. В каждом запроектированы квартиры с продуманной планировкой от 34,8-57,7 квадратных метров. Фасады выполнены в стилизованных формах с использованием остекленных лоджий и архитектурной подсветкой. Высота 1 и 9 этажа - 3 метра. На первом этаже предусмотрены нежилые помещения с гибким функциональным назначением. ЖК "Тургенев" удачно расположен в тихом районе города и в то же время имеет отличную транспортную развязку, до проспекта Ленина и улицы Северо-Западной всего 500 метров. В шаговой доступности бассейн Аврора, Краевой стрелково-спортивный центр, тренажёрный зал, парк развлечений "Солнечный Ветер", а до Юбилейного парка, где расположен скейт-парк, велодорожки, красивые места отдыха и практически ручные белки всего 650 метров. Также эта локация отличается обилием образовательных учреждений от детских садов, школ до колледжей.



















































































